logo

Поиск планировки: Евродвушка, где едва нашли место для гостиной

В планировке от застройщика были сплошные многоугольники — дизайнер отрисовала 4 плана, чтобы найти идеал

Саша Зайцева
Саша Зайцева

17 февр. 2022

Обновлено 4 апр. 2022

журналист, редактор

По задумке застройщика это была евродвушка 69 кв.м: одна приватная спальня и объединенная кухня-гостиная (сложный восьмиугольник). Много окон, большой балкон, два санузла. Но жить с такой планировкой семье с ребенком было бы откровенно неудобно — заказчики обратились к дизайнеру Марине Светловой, чтобы она помогла спланировать пространство грамотно.
ПРОЕКТ
Что: семейная квартира в Крылатском
Размер: 69 кв.м
Где: Москва
Год: 2021
Дизайн: Марина Светлова
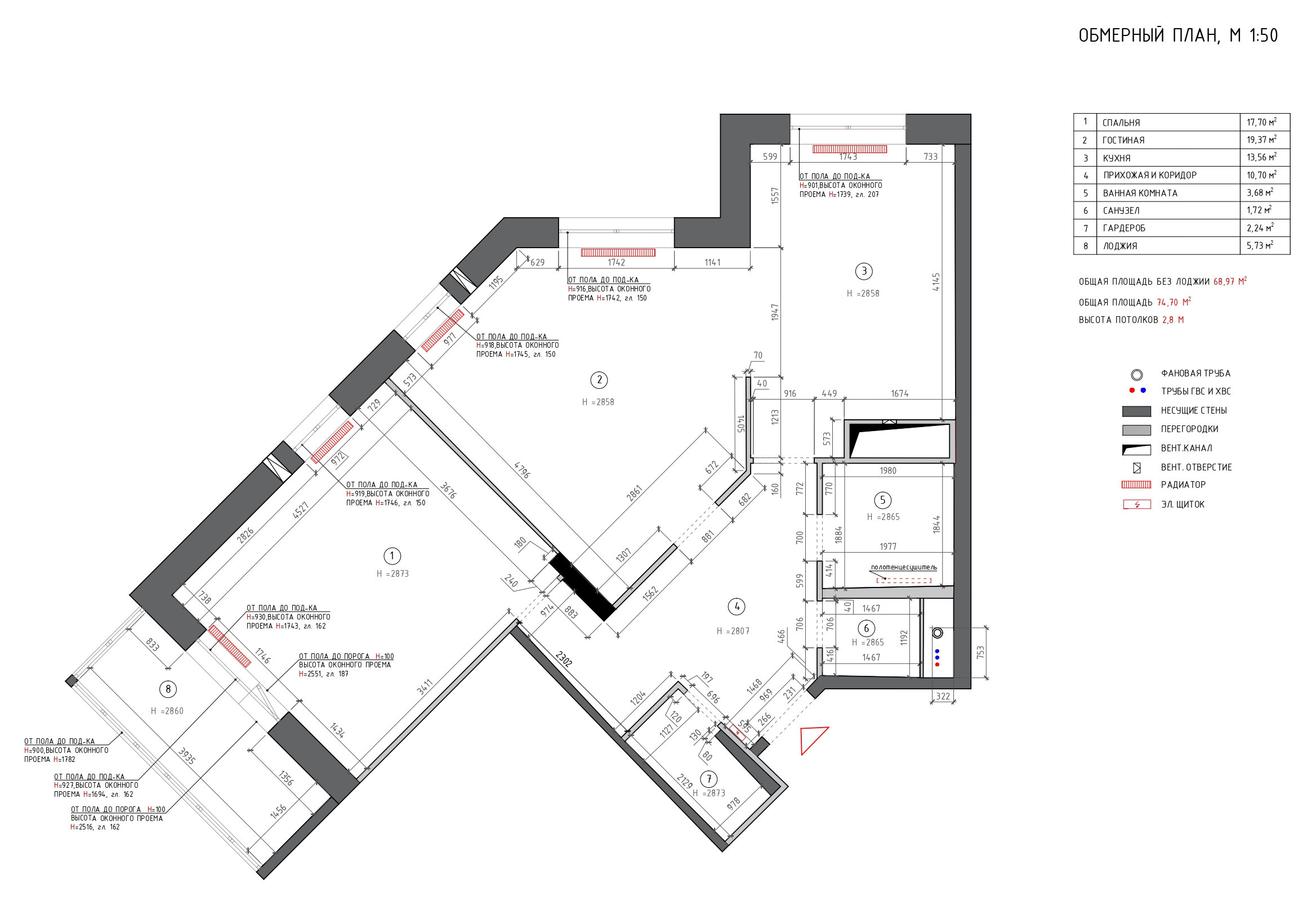
Дано: квартира на вторичном рынке, 69 квадратных метров без учета лоджии (общая — почти 75 кв.м). Пять окон, одна приватная спальня 17,7 кв.м, гостиная 19,4 кв.м фактически объединена через большой проем с кухней 13,5 кв.м. В планировке от застройщика было также два санузла (ванная и гостевой туалет) и мини-гардеробная. Прихожая была большой (почти 11 кв.м), но неправильной формы — 9 углов, много дверей, ничего нельзя разместить толком.
На фото: Кухня до ремонта, справа виден проём в гостиную

Задача дизайнеру: Спроектировать современный светлый интерьер для семьи с ребенком. Важные пункты:
  • Много места для хранения на кухне
  • Желательно выделить гостевую зону и разместить там раскладной диван на случай гостей.
  • Необходима гардеробная и два полноценных санузла: один с душем, другой — с ванной.
  • В спальне родителей должно быть место для отдыха и чтения.
  • В детской желательно разместить и кровать для сна, и кресло (или диванчик) для дневного сидения.
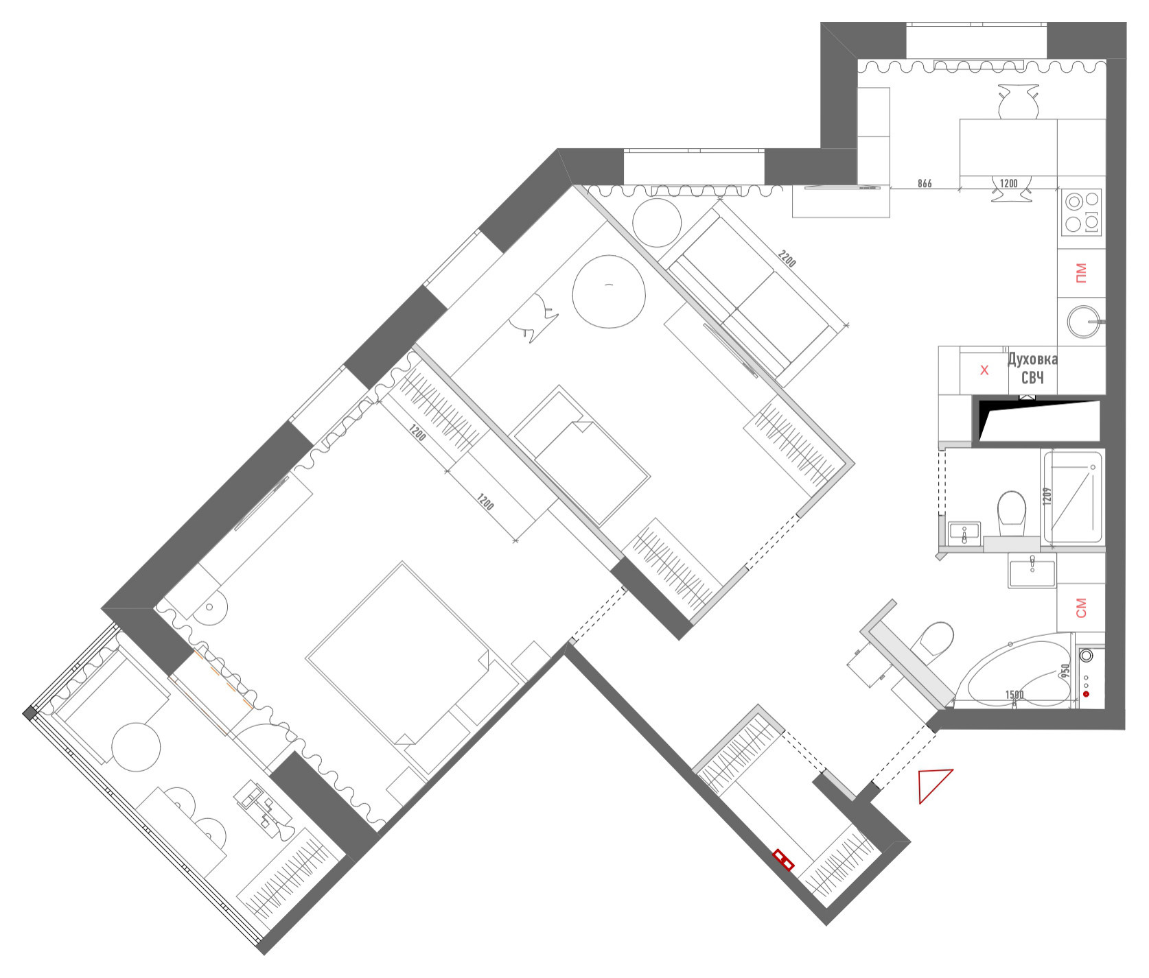
ПЛАНИРОВКА #1
С прямоугольной детской и гостиной сложной формы

Что предложила дизайнер:
Прихожая: становится квадратной за счет расширения санузла. Справа от входа помещается банкетка и зеркало, слева — вход в гардеробную, где будет основное хранение.
Ванная: располагается ближе ко входу в квартиру. Пятиугольная, но зато в углу можно поставить овальную угловую ванну, есть место для шкафа под стиральную машину, унитаза, раковины.
Санузел: компактный, около 2 квадратных метров. Вмещает раковину, унитаз, душ (они располагаются друг за другом).
Кухня-гостиная: порядка 20 квадратных метров по площади, неправильной формы. Кухонный гарнитур угловой, завершается барной стойкой. Зона гостиной — треугольная, но близость большого окна позволит с дивана любоваться видом на город. Выступ стены можно задействовать для системы хранения и размещения ТВ.
Детская: правильной формы, около 13 кв.м по площади. По обеим сторонам от входа расположены системы хранения. У окна — длинный стол, рядом с ним круглый пуф. Кровать располагается у стены, а напротив нее — ТВ.
Спальня родителей: кровать стоит у стены слева, напротив нее — комоды, туалетный столик. Ближе к маленькому окну — шкафы.
Лоджия: здесь обустроено полноценное пространство для отдыха, с диванчиком и барным столом.
Поиск планировки: Евродвушка, где едва нашли место для гостинойМарина Светлова
Почему отказались от планировки #1:

  • Не понравилась форма кухни-гостиной: лучше сделать детскую просторней и с 5-ю углами.
  • Малофункциональная кухня, нет места для обеденного стола.
  • Гостевой санузел желательно разместить ближе ко входу в квартиру, а по форме санузлы лучше сделать правильными.
  • В спальне мало мест хранения.

«Первый план был черновым: заказчики хотели посмотреть, что получится, если выровнять детскую, а гостиную сделать треугольной — выяснилось, что это не добавит пространству функционала и разумнее оставить кухню-гостиную небольшой по площади», — отметила автор проекта.
ПЛАНИРОВКА #2
С санузлами правильной конфигурации и кухней с барной стойкой

Что предложила сделать дизайнер:
Конфигурацию прихожей от застройщика не менять, а зону санузлов разделить на две примерно равные части. Ванну поместить ближе к кухне
Кухню-гостиную немного расширить за счет ниши под хранение слева от входа. Справа разместить гарнитур П-образной формы, с барной стойкой.
Зону гостиной организовать у окна: диван, круглый стол и консоль для ТВ напротив.
Детскую выстроить ассиметричной формы, с двумя нишами под хранение — но спрятать недостатки конфигурации за счет встроенной мебели. Комната будет оставаться при этом по большей части свободной — из невстроенной мебели здесь только кровать, диван, стол и консоль под ТВ.
В спальне кровать поставить изголовьем к противоположной стене, напротив — система хранения + стол. Еще один шкаф расположить в нише у окна.
Поиск планировки: Евродвушка, где едва нашли место для гостинойМарина Светлова
Что сказали заказчики про планировку #2:

  • Конфигурация комнат понравилась, а вот большой коридор и маленькие санузлы — нет. Лучше вернуться к идее санузлов сложной формы.
  • Хорошая идея с кухонными шкафами по левой стороне от входа. Но барная стойка не нужна — пространство слишком перегружено.
  • Хозяйка мечтала о гардеробной при спальне — попросили поискать варианты размещения.
ПЛАНИРОВКА #3
С гардеробной системой за изголовьем кровати

Что предложила изменить дизайнер:
Гардеробную в прихожей уменьшить (оставить только часть в нише), на освободившемся пространстве поставить банкетку.
Санузлы увеличить за счет холла, сделать их пятиугольными. Вход в гостевой расположить ближе ко входу в квартиру.
Кухню максимально облегчить: слева выстроить ряд шкафов, справа — угловой гарнитур с рабочей поверхностью. По центру поставить круглый обеденный стол, а у окна — раскладной компактный диванчик.
В детской слева от входа поставить большой шкаф, а за ним — спрятать кровать и кресло.
В спальне вернуть кровать в прежнее расположение, но за изголовьем выстроить систему гардеробных. У освободившейся стены у окна поставить длинный стол.
Поиск планировки: Евродвушка, где едва нашли место для гостинойМарина Светлова
Что сказали заказчики про планировку #3:

  • В спальне нужен не стол, а зона отдыха с креслом. От гардеробной за изголовьем отказываемся — возвращаемся к гардеробной в прихожей.
  • В детской можно уменьшить шкаф, но поставить полноценный диванчик, а не кресло.
  • Конфигурация санузлов нравится, но вход в гостевой лучше сделать из коридора, не из прихожей.
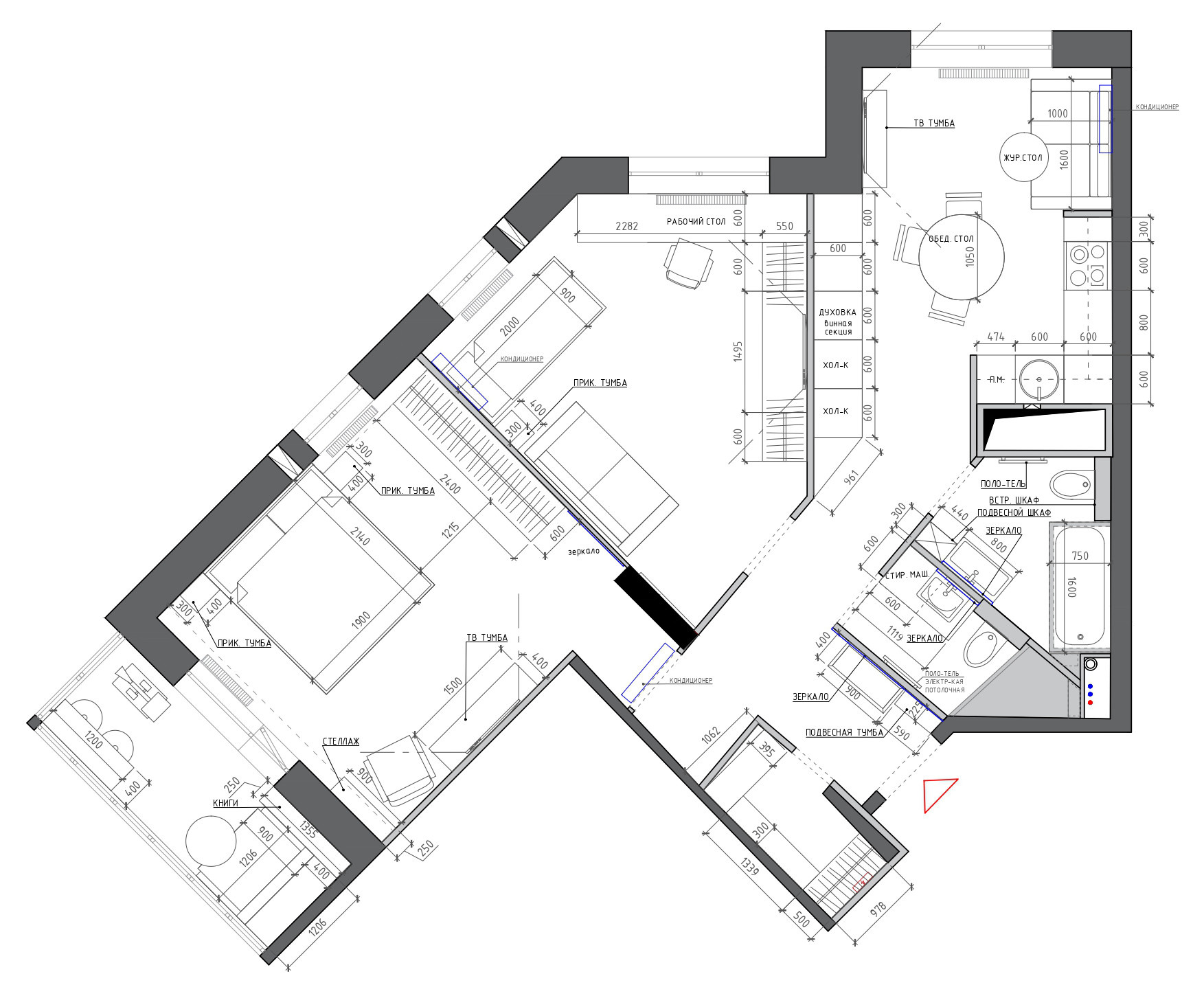
ПЛАНИРОВКА # 4, ФИНАЛЬНАЯ
Поиск планировки: Евродвушка, где едва нашли место для гостинойМарина Светлова
ПРИХОЖАЯ
Стену у входа сделали зеркальной, чтобы убрать эффект темного коридора. Здесь помещается подвесная полка для ключей и перчаток и банкетка. Напротив — вход в гардеробную, где находится основное хранение.
Поиск планировки: Евродвушка, где едва нашли место для гостинойМарина Светлова
САНУЗЛЫ
Два полноценных, как и хотели заказчики. Ближе ко входу в квартиру располагается гостевой (с треугольным душем в глубине) — в нем нашлось даже место для стиральной машинки.

Второй санузел — с ванной, которую установили в острый угол.

«Размеры по санузлам мы высчитывали вплоть до сантиметров. Например, в гостевом пришлось вместе со строителями придумывать, как минимально зашивать инсталляцию, чтобы потом можно было разместить душевую, стиральную машину, чтобы она не мешала проходу. Также в этом санузле расположена потолочная сушка для белья, поэтому помещение получилось очень функциональным», — рассказала Марина Светлова.
Поиск планировки: Евродвушка, где едва нашли место для гостинойМарина Светлова
КУХНЯ
Общее помещение кухни-гостиной вышло около 16 кв.м по площади. Но система шкафов и техники, которая выстроена в нише слева от входа, помогла насытить пространство функционалом.

За фасадами располагаются 2 холодильника, духовой шкаф (за стеклянной дверцей), винная секция, хранение посуды и пр. В центре комнаты стоит обеденный стол.

Рабочая поверхность угловая, 2,8 метра в длину (считая раковину и варочную панель).
Поиск планировки: Евродвушка, где едва нашли место для гостинойМарина Светлова
ГОСТИНАЯ
Занимает порядка 6 кв.м у окна. Здесь поставили раскладной диван, кофейные столики, ТВ и консоль напротив. Получилась комфортная зона отдыха, где при необходимости можно устроить гостей с ночевкой.
Поиск планировки: Евродвушка, где едва нашли место для гостинойМарина Светлова
ДЕТСКАЯ
Пятиугольная, но за счет встроенной мебели удалось разместить все необходимое. Как и хотели заказчики, в комнате есть и кровать, и диванчик.

СПАЛЬНЯ
Кровать поместили изножьем к двери, напротив нее — комод, ТВ и зона отдыха с креслом. У маленького окна выстроили шкафы.
Поиск планировки: Евродвушка, где едва нашли место для гостинойМарина Светлова
———————————————
ЗАКАЗАТЬ СВОЙ ПРОЕКТ ДИЗАЙНЕРУ ЭТОГО ИНТЕРЬЕРА…
Напишите сообщение в один клик
———————————————

Комментарии 11

Дизайнер выполнила планировку исходя из пожеланий заказчика и на мой взгляд правилась со столь сложным помещением блестяще. Все выпирающие и острые углы спрятаны. Детская и спальня просторны. А в кухне-гостиной заказчики запрашивали много мест для хранения и только потом желательно гостевую зону с раскладным диваном. Что запрашивали то и получили.
Главное все просчитать заранее, и поверьте моему опыту, с Джамшутами особо не наэкономишь. Никогда такого не бывает, чтобы в процессе работы с этими ребятами ценник не рос в процессе работы, а про сроки и качество - вообще молчу, из серии - может повезет, а может и нет.. :) К примеру сейчас в ходу механизированная штукатурка стен. Недавно делали ремонт для сына (купили двушку в Москве в старом доме, на Аптекарском .пер, 1956 года постройки) Сделали за 1 день! С грунтовкой, армированием и глянцеванием. Еще и убрали за собой. Платили по 500р за м2, это с замерами, материалами, доставкой, уборкой.. короче, всё включено. Что по цене, что по качеству, что по скорости - намного лучше и выгоднее выходит, чем ручная штукатурка.
Главное все просчитать заранее, и поверьте моему опыту, с Джамшутами особо не наэкономишь. Никогда такого не бывает, чтобы в процессе работы с этими ребятами ценник не рос в процессе работы, а про сроки и качество - вообще молчу, из серии - может повезет, а может и нет.. :) К примеру сейчас в ходу механизированная штукатурка стен. Недавно делал ремонт для сына (купил двушку в Москве в старом доме, на Аптекарском .пер, 1956 года постройки) Сделали за 1 день! С грунтовкой, армированием и глянцеванием. Еще и убрали за собой. Платил по 500р за м2, это с замерами, материалами, доставкой, уборкой.. короче, всё включено. Что по цене, что по качеству, что по скорости - намного лучше и выгоднее выходит, чем ручная штукатурка.

Оставьте комментарий

Читать похожие статьи