Включая демонтаж старого благоустройства


Статусный интерьер в сдержанной цветовой гамме

Вариант от застройщика поначалу устраивал хозяев, но в процессе обсуждения был тотально переделан

Заказчики купили деревянную «коробку» — смотрим, во что обошлось сделать ее жилой

У заказчиков было 20 соток земли — они докупили еще 25 и решили полностью обновить сад

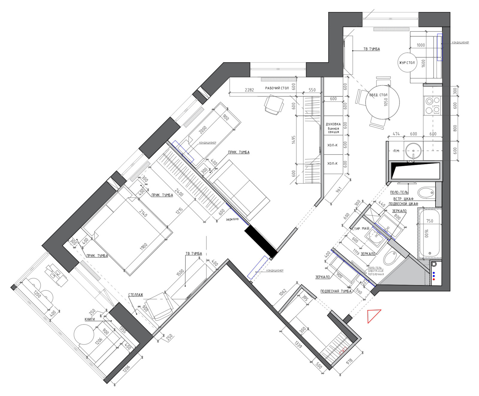
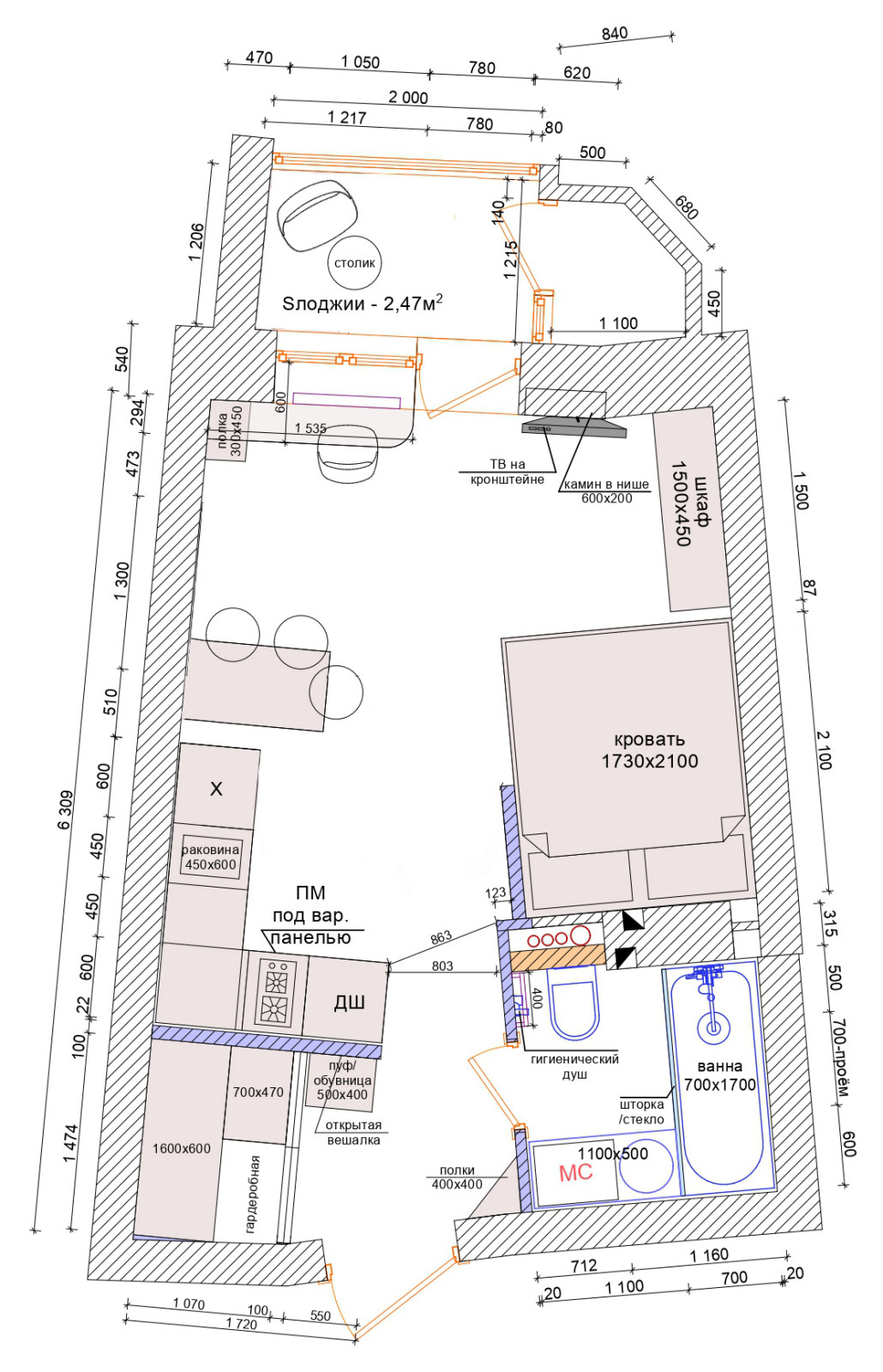
В планировке от застройщика были сплошные многоугольники — дизайнер отрисовала 4 плана, чтобы найти идеал

Оливы? В Новосибирске? — Да, именно!

Пришлось помучиться с функционалом, коммуникациями и сценарием движения

Дизайнер показывает фото до и объясняет, почему так долго — и на что ушла такая сумма

Дизайнер по просьбе Houzz комментирует смету проекта

Студия ремонта по просьбе Houzz комментирует смету реализации проекта

Казалось бы, зачем нанимать еще одного специалиста — почему прораб сам не справится?
![Поиск планировки: Квартира для семейной пары и кота [6 планов]](https://static.flatica.ru/simgs/9671e23001ea797f_16-6545/home-design.jpg)
Дизайнер по просьбе Houzz показывает все планировки и объясняет, почему от них отказались

Скромная квадратура и скошенные стены — настоящая «задачка» для дизайнера. Но были и свои плюсы!

Оказалось, что и для себя дизайнеру долго приходится искать идеальную планировку
![Поиск планировки: Курортная квартира на Балтике [5 планов]](https://static.flatica.ru/simgs/30215fa501dc3a75_16-2843/home-design.jpg)
Родители с дочерью проводят лето в Калининградской области: они купили квартиру и нашли дизайнера через Houzz

За семь лет от маленькой студии до премиального бюро

Квартира, где слишком много... окон