Потолок из ткани, биокамин в системе хранения, изломанный стол и очень неглубокая кухня в трех московских проектах


Houzz-туры (новые проекты)
Квартиры-студии (до 40 кв.м)
По метражу
20-30 кв.м
По городам
Проекты в Петербурге
Пейзаж за окном «обрамили» нейтральным интерьером

Вот что делают дизайнеры в проектах такой площади

Houzz-туры (новые проекты)
Статьи про интерьеры квартир
Квартиры-студии (до 40 кв.м)
Под сдачу
По метражу
30-40 кв.м
31 кв. м в новостройке в центре Москвы — с прозрачной душевой посреди гостиной

Скромная квадратура и скошенные стены — настоящая «задачка» для дизайнера. Но были и свои плюсы!

В зависимости от расположения окон дизайнеры предлагают разные варианты планировок для одной площади

Houzz-туры (новые проекты)
Маленькое жилье
Статьи про интерьеры квартир
Квартиры-студии (до 40 кв.м)
30-40 кв.м
По городам
Проекты в Москве
Впечатляющее количество мест хранения не лишило студию пространства

Houzz-туры (новые проекты)
Маленькое жилье
Статьи про интерьеры квартир
Квартиры-студии (до 40 кв.м)
Под сдачу
По городам
Проекты в Москве
Концепция проекта родилась за один вечер: оказалось, что у дизайнера и заказчицы одинаковые вкусы

Houzz-туры (новые проекты)
До и после
Маленькое жилье
Статьи про интерьеры квартир
Квартиры-студии (до 40 кв.м)
По метражу
20-30 кв.м
По городам
Проекты в Москве
Поместились полноценная спальня, кухня-гостиная и два рабочих места. А стиральную машину расположили над унитазом!

Houzz-туры (новые проекты)
Статьи про интерьеры квартир
Квартиры-студии (до 40 кв.м)
По городам
Проекты в Москве
Интерьер с элементами ретрошика и винтажной мебелью

Houzz-туры (новые проекты)
Статьи про интерьеры квартир
Квартиры-студии (до 40 кв.м)
Под сдачу
По городам
Проекты в Москве
Заказчики планировали сдавать квартиру, а бюджет был ограничен

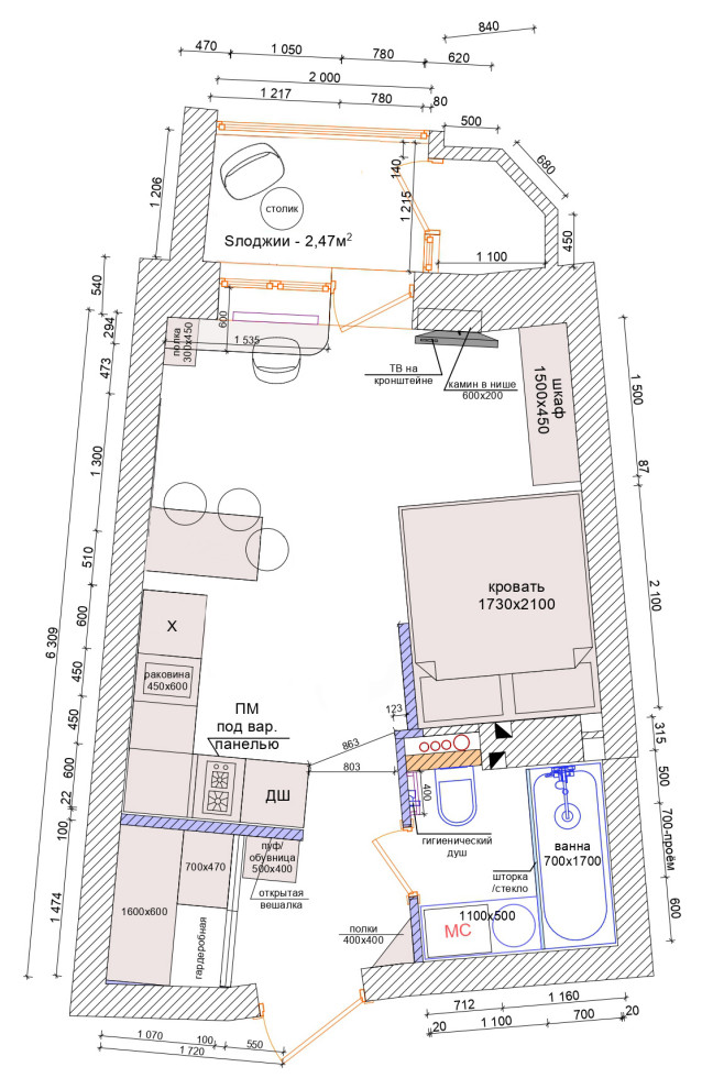
Эта небольшая квартира преобразилась благодаря перегородке сёдзи.

Houzz-туры (новые проекты)
Маленькое жилье
Статьи про интерьеры квартир
Квартиры-студии (до 40 кв.м)
По метражу
30-40 кв.м
По городам
Проекты в Москве
Квартира для деловой женщины — пространство, в котором нет ничего лишнего

Houzz-туры (новые проекты)
Маленькое жилье
Квартиры-студии (до 40 кв.м)
По метражу
20-30 кв.м
По городам
Проекты в Москве
Золотая краска и подсвечники вместо ручек — на площади 28 кв.м

Остроумный способ сделать «двушку» из студии 35 кв.м

Самое популярное
Houzz-туры (новые проекты)
До и после
Маленькое жилье
Квартиры-студии (до 40 кв.м)
Канада
Ладно кровать в шкафу и обеденный стол — вы посмотрите только, как выезжает монитор!

Студия для молодого мужчины, где есть проектор, биокамин и стены, облицованные старым кирпичом

Мужской взгляд на скандинавский интерьер в условиях российской малогабаритки