В кои-то веки гостиную «собирали» не вокруг телевизора


В ремонт активно вмешивались родители, потому планировки обсуждали особенно долго

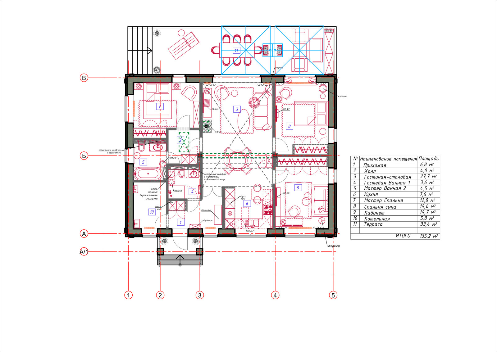
Статусный интерьер в сдержанной цветовой гамме

Вариант от застройщика поначалу устраивал хозяев, но в процессе обсуждения был тотально переделан

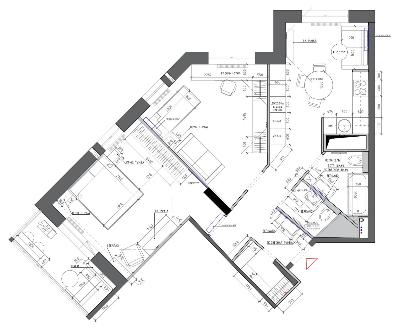
В планировке от застройщика были сплошные многоугольники — дизайнер отрисовала 4 плана, чтобы найти идеал

Пришлось помучиться с функционалом, коммуникациями и сценарием движения
![Поиск планировки: Квартира для семейной пары и кота [6 планов]](https://static.flatica.ru/simgs/9671e23001ea797f_9-6545/home-design.jpg)
Дизайнер по просьбе Houzz показывает все планировки и объясняет, почему от них отказались

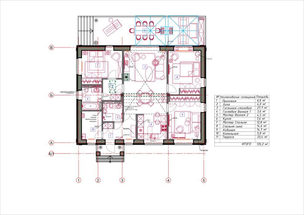
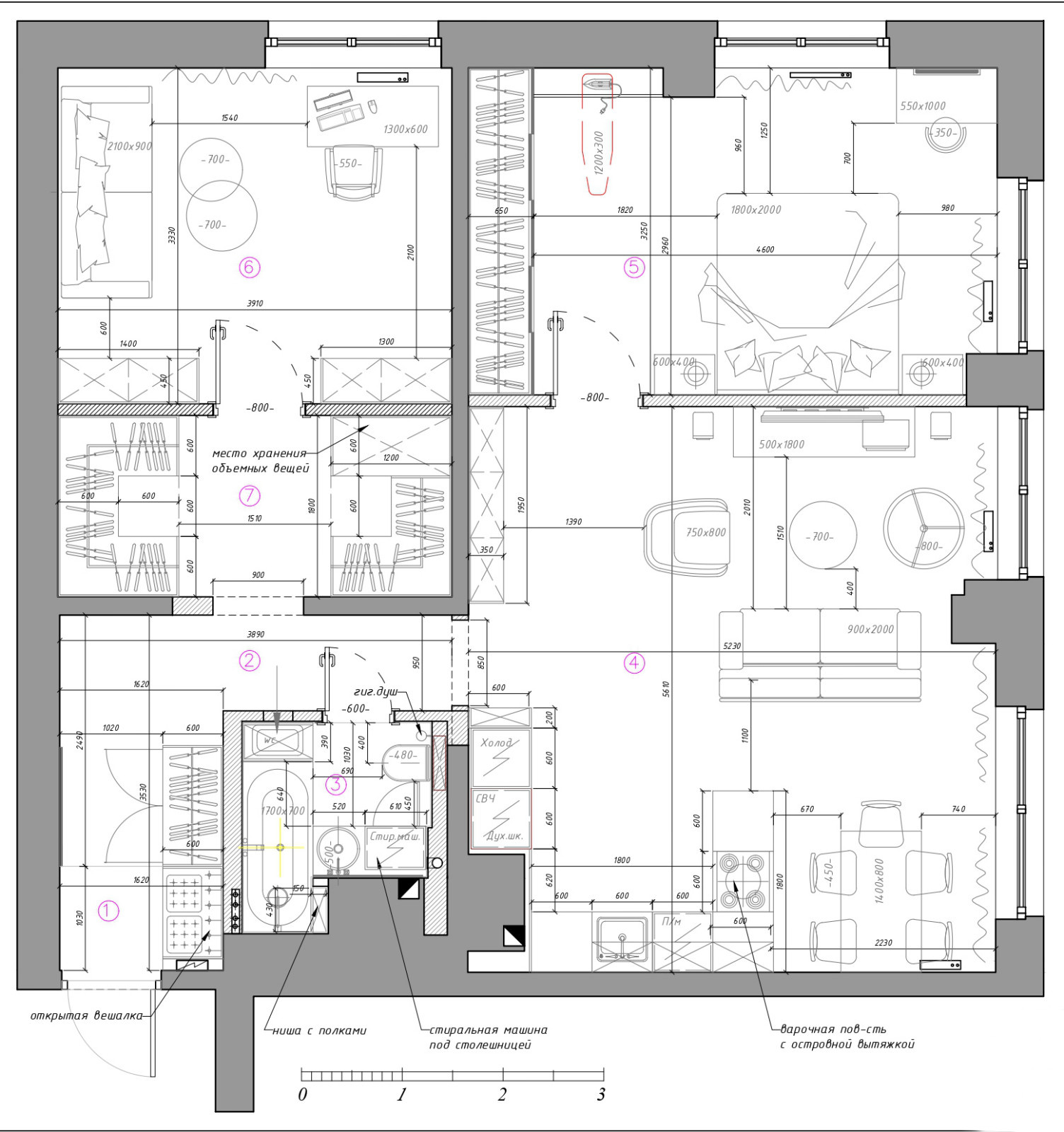
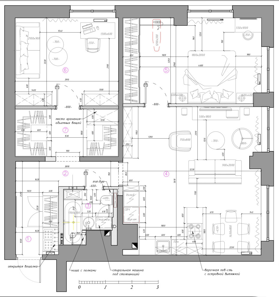
Скромная квадратура и скошенные стены — настоящая «задачка» для дизайнера. Но были и свои плюсы!

Оказалось, что и для себя дизайнеру долго приходится искать идеальную планировку
![Поиск планировки: Курортная квартира на Балтике [5 планов]](https://static.flatica.ru/simgs/30215fa501dc3a75_9-2843/home-design.jpg)
Родители с дочерью проводят лето в Калининградской области: они купили квартиру и нашли дизайнера через Houzz

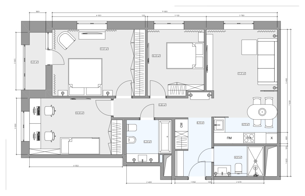
Квартира, где слишком много... окон

Показываем, каким в итоге получился интерьер квартиры, для которой разработали сразу три разных концепции
![Поиск планировки: Квартира с детской и кабинетом [4 плана]](https://static.flatica.ru/simgs/a7413aef019f3c92_9-5777/home-design.jpg)
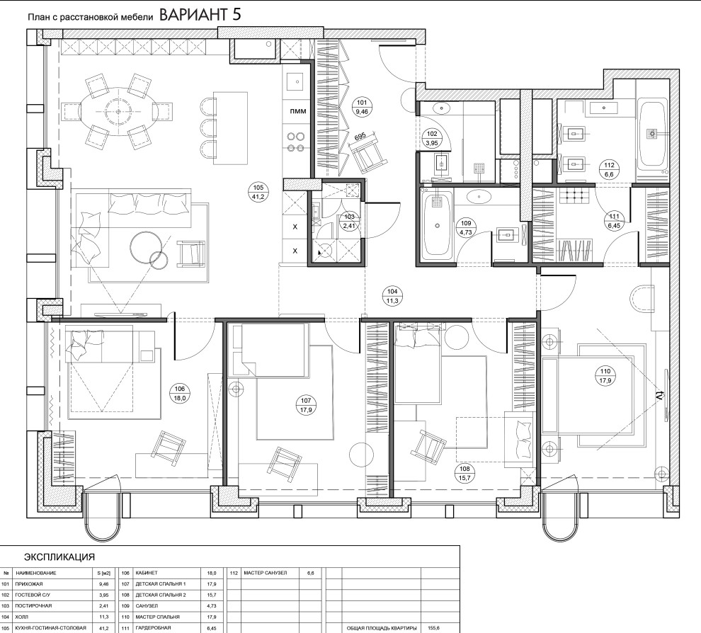
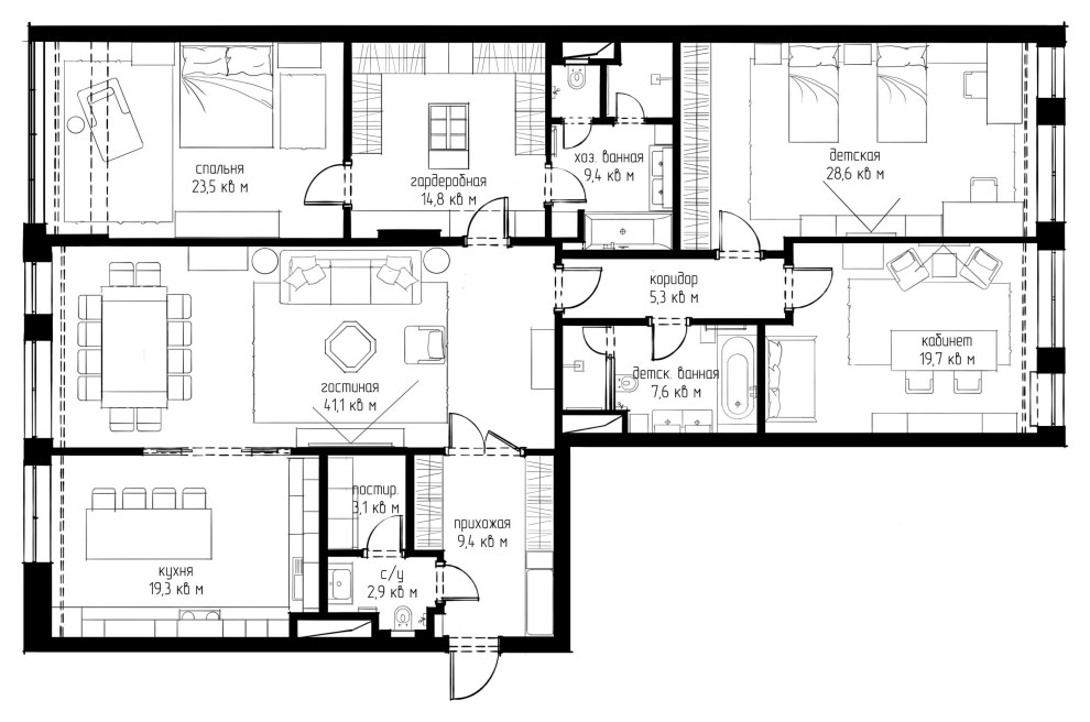
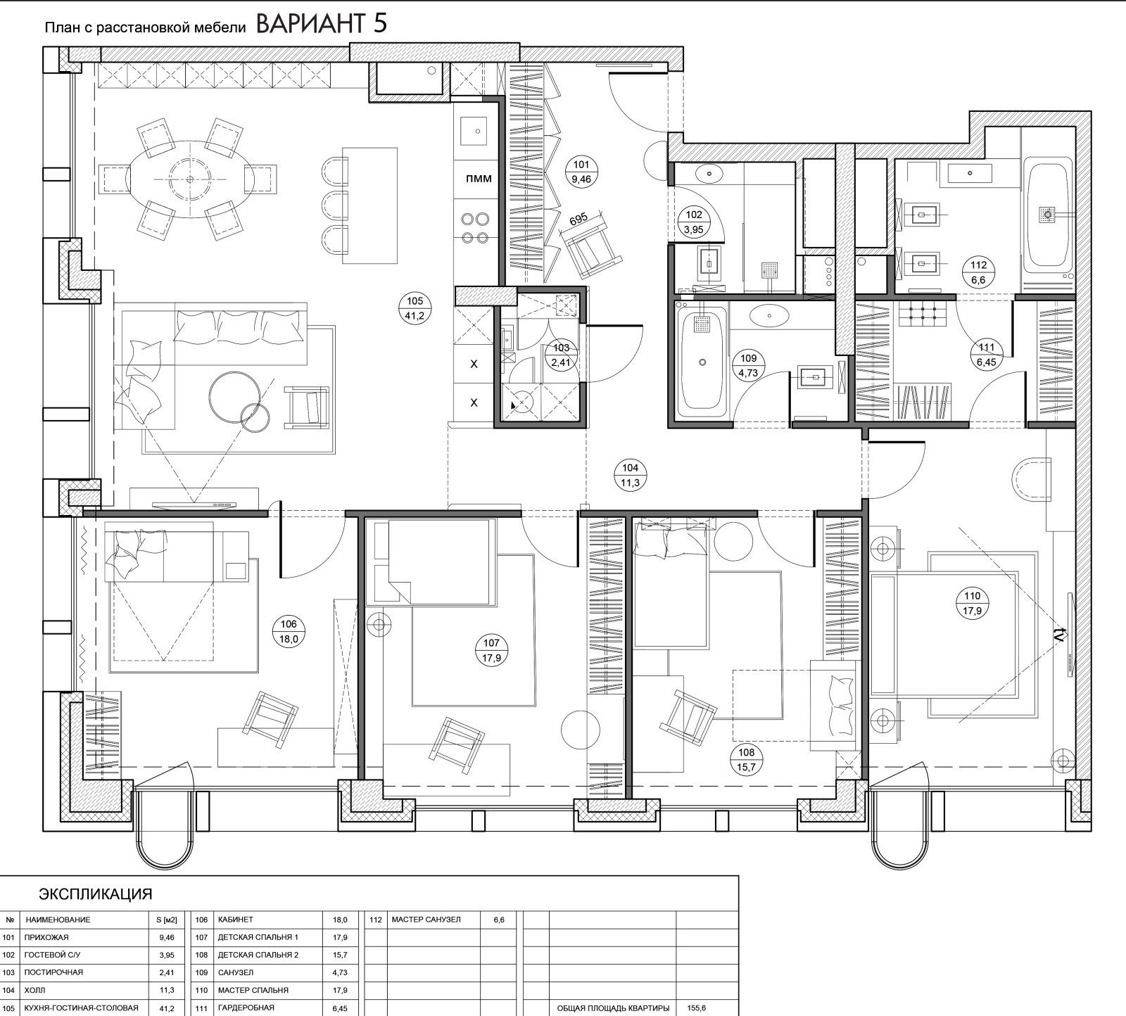
Заказчики четко знали чего хотят и составили список из 17 пунктов — над планировкой пришлось потрудиться
![Поиск планировки: Квартира семьи экспатов из Китая [5 планов]](https://static.flatica.ru/simgs/0f01ad810184b771_9-3511/home-design.jpg)
Заказчики переехали в Минск, и им нужен был дизайнер, который поймет их эстетику; его они нашли на Houzz
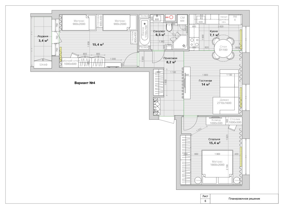
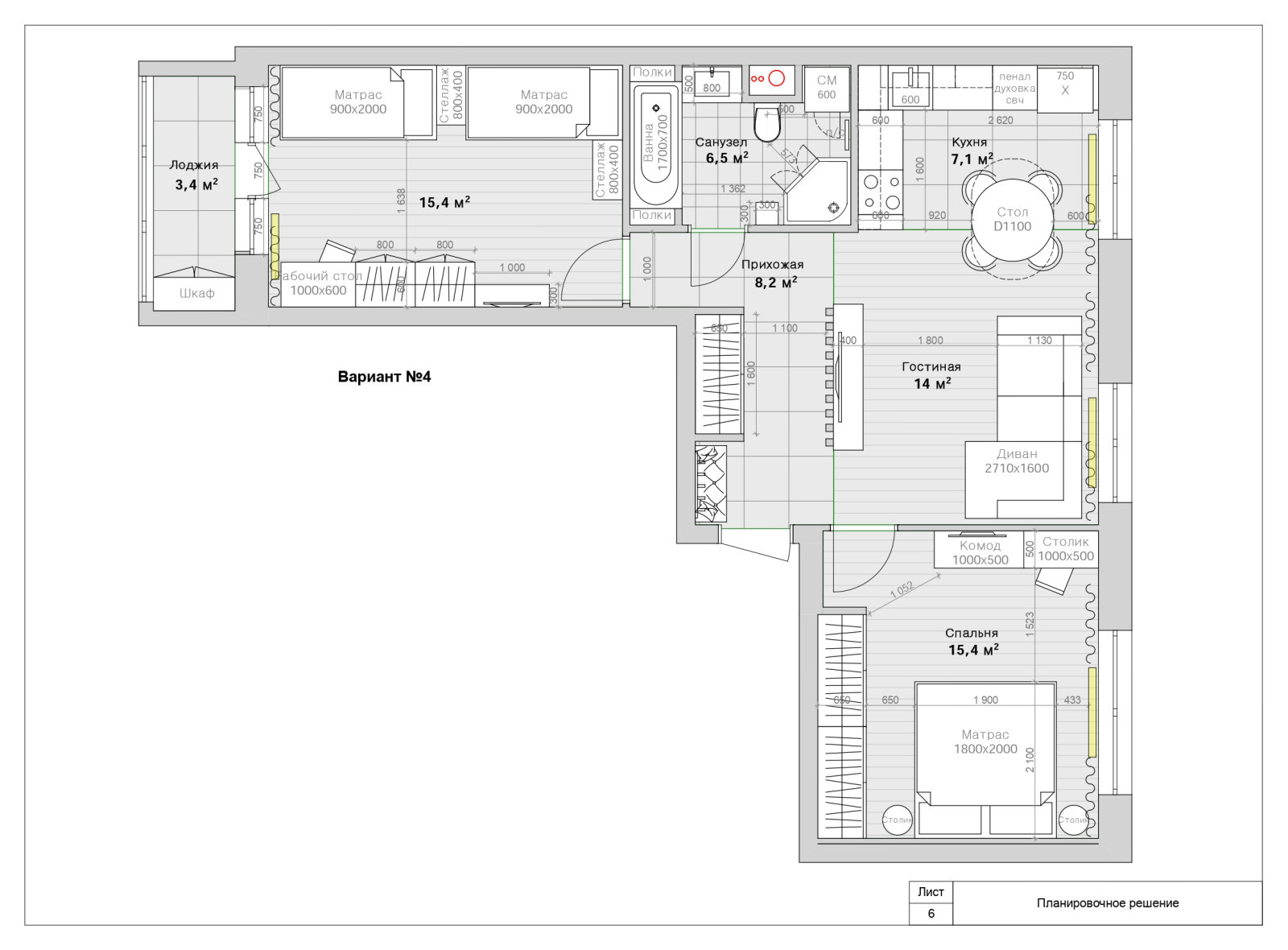
![Поиск планировки: Семейная квартира хитрой формы [4 варианта]](https://static.flatica.ru/simgs/262120620176540c_9-4741/home-design.jpg)
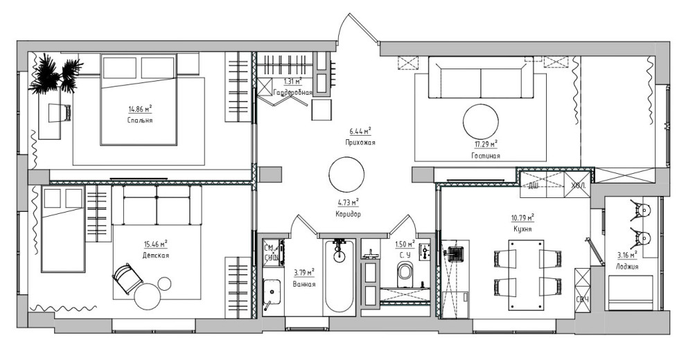
Хозяева купили квартиру, как у друзей, и по их же рекомендации нашли на Houzz дизайнера. Что получилось в итоге?

Дизайнер по просьбе Houzz показывает все варианты — и объясняет, почему от них отказались

Заказчики нашли дизайнера через Houzz — нужно было спасать бестолковую планировку от застройщика
![Поиск планировки: Для мамы, папы, дочек и бабушки [3 варианта]](https://static.flatica.ru/simgs/3de1fd930165a796_9-2175/home-design.jpg)
Хозяева нашли дизайнера на Houzz, чтобы продумать функционал до мелочей как минимум на 10–15 лет вперед