►Заказали на Houzz
Houzz-туры (новые проекты)
Статьи про интерьеры квартир
По цветам
Статьи о ярких интерьерах
По метражу
80-100 кв.м
По городам
Проекты в Москве
Интерьер в оттенках песка и моря – со стеклянными дверями и гипсовой лепниной


Архитектор добавил дому несколько комнат и санузлов, да так, что новую пристройку почти не видно с улицы

Когда-то этот сад был опасен для здоровья. Посмотрите, как он выглядит после переделки

Хозяева нашли дизайнера через Houzz. А после завершения работ — стали добрыми друзьями

►Заказали на Houzz
Houzz-туры (новые проекты)
До и после
Статьи про интерьеры квартир
По метражу
80-100 кв.м
По городам
Проекты в Москве
Дизайнер проанализировала архивные планы БТИ, чтобы найти идеальный [и законный] вариант планировки

Вариант от застройщика поначалу устраивал хозяев, но в процессе обсуждения был тотально переделан

Заказчики купили деревянную «коробку» — смотрим, во что обошлось сделать ее жилой

Смелое интерьерное решение в характерных цветах «танго»

Дизайнер показывает фото до и объясняет, почему так долго — и на что ушла такая сумма

►Заказали на Houzz
Houzz-туры (новые проекты)
До и после
Статьи про интерьеры квартир
По метражу
80-100 кв.м
По городам
Проекты в Москве
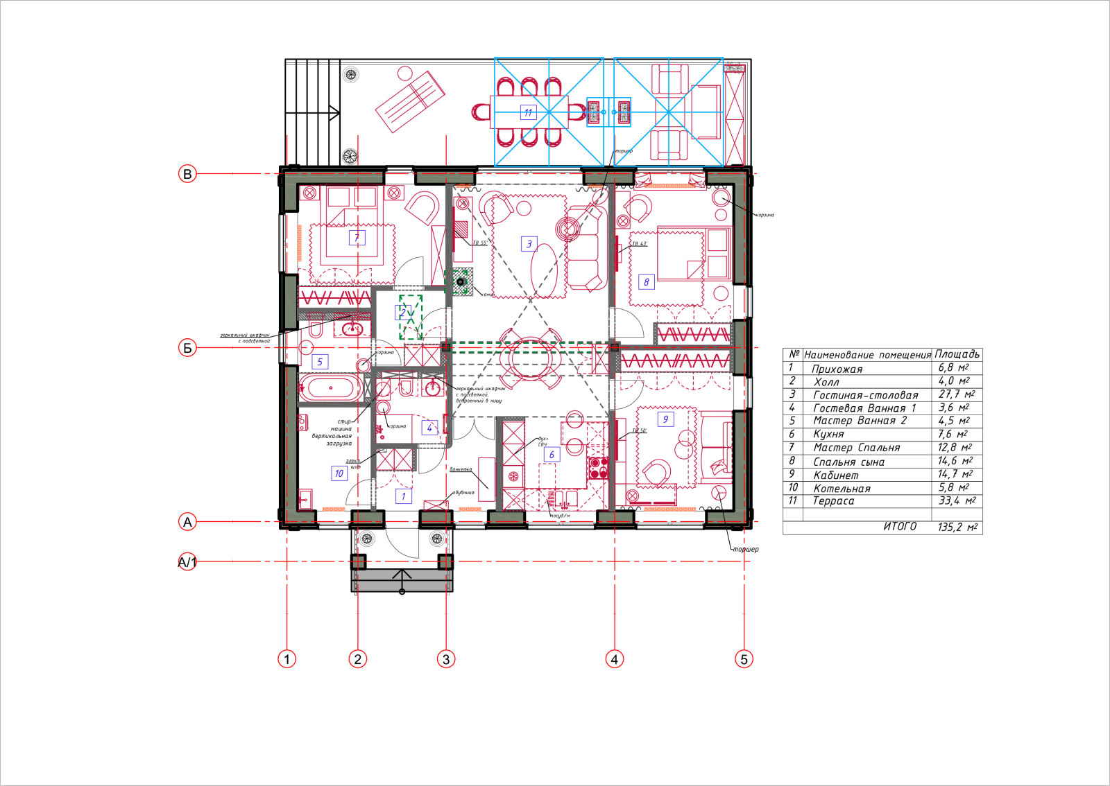
Ванная с окном, штучный паркет и гипсовая лепнина в малоэтажном доме
![Поиск планировки: Курортная квартира на Балтике [5 планов]](https://static.flatica.ru/simgs/30215fa501dc3a75_16-2843/home-design.jpg)
Родители с дочерью проводят лето в Калининградской области: они купили квартиру и нашли дизайнера через Houzz

►Заказали на Houzz
Houzz-туры (новые проекты)
Статьи про интерьеры квартир
По цветам
Статьи о ярких интерьерах
По метражу
60-80 кв.м
По городам
Проекты в Ростове-на-Дону
На кухне бушует море с чайками-светильниками, а в гостиной соседствуют тенистая зелень и солнечный пляж

Квартира, где слишком много... окон

Пространство оптимизировали «по высоте» — над частью квартиры добавили антресоль

Смотрим, куда ушло столько материала и сколько это стоило
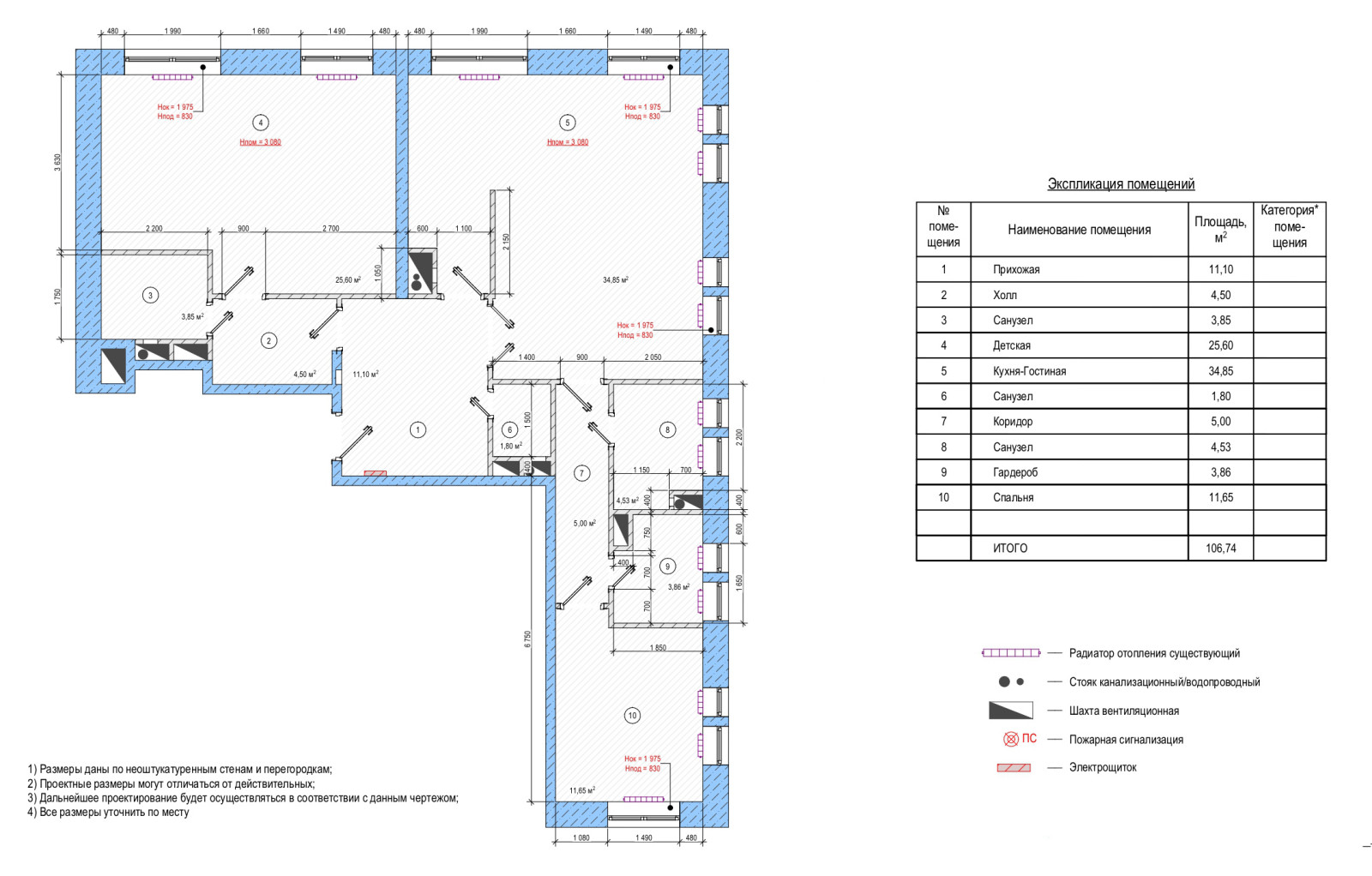
![Поиск планировки: Квартира семьи экспатов из Китая [5 планов]](https://static.flatica.ru/simgs/0f01ad810184b771_16-3511/home-design.jpg)
Заказчики переехали в Минск, и им нужен был дизайнер, который поймет их эстетику; его они нашли на Houzz
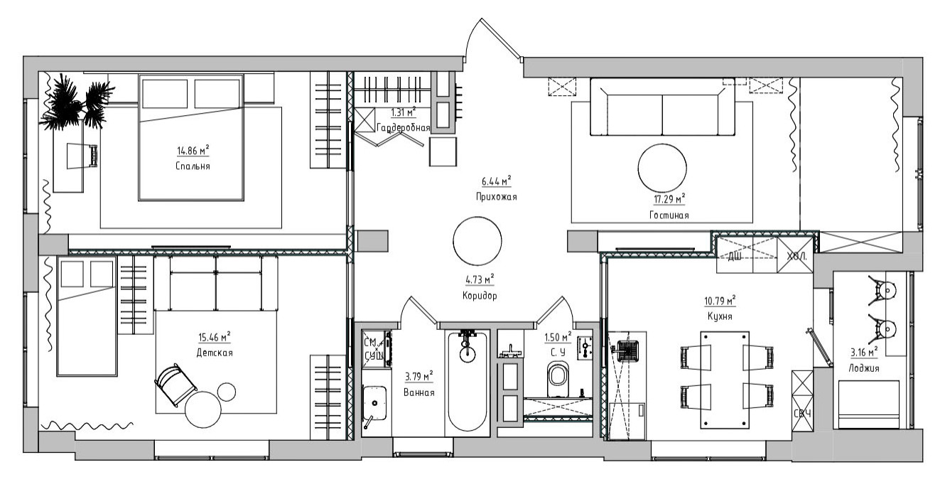
![Поиск планировки: Семейная квартира хитрой формы [4 варианта]](https://static.flatica.ru/simgs/262120620176540c_16-4741/home-design.jpg)
Хозяева купили квартиру, как у друзей, и по их же рекомендации нашли на Houzz дизайнера. Что получилось в итоге?
![Поиск планировки: Для мамы, папы, дочек и бабушки [3 варианта]](https://static.flatica.ru/simgs/3de1fd930165a796_16-2175/home-design.jpg)
Хозяева нашли дизайнера на Houzz, чтобы продумать функционал до мелочей как минимум на 10–15 лет вперед

►Заказали на Houzz
Houzz-туры (новые проекты)
По метражу
свыше 100 кв.м
По городам
Таунхаусы
Проекты в Москве
На первом этаже английская неоклассика, на третьем — очень тёмный лофт