logo

Ликбез: Желательные [но не обязательные] листы в дизайн-проекте

Чертежи и документы, которые делают только для масштабных и / или элитных проектов

Саша Зайцева
Саша Зайцева

15 окт. 2019

Обновлено 6 нояб. 2019

журналист, редактор

Есть чертежи и планы, которые не считаются строго обязательными, но на самом деле могут понадобиться во время ремонта. В каких случаях их делают? И для чего? Мы опросили 300 дизайнеров, архитекторов и проектировщиков, чтобы узнать, зачем им нужна такая сверхнормативная работа.
Из чего состоит стандартный дизайн-проект?
Базовый состав дизайн-проекта требует как минимум 11 чертежей, о них мы рассказывали подробно в статье «Какие чертежи в проекте — обязательные».

Кратко повторимся:
1) обмерный план,
2) план демонтажа,
3) план монтажа,
4) план расстановки мебели и техники,
5) план дверей и окон,
6) план полов,
7) план электрики (розеток),
8) план освещения,
9) план стен,
10) план потолков,
11) план сантехники.

Такой набор планов помогает сделать практически любой ремонт. Но некоторым дизайнерам стандартного набора чертежей мало — они делают клиентам дополнительные чертежи, цветовые схемы, проекции сложных узлов, экспликации, сметы, ведомости. Какие именно и зачем?


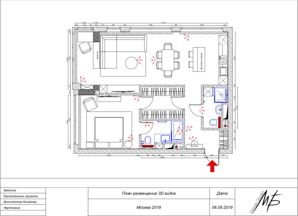
1. ПЛАН РАКУРСОВ
Что это: Чертеж квартиры или дома «сверху», на котором стрелочками указано, с каких точек будут сняты ракурсы 3D-визуализации в проекте. Аналогичные отметки делают на плане, чтобы показать, к какой именно стене относятся развертки или технологические узлы.

Роман Струков, архитектор: «Вся детальная информация о стенах находится именно на развертках. А план разверток нужен для навигации по ним».
Ликбез: Желательные [но не обязательные] листы в дизайн-проектеМария Боровская
Зачем нужен: Для наглядности и навигации по визуализациям и разверткам. Найдите на плане выше прихожую и поймите, с каких точек делали «виртуальную съемку» в этом проекте.

2. ПЛАН ЗОНИРОВАНИЯ
Что это:
План квартиры (вид сверху) в нескольких цветах — пятно жилой зоны, пятно нежилой зоны. Либо каждый цвет соответствует своей комнате.
Ликбез: Желательные [но не обязательные] листы в дизайн-проектеОльга Солнышкова
Зачем нужен: Дать клиенту наглядное понимание о функциональной нагрузке пространства. Например, как так: площадь жилой зоны даже меньше, чем проходных и нежилых помещений? Помогает клиенту понять, как именно будет организована жизнь в новом интерьере.

Даша Баранова, архитектор: «Мало кто задумывается на этапе проектирования, сколько полезной площади может уйти, например, на коридоры, мало эксплуатируемые углы или проходы, лестницы. А площадь гостиной может быть в разы больше небольшой спальни. Для квартир это важно».
Сравните: на чертеже выше — планировочное решение. Но сколько на самом деле занимают жилая и нежилая зоны? Все вопросы снимает план с цветовым кодированием
______________________________


3. ПЛАН «ЧЕМОДАНОВ В ШКАФУ»
Что это: Чертежи, которые показывают, где конкретно в шкафу будут стоять гладильная доска и пылесос.
Зачем нужен: Такие чертежи обычно делают, если требуется организовать нестандартное хранение габаритных вещей (больших чемоданов, спортивного инвентаря и пр.). Или если в шкафу планируется хозяйственная секция с выдвижной сушилкой белья, отсеком для встроенной гладильной доски и пр. Такого рода наполнение важно спланировать заранее, при заказе шкафа.

Если шкаф уже есть, но на полках не хватает места — внутреннее пространство можно реорганизовать. И для этого, опять же, нужен план внутренней организации пространства.
Александра Ларч, организатор пространства: «По профессии я организатор пространства. Поэтому предлагаю услуги, отличные от дизайнерских. Мне не важно, как выглядит шкаф, но важно, как выглядит то, что в нем. Можно сказать, что я — дизайнер наполнения. Потому и мои проекты представляют собой нечто иное, предназначенное только мне для выполнения работ, если не предусмотрена самостоятельная работа клиента над моим планом организации. В этот план входят схема внутреннего наполнения с размерами и разметкой, где и что должно храниться, а также список рекомендаций к покупке для достижения наилучшего результата».

ПО ТЕМЕ
Где сушить белье в квартире… красиво
_______________________________

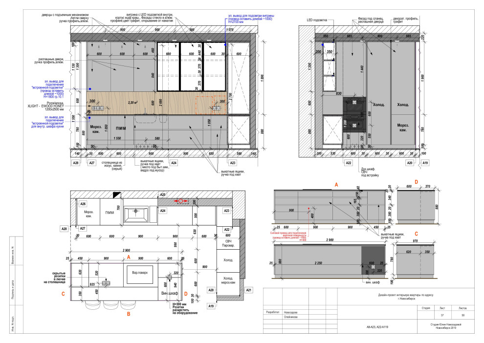
4. ЧЕРТЕЖИ МЕБЕЛЬНЫХ УЗЛОВ
Что это: Обширная рабочая документация на мебель индивидуального изготовления. Например, это может быть встроенный шкаф или кухня. Иногда — просто предмет мебели авторского дизайна.
_________________________
Ликбез: Желательные [но не обязательные] листы в дизайн-проекте
Подробная прорисовка мебели помогает заказчику представить, как интерьер будет выглядеть в деталях. А чертежи — это руководство для мебельщиков и рабочих, чтобы правильно и воплотить картинку в жизнь. Не придется решать на месте, как именно и где крепить полки, куда подводить электричество для подсветки шкафа — чертежи делаются с привязками к планам полов, электроразводки, стен и т.п.
Ликбез: Желательные [но не обязательные] листы в дизайн-проектеОльга Солнышкова
Как это может выглядеть
  • Как 3D-визуализация шкафа с внутренним наполнением, полками, ящичками и т.п.
  • Как рабочая документация для мебельщиков: чертежи изделия, таблички с указанием артикулов фурнитуры, подробное техническое задание.
  • Как спецификация (ведомости) материалов, из которых должен быть сделан шкаф, с артикулами и картинками (например, дверных фасадов).
  • Как эскизы авторской мебели (делаются и на компьютере, и вручную).
Ирина Мелкова, архитектор-дизайнер (делает рабочую документацию для заказа мебели или дверей у итальянских производителей): «Часто бывает необходимость какие-то элементы изготовить индивидуально, в таких случаях итальянские производители охотно идут мне навстречу, видя визуализацию проекта, детальные чертежи и подробное описание».
Ликбез: Желательные [но не обязательные] листы в дизайн-проектеОльга Солнышкова
Мария К. (Козлова), дизайнер: «У нас есть листы “ТЗ для столярок”, в которых подробно расчерчены все полочки, штанги и ящики. Это нужно, чтобы пылесосы, чемоданы и гладильные доски нашли свое место и пространство смотрелось чистым и не загроможденным».

Анастасия Оверина, дизайнер, основатель студии DOKA interior: «Это чертежи + подробное описание из чего изготовить предмет + 3D-виды. Обычно в спецификациях все прописывают, потом мебельщики спрашивают и все равно требуют 3D-вид с нескольких ракурсов, бывали случаи».
_______________________________

5. ПЛАН ВЕНТИЛЯЦИИ И КОНДИЦИОНИРОВАНИЯ
Что это: Планы, чертежи и схемы расположения / разводки вентиляции и сплит-системы.

Зачем нужно: Вентиляция и сплит-системы понижают потолки (чаще всего, в санузлах и коридорах). Эти чертежи помогают точно и аккуратно рассчитать высоты потолков, расположение решеток вентиляции, процесс притока свежего воздуха в квартиру, стык встроенной мебели и вентиляционных выводов и прочее.

Иван Сельвинский, архитектор: «Еще до подключения инженеров сами делаем черновую схему кондиционирования и вентиляции, и уже ее обсуждаем с проектировщиком. Потому что если дать волю вентиляционщику, то он сразу понизит потолки на 30 сантиметров… Это шутка, конечно. Но очень близкая к правде».
Ликбез: Желательные [но не обязательные] листы в дизайн-проектеАндрей и Екатерина Андреевы
Наталья Мартынова, руководитель студии дизайна Whiteroom: «Очень важен план вентиляции и вентиляционных люков и то, как он соотносится с планом электрики. Мы тоже его делаем, чтобы не было проблем в дальнейшем с выводом светильников. И иногда это непростая задача соблюсти симметрию, вывести грамотно свет и сделать удобные люки».

Стас Никулин, дизайнер: «Часто, работая в среднем сегменте, в квартирах про вентиляцию забывают. А ещё чаще делают неправильно, отбирая отток свежего воздуха у всей квартиры в пользу кухонной вытяжки. Так делать нельзя! Мы стараемся правильно организовывать систему оттока воздуха с минимальными затратами, для этого разрабатываем чертежи, прокладываем трубу, разрабатываем сценарии для установки канальных вентиляторов».
Как это может выглядеть
  • Как развертка с обозначением места крепления кондиционера (на плане выше).
  • Как рабочая документация, сделанная специалистами вентиляционной компании, но согласованная с чертежами дизайнера. Это нужно, чтобы и инженерная начинка была сделана правильно, и при монтаже рабочие делали все не так, как им удобно, а так, как требует дизайн.
  • Чертежи могут быть дополнены разрезами и планами сложных узлов, а также 3D-визуализацией — для наглядности.
  • В спецификации указываются модели вентиляционных решеток и место их расположения.
_______________________________

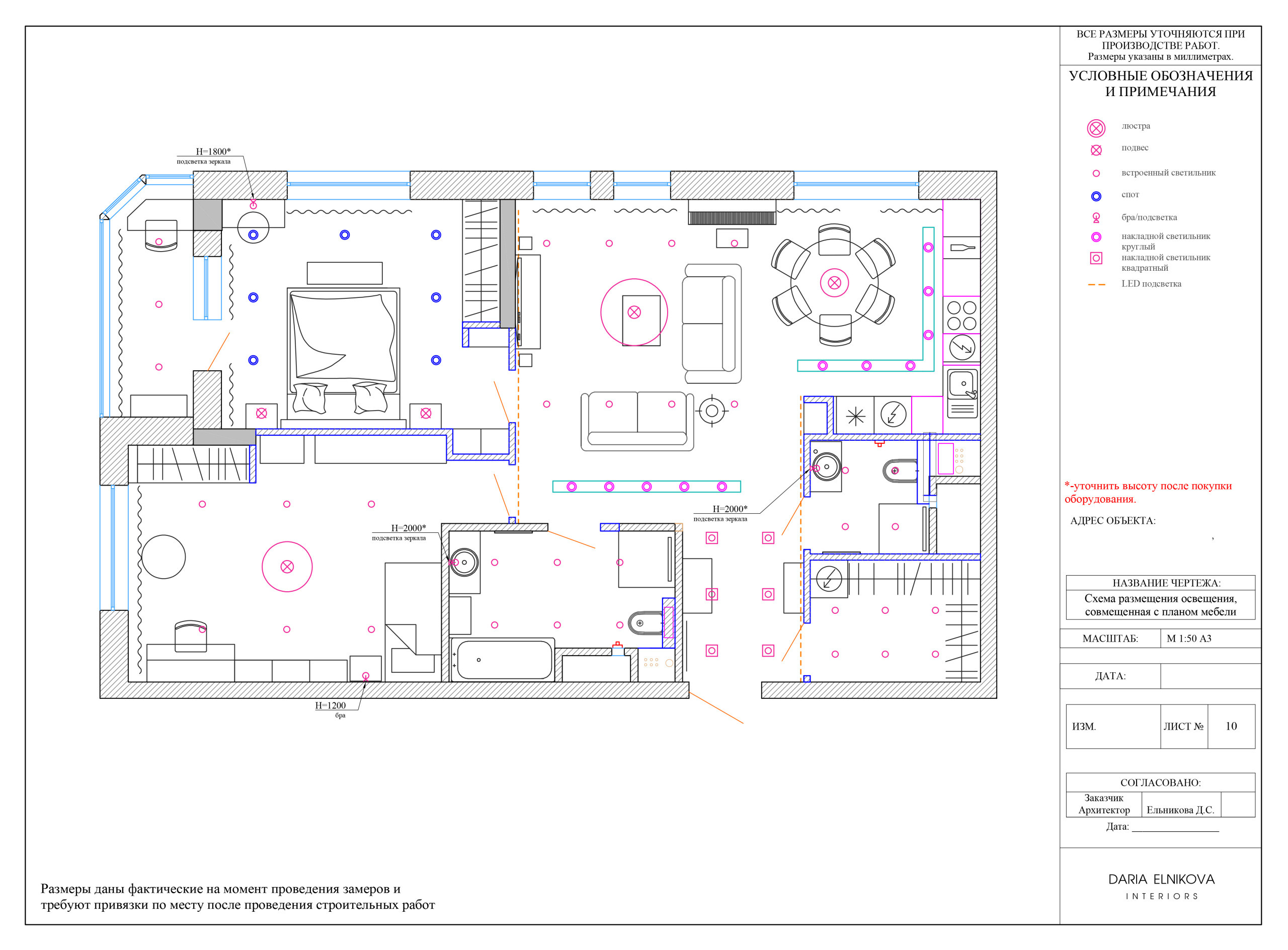
6. ЧЕРТЕЖИ И ВЕДОМОСТИ РОЗЕТОК И ВЫКЛЮЧАТЕЛЕЙ
Что это: Планы, развертки и (или) чертежи, которые подробно показывают, где и какие будут розетки и выключатели, выводы интернета и т.п.
Зачем нужно: Вам — помогают понять, где вы будете включать свет, когда приходите с работы, а где — заряжать телефон. И какие зоны освещения будут в комнате (где вечерний свет, где акцентный, где — рабочий). А строителям четко указывают, на какой высоте делать розетку, и где какая будет стоять рамка (за стиральной машинкой — обычная, недорогая, а на виду — дизайнерская).
Сравните — три плана электрики для одной и той же квартиры

Екатерина Шубина, дизайнер: «Лично я делаю смежный план расстановки электрического оборудования, освещения и мебели. Он довольно наглядный, по такому плану заказчику легко представить себя в интерьере, где он входит в дом, включает свет, кладет ключи и так далее».

Тамара Романенкова, дизайнер: «Я расписываю не только общее количество розеток, выключателей, но и количество и виды рамок для них, чтобы заказчик при желании мог самостоятельно и без проблем закупить все необходимое. Вроде бы мелочь, не все это делают, но очень облегчает жизнь заказчику, а также показывает общий подход к проекту».

Ксения Долгова, архитектор: «В моем составе проекта есть лист “Ведомость электроустановочных изделий”. Пронумерованы и отмечены все посты, есть изображение, в каком порядке расположены в одной рамке выключатели, розетки и датчики; какая рамка вертикальная, какая горизонтальная».
Как это может выглядеть
  • Как развертки стен (вид стены «анфас») с указанием точки привязки розетки и выключателя (см. выше).
  • Как рабочая документация, чертежи для рабочих — чтобы им понимать, где штробить каналы и какие светильники от каких выключателей должны работать.
  • Как визуализации в программе DIALUX, которые показывают зоны освещенности.
  • Как ведомости и спецификация рамок розеток и выключателей, чтобы понимать, какие именно и сколько покупать.
  • Как планы, чертежи и визуализации, которые в комплексе показывают мебель, обстановку, розетки и свет.
Ликбез: Желательные [но не обязательные] листы в дизайн-проектеПолина Лобжанидзе
На этих развертках точно обозначено место крепления домофона и места размещения выключателей
Ликбез: Желательные [но не обязательные] листы в дизайн-проектеЕлена Владимировна elena_zubok
Визуализация освещенности квартиры, выполненная в программе DIALUX и ниже — соответствующий ей план освещения
Ликбез: Желательные [но не обязательные] листы в дизайн-проектеЕлена Владимировна elena_zubok
Елена Зубок, проектировщик, преподаватель: «Наносить розетки и выключатели надо на развертки помещений, которые наиболее наглядно позволяют представить картину расстановки, удобны для работы электрика и создают точную картину проектировщика. Чтобы правильно распланировать свет и не сделать эту часть проекта сильно затратной, можно предлагать расчет светильников в рукотворном или электронном варианте в программе DIALUX».
_______________________________

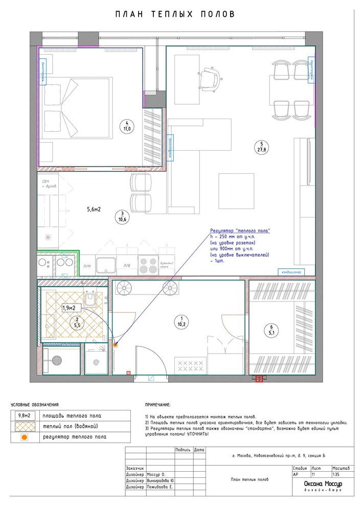
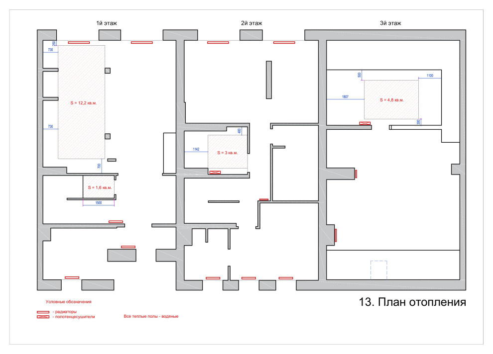
7. ПЛАНЫ ТЕПЛОГО ПОЛА И ОТОПЛЕНИЯ
Что это: Чертежи разводки отопления с защитными экранами и планы квартиры с указанием зон теплого пола.
Ликбез: Желательные [но не обязательные] листы в дизайн-проектеОксана Моссур
Зачем нужно: Помогает рассчитать отопление в квартире, особенно если планируется перенос радиаторов, установка вертикальных радиаторов вместо горизонтальных и т.п. А если в квартире есть теплый пол, его нельзя заводить под холодильник или под шкафы — это все должно быть подсчитано в комплексе.
Ликбез: Желательные [но не обязательные] листы в дизайн-проектеАлександр Михайлов
Как это может выглядеть
  • Как рабочая документация для строителей, которые будут монтировать теплый пол и батареи.
  • Как ведомости со спецификациями по батареям.
  • Как развертки с указанием, какие и где будут стоять защитные экраны.
    ____________________________
8. ЧЕРТЕЖИ И ПЛАНЫ СЛОЖНЫХ УЗЛОВ
Что это:
Документация по любым потенциально проблемным моментам. Например, место стыка столешницы и решеток радиаторов отопления на кухне. Или нестандартная разводка сантехники. Или место стыка подоконника и штор: чтобы текстиль красиво драпировался, нужно учесть и ширину подоконника, и место крепления гардины.
Ликбез: Желательные [но не обязательные] листы в дизайн-проектеПолина Лобжанидзе
Зачем нужно: Любые сложные узлы или решения — место вывода вентиляции на кухне, строительство деревянного подиума с системой хранения или антресолей — это «слабые места» в интерьере. Велика вероятность, что что-то где-то будет подрезано или отпилено не так. В итоге все будет выглядеть нехорошо. Лучше, если все эти моменты будут просчитаны заранее.
Ликбез: Желательные [но не обязательные] листы в дизайн-проектеПолина Лобжанидзе
На этих развертках указаны места крепления сантехоборудования и отдельно проработаны узлы стыковки вентиляционных коробов

Как это может выглядеть
  • Как дополнительный, отдельный чертеж какого-то сложного момента — на него будет сделана отдельная ссылка в общих документах.
  • Как аксонометрические проекции стыков встроенной мебели, потолочных и напольных плинтусов и т.п.
Ликбез: Желательные [но не обязательные] листы в дизайн-проектеМария Боровская
Здесь: план по стыкам. Показывает, как именно должны сопрягаться разные покрытия
Ликбез: Желательные [но не обязательные] листы в дизайн-проектеПолина Лобжанидзе
На развертке: закладные под шторы
Ликбез: Желательные [но не обязательные] листы в дизайн-проектеAlisa Shabelnikova
Здесь: план закладных под шторы

Евгения Матвеенко, архитектор: «Лично я, помимо закладных, делаю еще план штор, совмещенный с подоконником. Это показывает, как шторы скрадывают пространство, а это 2025 см».

Юлия Лаптева, дизайнер:
«Такая работа помогает избежать косяков и ошибок на стадии реализации. Когда все детали заранее продуманы и просчитаны, — на стройке меньше ошибок и вопросов».

Алена Сковородникова, дизайнер: «Я очень часто вычерчиваю аксонометрию и аксонометрические проекции, это позволяет более подробно и детально рассказать о каком-то строительном элементе или предмете интерьера».

Дарья Шатилова, архитектор: «Если в квартире или доме сложная разводка сантехнических коммуникаций, — например, иногда сложно развести канализацию, — приходится самой выполнять и этот чертеж».
____________________________

9. ПРОЕКТЫ ШУМОИЗОЛЯЦИИ
Что это: Техническая документация по монтажу акустических материалов. Такие материалы имеют определенную толщину, увеличивают суммарную толщину перегородки и уменьшают фактическую площадь помещения. Все это влияет на размещение мебели, раскладку материалов. Кроме того, акустические материалы также продаются листами, и чертеж шумоизоляции позволяет рассчитать корректно их расход.
Ликбез: Желательные [но не обязательные] листы в дизайн-проектеAlisa Shabelnikova
Как это может выглядеть
  • Как дополнительная сноска в монтажных планах (выше пример именно такой документации).
  • Как подробная рабочая документация для строителей.
  • Как ведомости и спецификации по материалам.
ВАША ОЧЕРЕДЬ…
Среди наших читателей много практикующих архитекторов и дизайнеров. Какие чертежи из необязательных делаете вы? А какие, как вам кажется, почти никто другой больше и не делает? Покажите в комментариях

Комментарии 14

Всегда знала и уверена в том что автор проекта, может достичь отличного результата тогда когда проект полон и чем более проработан в деталях тем лучше его реализация. Кто экономит деньги на проекте, рискует получить полуфабрикат, на что потом, конечно, винить проектирование не имеет смысла.
Ф
Спасибо за уточнения, коллеги, это действительно важно!

Оставьте комментарий

Смотреть похожие темы

Читать похожие статьи