Личный опыт: Как я искал типовой проект дома и его корректировал

Чему научился, что сейчас сделал бы иначе

Филипп Урбан
Филипп Урбан

18 дек. 2020

Обновлено 29 янв. 2021

Постоянный автор houzz. Журналист-загородник, "двигатель", экспериментатор и практик. . . Люблю свою дачу: придумывать, проектировать, строить, мастерить, разбираться с инженерными системами. . . Время от времени "дачное" хобби становится источником дохода: сотрудничаю с профильными СМИ, консультирую желающих выбрать дом, участок, помогаю представителям строительных компаний продвигать свои проекты и налаживать коммуникации через социальные сети

Весной 2020 года я начал строить второй дачный дом в пригороде Санкт-Петербурга. В наличии уже был незастроенный участок с подведенными коммуникациями, небольшие сбережения и главное — масса свободного времени, возникшего из-за мировой пандемии. Если в преддверии нового сезона вы думаете о строительстве собственного дома, возможно, вам будет полезен мой опыт и «грабли».
Что мы искали На семейном совете определились с « хотелками » . Нам был нужен компактный загородный дом для семьи из трех поколений, пригодный для проживания зимой. Каждому члену семьи необходимо было организовать « свой угол »: комнату с тамбуром и отдельным выходом к лесу — для бабушки (грибной сезон — это ее время), кабинет и мастерскую — для меня, отдельные комнаты для детей. Но пришлось себя ограничивать. Во-первых, бюджет, мягко говоря, не резиновый. Во-вторых, дом строится на десятилетия, за которые состав и потребности семьи могут измениться. К примеру, дошкольнику нужна спальня рядом с родителями, а подростку — свой угол подальше от мамы с папой. В итоге во главу угла поставили ликвидность.
Проект — адаптированный типовой Считаю, что дом должен быть таким, чтобы его в любой момент можно было продать или сдать в аренду. Если « подгонять » загородный дом под специфические вкусы хозяев, он станет подобен костюму индивидуального пошива: очень дорогой, но на вторичном рынке — почти стопроцентный неликвид. Потому я решил строить компактный домик по типовому проекту с некоторыми доработками: заложить возможность пристройки, разделения или объединения комнат, организации дополнительных санузлов и так далее (смотрите поэтажные планы ниже) .
Потолки — выше привычного Класс и ликвидность загородной недвижимости, как мне кажется, определяет размер жилых помещений. Оптимальная высота потолков — 2,7 м, ширина комнат — 3,6 м. Я в своих выводах отталкиваюсь от «габаритов» типовой хрущевки и « брежневки » : любые помещения чуть просторнее автоматически воспринимаются как комфорт-класс. В перспективе такой дом будет легче продать или сдать подороже. Конечно, можно было бы размахнуться и сделать залы с трехметровыми потолками. Но здесь вопрос финансовый: протапливать более значительные объемы помещений накладно, да и участок небольшой — всего семь соток.
На фото: пример проекта двухэтажного дома из бруса 6х9 с гостиной, детской и кухней на первом этаже и двумя спальнями на втором. Фото с сайта mastergrad-spb.ru Размер дома — 6х9 м Считаю, что это оптимальный размер дачного дома для небольшого участка в садоводстве. Во-первых, стандартные брус и доски, которые продаются на стройбазах и пилорамах, имеют шестиметровую длину. Отступление от этих параметров резко увеличивает и расход материалов, и трудозатраты. Во-вторых, дома 6х9 м достаточно для небольшой семьи и небольшого участка. Ну а если семья любит принимать гостей, разрослась или у кого-либо из членов появилось хобби — не нужно пытаться загнать всех под одну крышу. Лучше в будущем поставить гостевой домик (он может быть совмещен с баней, гаражом, мастерской, летней кухней, — здесь каждому свое}. Прежний опыт и «работа над ошибками» Первую свою дачу я построил около пятнадцати лет назад. Точнее, строил ее по найденному в сети проекту местный лесник, а по совместительству — прораб-одиночка. Вместе с ним карандашом в блокноте мы рисовали планы. Затем в том же блокноте он делал чертежи каждой каркасной стенки. Каркас дома собрали из слегка подсушенной доски с местной пилорамы — только на гвоздях, без единого самореза и уголка. Лесник свое дело знал. Несмотря на « дедовский » способ проектирования и строительства, дом получился ладный, за прошедшие годы не сгнил, не перекосился, полы не провалились, а крыша не « уехала » .
Но ошибки, конечно же, были. Их я учел при строительстве нового дома. Внимательно выбирать краску для фасадов. В прошлый раз фасадный имитатор бруса покрыли бесцветной пропиткой популярного бренда. Но выяснилось, что она « не держит » других фасадных красок. Поэтому свежая краска довольно скоро начала слезать клочьями (на фото это видно). Утеплять дом « с запасом » . Требования к утеплению, прописанные в СНиП 23-02-2003 «Тепловая защита зданий», слишком мягкие, для постоянно эксплуатируемого загородного дома их недостаточно. Зимой, несмотря на хорошую печку и обогреватели, наш дом плохо держит тепло. Сделать подробный проект. Без него в прошлый раз стройка затянулась, а бюджет строительства оказался в полтора раза выше планируемого. К тому же импровизации на ходу всегда ведут к ошибкам и неоправданным затратам времени. Поэтому к моменту начала стройки все должно быть продумано.
Скрин с сайта karkasdom.info Критерии покупки проекта дома Сайтов, предлагающих к продаже готовые проекты, — многие десятки, проектов на них — тысячи. Но, прямо скажем, выбрать подходящее решение оказалось очень непросто. Большинство представленных там картинок — это проекты (на мой вкус) с модными излишествами в виде радиусных стен, панорамных окон, огромных террас. Воплотить все это в жизнь в условиях садоводства и с использованием стандартных комплектующих с окрестных стройбаз и строительных гипермаркетов — практически невозможно. Причем к продаже чаще всего предлагается только « архитектура » . Остальные разделы необходимо разрабатывать за дополнительную плату.
На фото: вариант отделки дома вагонкой с окраской. Фото с сайта karkasdom.info Мне же был нужен классический дачный дом размером 6x9 метров с полной проектной документацией, включающей не только архитектурный раздел (картинки и планировки), но и конструкторский — с подробными чертежами и проектом прокладки коммуникаций. Еще одно обязательное условие — наличие сметной ведомости, позволяющей без проблем приобрести все комплектующие и материалы в торговых сетях. В итоге у меня получился целый список требований к проекту.
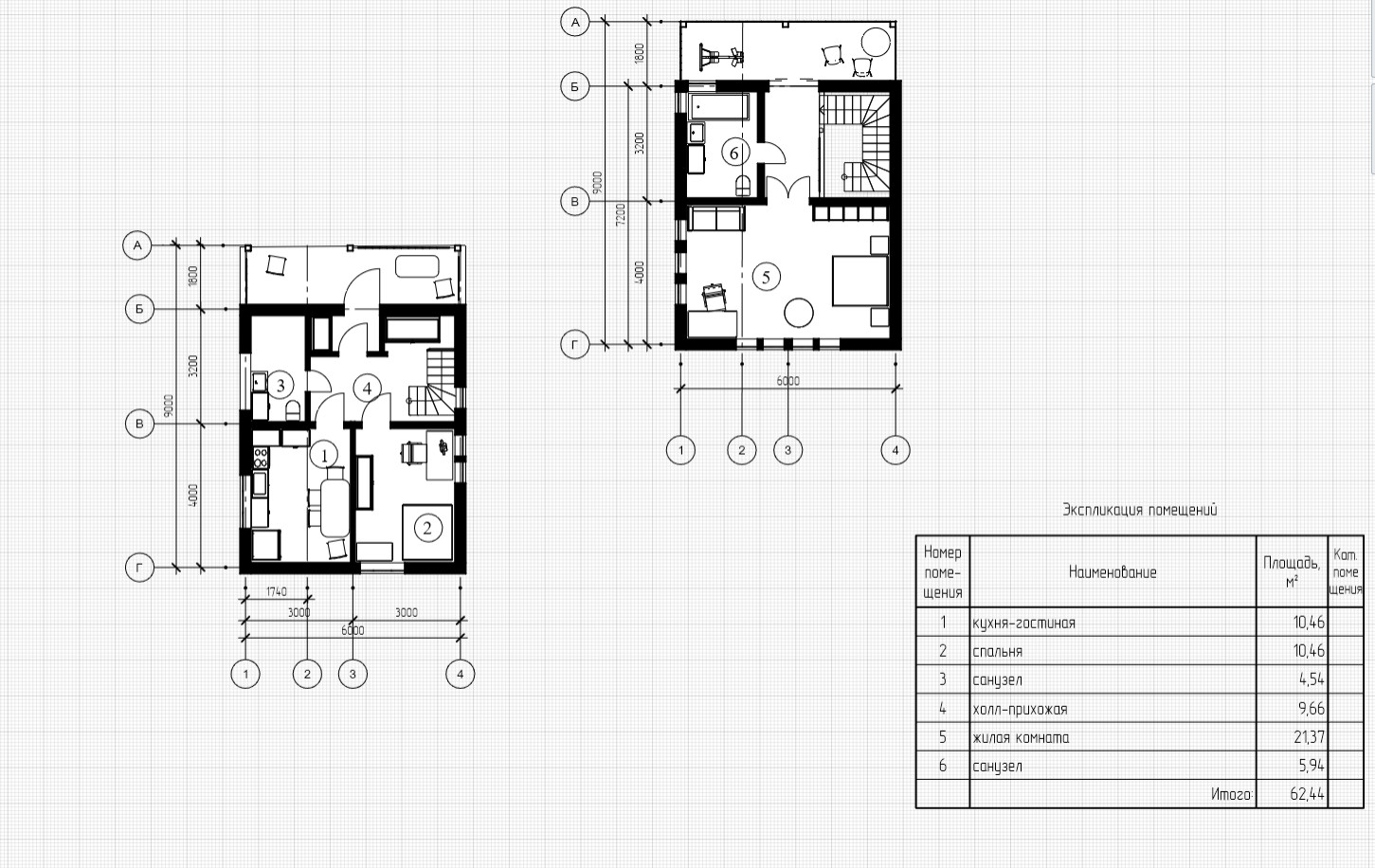
Планировочное решение первого этажа дома, проект которого я приобрел К разработчикам: они должны быть хорошо знакомы именно со спецификой дачного строительства. К архитектурному решению : дом должен быть пропорциональным и хорошо смотреться. Отделка фасадов и пристройки в виде дополнительных террас и крылечек — дело наживное. Если сам дом ладен и гармоничен, его трудно испортить отделкой. К планировке: удобная, аккуратно вписанная лестница на второй этаж. Что касается собственно состава помещений, то здесь все не столь принципиально и можно откорректировать, подвинув любую стенку, убрав или поставив перегородку. Но неудачное расположение лестницы — это навсегда. К рабочим чертежам: чтобы прорабу не пришлось изобретать узлы и сочленения на ходу. Дал чертежи в руки любому строителю, крепко держащему молоток и пилу, — и порядок. К комплектационным ведомостям: чтобы все материалы и комплектующие можно было купить на стройбазе или в гипермаркете. А именно: заглянуть в сметную таблицу, затем — на сайт гипермаркета и сразу заказать доставку того, что нужно, в необходимом количестве.
Планировочное решение второго этажа дома Когда я сформулировал эти требования, выбор подходящих готовых проектов со многих тысяч сузился до пяти, а потом — до одного. Связавшись с разработчиком, получил пять альбомов формата А4 с чертежами и таблицами. Кроме картинок с планами и фасадами, в составе документации присутствовали подробные чертежи каждой каркасной стенки, всех элементов, включая стропильные узлы и лестницу на второй этаж, проект электро- и водоснабжения, а также отдельная брошюра с подробной сметой по всем разделам.
Возможные трансформации дома, заложенные в проект: расположение дверей и окон на обоих этажах позволяет объединять или делить комнаты; в ванную на первом этаже можно вписать миниатюрную сауну, а вместо второго санузла на верхнем этаже сделать кабинет или гардеробную; п росторную террасу можно застеклить, превратив в веранду, и выделить небольшое помещение под мастерскую или кладовую
На фото: двухмаршевая лестница в доме из бруса. Фото с сайта brus-ru.ru История моего знакомого: О ней я узнал, когда уже нашел проект и начал строительство. Знакомый выложил за готовый проект вытянутого в длину, но очень простого одноэтажного дома с демократичной отделкой 20 тысяч рублей. Потом столько же — за переделку архитектурного решения и еще 40 тысяч — за рабочие чертежи. Заплатив за комплект, он попросил, чтобы ему (также за отдельную плату) рассчитали стоимость строительства. И получил астрономическую сумму. Оказалось, все дело в коньковом брусе и прогонах в виде 14-метровых балок из клееного бруса, присутствующих в проекте. Возможно, при масштабном строительстве и освоении территории с организации подъездных путей — это вариант. Но конструктор не учел, что эти балки придется заказывать и доставлять в садоводство, где участки по шесть соток и ни одной прямой улочки.
Как я работал с проектом и сметой Смета — самая важная (после теплотехнических расчетов и узлов) часть проекта. Она позволяет увидеть конечный результат, что называется, на берегу, открывает возможность быстро принимать решения, управлять издержками и следить, чтобы все необходимое для каждого этапа стройки было под рукой. Например, если количество пиломатериалов просчитано до каждой доски, их можно купить заранее — в периоды сезонных распродаж. Если известны только общие объемы, так сделать не получится: вы либо купите лишнее, либо придется дозаказывать и опять тратиться на доставку. К сожалению, цены на месте не стоят. Поэтому на основании предложенной сметы я сделал для себя электронную таблицу с активными ссылками на соответствующие товарные позиции в каталогах поставщиков (как на скрине ниже). Наличие активных ссылок позволяет вести мониторинг цен и охотиться на материалы со скидками. По мере продвижения к финалу стройки смета редактируется, в ней отражаются сделанные замены материалов, фактические и непредвиденные расходы. Рабочая смета дает возможность управлять издержками. Например, приобретать те или иные комплектующие на распродажах, заменять дорогие материалы более доступными аналогами.
На чем сэкономил Цены на самые распространенные строительные материалы в торговых сетях отличаются незначительно. А вот на комплектующие и крепежи — у поставщиков сильно разнятся. Рассылая заявки на расчеты в разные компании, я столкнулся с тем, что лишний телефонный звонок или запрос нередко оборачиваются выгодой до 20 тысяч рублей. Лично мне удалось серьезно сэкономить на досках и брусе. В самом начале пандемии поставщики пиломатериалов предлагали хорошие скидки. Поэтому к началу работ все доски были отсортированы, высушены, антисептированы, а стойки каркаса, напиленные в размер, ждали своего часа. Установка канализационной станции по цене сезонной акции и покупка душевой кабины на распродаже позволили мне заменить предусмотренную проектом металлочерепицу на более дорогую фальцевую кровлю. Важно: Закупка материалов впрок — палка о двух концах. Мне еще крупно повезло — лето было жарким, почти без дождей. Тем не менее осенью, когда дело дошло до обрешетки кровли, оказалось, что доски уже подбиты грибком — несмотря на то, что хранились под тентом. Не удалось спасти и три мешка купленного впрок цемента. Зато теперь я твердо знаю: если стройка планируется на осень и грозит уйти в зиму, начинать нужно с организации мест для хранения — сарая, тентов, навеса.
Кстати: В процессе поисков обнаружил, что не все проекты одинаково подробные. Небольшие строительные компании и частные подрядчики чаще всего предлагают своим клиентам так называемые укрупненные сметы — с завышенными ценами на материалы и заниженной стоимостью работ. Оно понятно: с их точки зрения, экономить должен не заказчик, а прораб. Поэтому мой совет: смотрите разделы и количество нулей в конце итоговых позиций. Если цифры сплошь круглые, с тремя-четырьмя нулями на конце — есть повод углубиться в изучение, запросить подробности либо взять закупку материалов под свой контроль. Разделы вроде « расходники » , « электрика » , « сантехника » уж точно не должны округляться. Плохо: «э лектрика — 50 000 рублей ».
На фото: просторная терраса на первом этаже во время строительства используется как навес, где можно разместить пильный станок Что хотел бы изменить Разумеется, и фасадное решение, и планировка, и смета были мной до неузнаваемости отредактированы. И все-таки я нисколько не жалею о том, что потратился на приобретение столь подробной проектной документации. Но ошибки все равно неизбежны: не ошибается только тот, кто ничего не делает. Источник самых типичных ошибок — перепланировки на ходу. Например, попытка « подвинуть » дверь, окно или стенку уже непосредственно на месте. Вроде бы и мелочь, но такая переделка в каркасном доме затрагивает сразу несколько узлов, которые приходится пересчитывать. И гораздо лучше делать это « на бумаге » , чем на стройплощадке. Стройка еще не завершена, но уже сейчас прихожу к выводу, что многое сделал бы иначе. Например, возвел полноценный второй этаж вместо благородной, но непрактичной мансарды.

Комментарии 18

Спасибо, интересный проект и мысли такие же интересные
rame420 Еще одно замечание: стройка это всегда непредсказуемый процесс, а ремонт и перестройка старого дома - это просто минное поле, где никогда не знаешь, "на сколько попадешь" за тем или иным поворотом... . Сколько бы мы ни просчитывали финальную стоимость проекта (повторюсь, у нас - столетний дом и дача в горах, которой уже почти 200 лет) - всегда итоговая стоимость была примерно на 20-30% выше, и по моему мнению, это еще совсем неплохое расхождение от первоначальной сметы. Так что всем советую закладывать хотя бы 30%-й резерв, чтобы потом деньги не закончились в самый неподходящий момент. Да, согласен! Тем более, что мы опять вступили в полосу экономической турбулентности: скидки отменяются, нужный товар дорожает и быстро заканчивается. Плюс к этому - не растягивать процесс, а строить быстро.
rame420

4 г.

Еще одно замечание: стройка это всегда непредсказуемый процесс, а ремонт и перестройка старого дома - это просто минное поле, где никогда не знаешь, "на сколько попадешь" за тем или иным поворотом... . Сколько бы мы ни просчитывали финальную стоимость проекта (повторюсь, у нас - столетний дом и дача в горах, которой уже почти 200 лет) - всегда итоговая стоимость была примерно на 20-30% выше, и по моему мнению, это еще совсем неплохое расхождение от первоначальной сметы. Так что всем советую закладывать хотя бы 30%-й резерв, чтобы потом деньги не закончились в самый неподходящий момент. . И, конечно, при ремонте старых зданий большого внимания требует изучение материалов, пригодных для строительства. Наша дача в горах каждую весну при таянии снегов "подмокает", поэтому для полов и штукатурки исторически использовались дышащие материалы. Родители мужа, решив лет 30 назад заменить пол в каменной кухне с деревянного (с дышащими карманами и вентиляционными отверстиями в стене) на бетон с кафельной плиткой - получили сырое, никогда не прогревающееся помещение с плесенью, которое сейчас придется возвращать к первозданной идее... так что, особенно подходя к реставрации старых домов, всегда изучайте опыт предыдущих поколений, проверенный временем... и удачи всем в строительных начинаниях)!

Оставьте комментарий

Похожие статьи

Статьи скоро появятся

Похожие дискуссии

Дискуссии скоро появятся

Лучшие статьи — раз в неделю на почту

Способ подписки скоро появится