Квартира "в Филях"
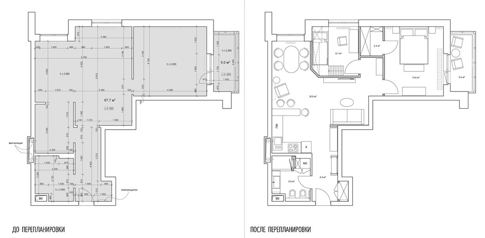
Квартира для молодой семьи тяготеет к классическому стилю (широкие карнизы и плинтуса, двери и кухня с филенками). Однако не лишена элементов в стиле модерн, что проявляется и в цветовых решениях. Кроме того, мы оставили часть стен бетонными. Чтобы осветить квартиру более равномерно, проектом предусмотрено большое количество фрамуг, это обеспечивает лучшую инсоляцию жилых помещений. . Проект находится в стадии реализации.
Год реализации: 2017
14 фотографий














