Дом на Оке
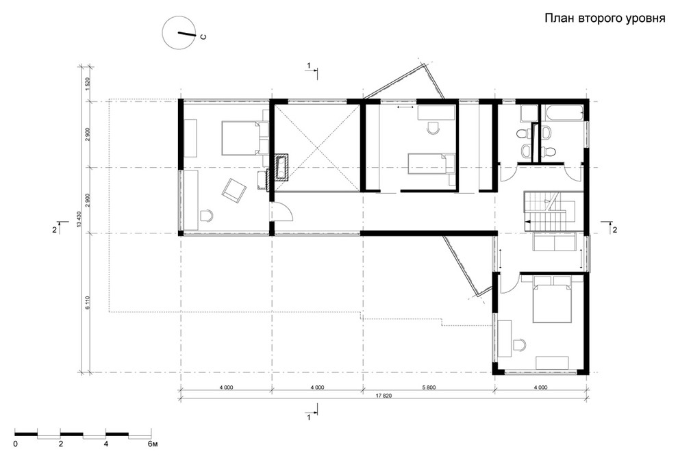
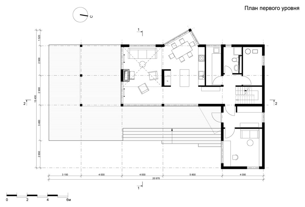
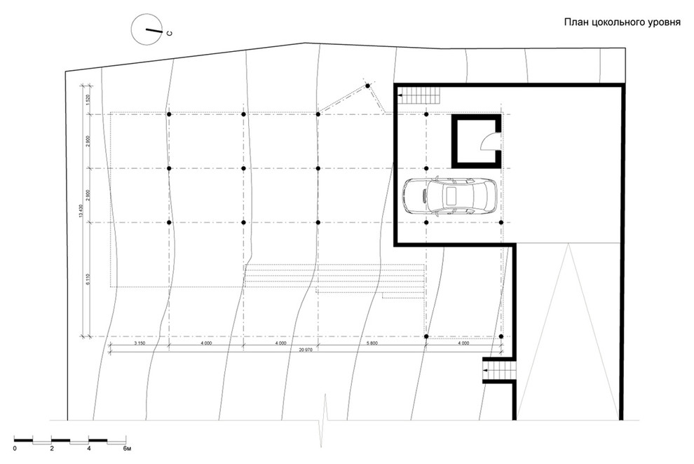
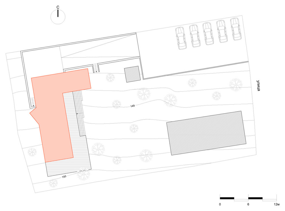
Эскизный проект (концепция) загородного дома для небольшой семьи, которая любит принимать гостей. Участок под проектирование расположен на правом берегу Оки (деревня Лукьяново). Особенности проектирования заключались в посадке дома на участок с уклоном, где уже имеется одно строение. Мы остановились на конструкции на сваях, это позволило сделать удобный подъезд к дому с одной стороны и большую веранду с другой. Это каркасный дом с отделкой из самых экономичных материалов местного производства, в качестве материала для внутренней отделки используется фанера. Общая площадь строения – 200 метров. На первом уровне расположены общие и технические помещения, мастерская. На втором уровне находятся жилые комнаты (из них одна - гостевая). Уровни объединяются двусветным каминным залом.
18 фотографий



















