Квартира "С библиотекой"
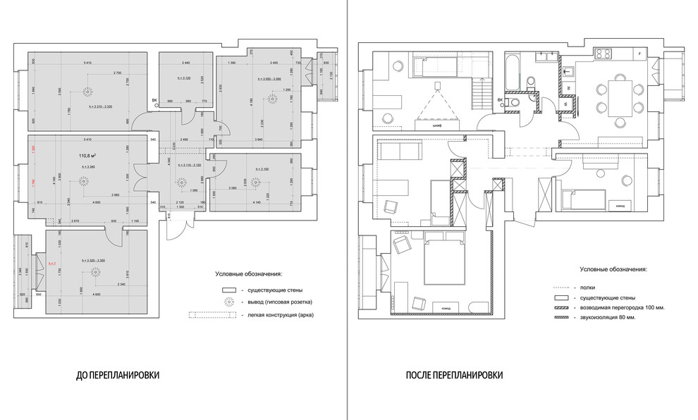
Квартира «с библиотекой» . Проект 2016 года . Авторы: Александр Колганов и Щепенок Евгения . Фотограф: Денис Есаков . Информация о владельцах: Семья — муж, жена, трое детей (старший сын — студент, двое младших учатся в начальной школе). . Информация об объекте: Площадь квартиры 110 квадратных метров. Сталинский дом (Москва, Ленинградский проспект 44) вблизи станции метро Динамо. Последний ремонт в квартире был сделан в начале 90-х. . Пожелание клиента: Перед нами стояла задача сделать частичную перепланировку, решив ряд задач: . — Частично разделить жилое пространство родителей (глава семьи занимается преподавательской деятельностью, много работает дома, ему был необходим отдельный просторный кабинет с возможностью комфортно работать); . — Решить проблемы хранения вещей и в особенности книг (семья имеет довольно обширную библиотеку, места для которой категорически не хватало); . — Поделить детскую таким образом, чтобы двое младших детей могли комфортно проживать в одной комнате; . — Увеличить количество сан. узлов; . — Кроме того, хозяева хотели оставить многие предметы старой обстановки, и органично вписать их в новый интерьер. . Особенности помещения: Последний этаж 5- этажного кирпичного дома. Нам потребовалось устроить дополнительную гидроизоляцию потолков (протечки чердака) и звукоизоляцию (шум лифта). Так же мы произвели частичную перепланировку, замену коммуникаций и полов. . Работа над проектом . Мы поделили гардеробной зоной жилое пространство родителей на спальню и кабинет. Так супруги, один из которых жаворонок, а второй — сова, могут комфортно существовать и работать. . Для хранения книг мы разработали системы хранения во всей квартире, что и дало название проекту. . Детскую мы поделили вертикально, высота потолков более 3-х метров позволила легко это сделать. Почти вся мебель в детской изготовлена специально для нашего проекта. Система спец. изделий включает две кровати, лестницу, ящики, тумбы и шкаф. . Таким образом, нам потребовалось заказать большое количество изделий сразу на двух мебельных производствах в виду большого объема. И контролировать ход производства, чтобы при монтаже все стыковалось как конструктор. . Материалы Хозяйка квартиры полностью доверяла нам в выборе материалов, и наши взгляды тут полностью совпадали. Мы старались использовать традиционные материалы, чтобы сохранить «дух места», старого дома. Кроме того, хотелось сделать квартиру максимально экологичной, мы использовали много дерева (все спец. изделия выполнены из древесины и фанеры). Так же мы отказались от использования пластиковых стеклопакетов, отдав предпочтение деревянным окнам. . .
23 фотографии























