Квартира для молодой семьи в ЖК Скайфорт
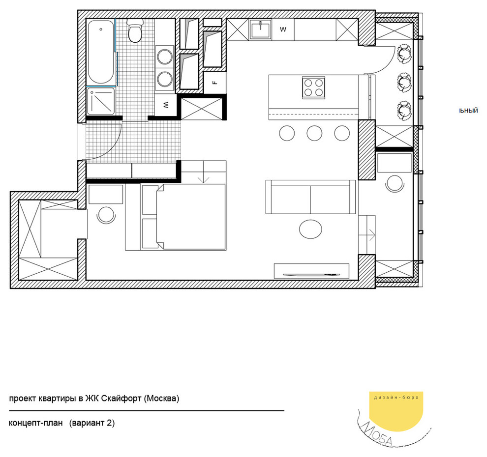
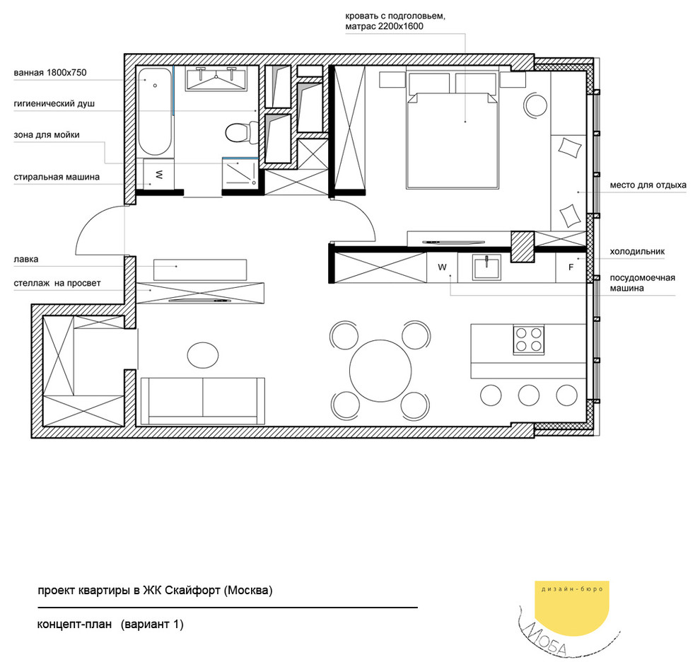
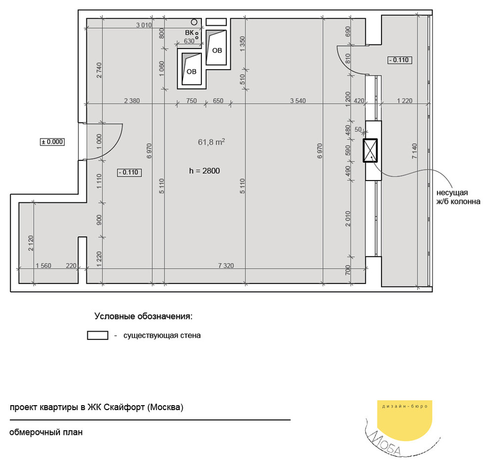
Проект квартиры для молодой семьи в минималистичном стиле (пожелание Заказчика). Мы старались, чтобы в этой небольшой квартире (60 метров) было ощущение пространства. Фактически эта квартира является студией и отделена лишь спальня, поскольку в семье есть грудной ребенок. Кухня, столовая и гостиная являются одним пространством. В квартире отсутсвуют двери, их роль играют тарнсформируемые перегородки. Это позволяет зонировать помещение в случае необходимости или объединять его быстро и легко. . Для данного проекта было сделано 3 варианта планировки, один из которых был в последствии утвержден для полного проекта
9 фотографий









