Офис компании OMI в Москве
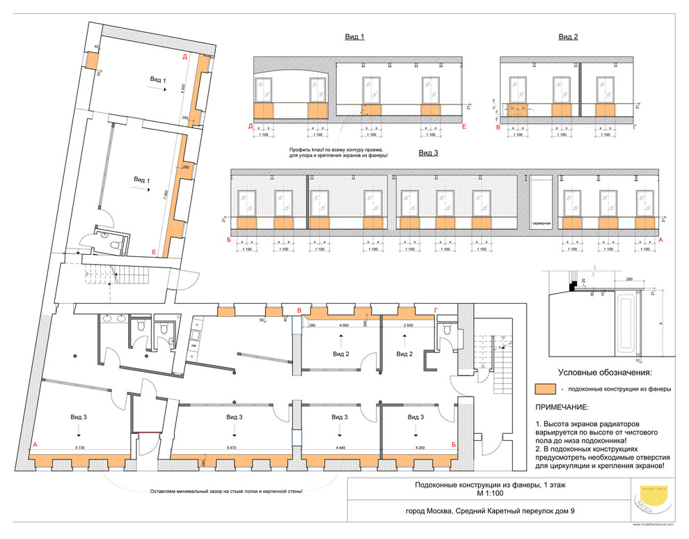
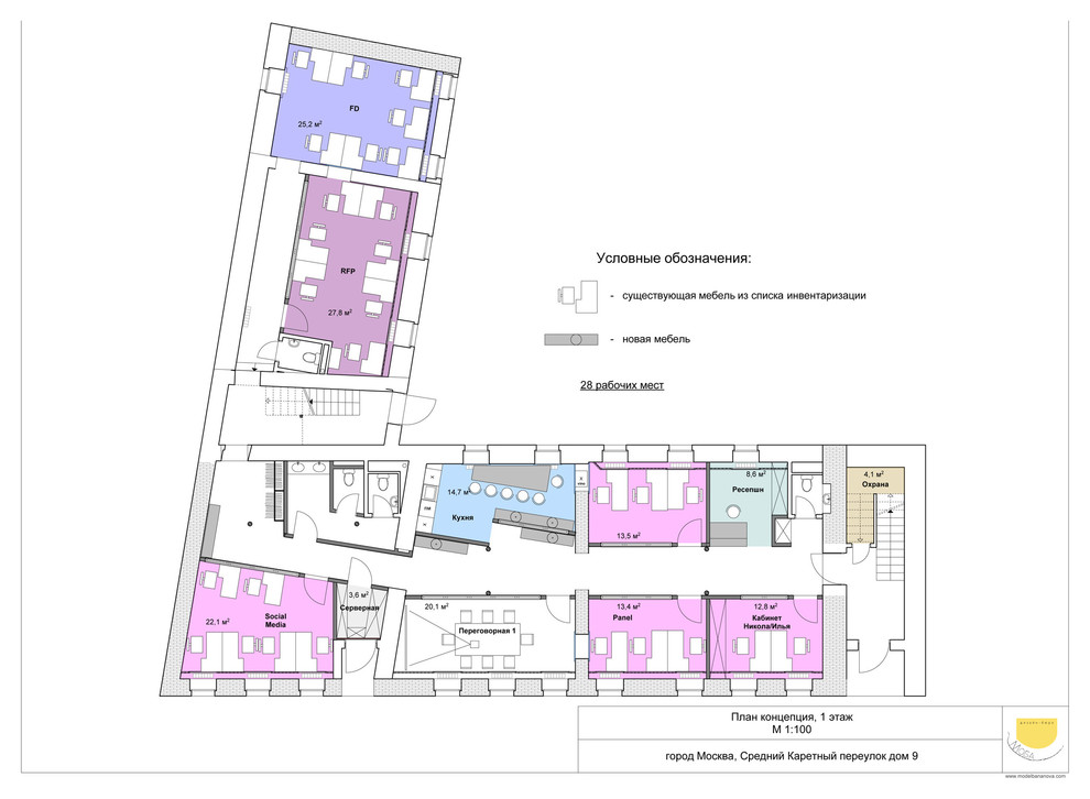
Офисное пространство, которое полностью занимает двухэтажное здание в Среднем Катерном переулке в Москве. . Заказчику было интересно помещение с историей, скорее напоминающее дом, чем стандартный офис. Выбор на данное здание пал в виду его удобного места расположения, так же оно идеально подходило по площади. . Однако в процессе работы мы столкнулись с определенными сложностями – первый этаж и коммуникации были в плачевном состоянии (были сильно руинированы полы, стены, отсутствовали вентиляция и электрика). От нас требовалось максимально быстро создать проект и приступить к строительным работам. При этом сохранив дух лофта, избегая стандартных решений, применяемых в офисах. . Помимо эстетических нужно было решить и практические задачи – восстановить полы и стены, возвести перегородки, обеспечить сотрудников всем необходимым на рабочем месте (ведь на каждого сотрудника необходимо по 4 розетки и 2 интернет-розетки), решить вопрос с отсутствующими в здании коммуникациями. Помимо этого были некоторые ограничения в реализации наших идей (использовать некоторые материалы, закупленные до реализации, такие как ламинат, а так же существующую офисную мебель в рабочих помещениях). . Мы остановили свой выбор на легких перегородках с оконными конструкциями, которые монтируются в них на финальном этапе реализации. Кроме этого важными элементами проекта стали подоконные конструкции из фанеры, которые так же несут и практическую функцию – в них заложена электрика, что позволило нам обойтись без штробления стен или коробов. Это позволило существенно ускорить процесс, разделив работы между тремя основными подрядчиками (строительные работы, производители оконных конструкций, деревянщики). .
26 фотографий


























