Квартира "в Филях"
model_bananova

model_bananova

Архитекторы

5

·

10 отзывов

Квартира "в Филях"

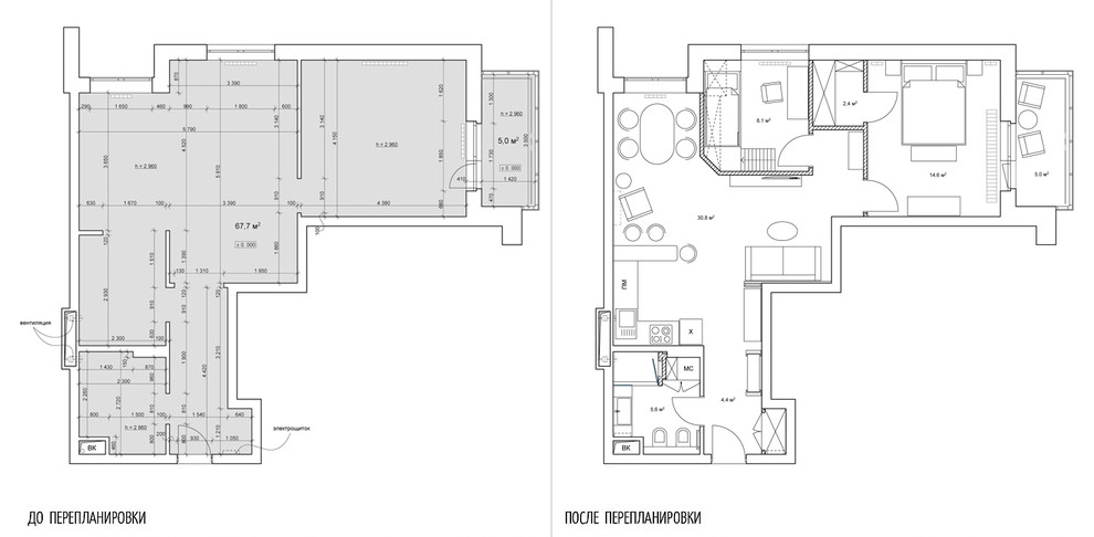
Квартира для молодой семьи тяготеет к классическому стилю (широкие карнизы и плинтуса, двери и кухня с филенками). Однако не лишена элементов в стиле модерн, что проявляется и в цветовых решениях. Кроме того, мы оставили часть стен бетонными. Чтобы осветить квартиру более равномерно, проектом предусмотрено большое количество фрамуг, это обеспечивает лучшую инсоляцию жилых помещений. . Проект находится в стадии реализации.

Другие фотографии в проекте

Вопросы к фото 0

Задайте вопрос

Вам ответят эксперты. Пришлем уведомление, когда вам ответят