
Кто вам нужен: архитектор, дизайнер или декоратор
Houzz Россия
2

23 апр. 2020
Обновлено 2 июня 2020
журналист, редактор







5 л.
5 л.

Кто вам нужен: архитектор, дизайнер или декоратор
Houzz Россия
2

Must have для интерьера: 6 решений, которые сделают жизнь удобнее
Евгения Матвеенко
13

Вопрос: Как сделать квартиру безопасной для пожилых
Евгения Матвеенко
7

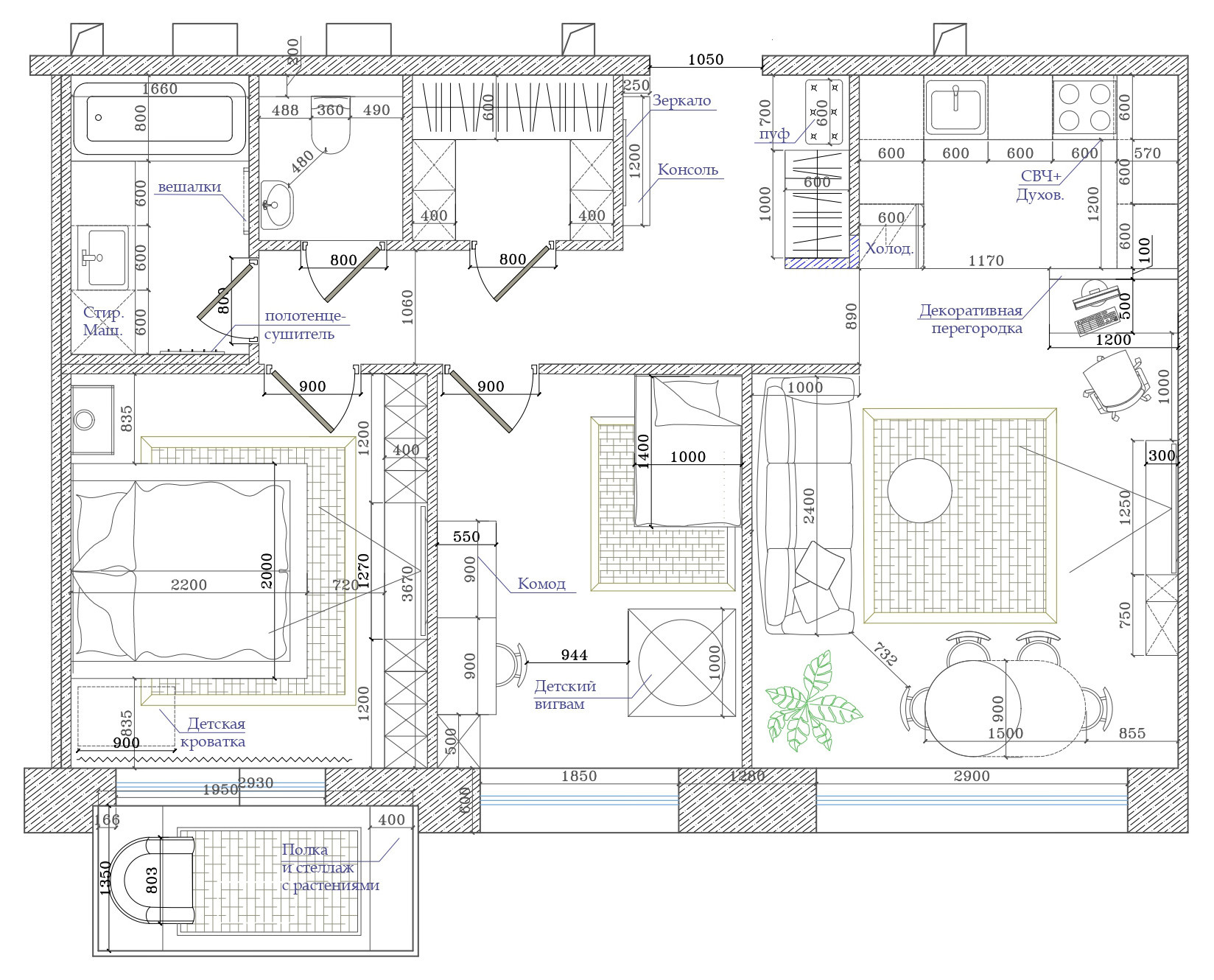
Поиск планировки: Квартира в форме четвертинки пиццы — 3 плана
Саша Зайцева
19
![Обложка статьи: Объясняет юрист: 9 [почти] невозможных для квартиры «хотелок»](https://static.flatica.ru/simgs/pictures/bathrooms/platinum-house-master-bathroom-coates-design-architects-seattle-img~d77118920d4b2a1c_16-5204/home-design.jpg)
Объясняет юрист: 9 [почти] невозможных для квартиры «хотелок»
Екатерина Кулиничева
13

Морально устарели: перепланировки 10 лет назад и сейчас
Наталья Старосельская
41

Мал да удал: Как выжать максимум из маленькой квартиры
Татьяна Артемьева
21

Вопрос: Как расставить диван и кресла
Татьяна Артемьева
22

Вопрос: Как подготовиться к встрече с дизайнером
Екатерина Кулиничева
49

Как правильно: Выбираем квартиру с оглядкой на архитектуру
Дарья Харитонова
21

Переделки в коммунальной квартире: Что можно, а что нельзя
Филипп Урбан
21

Дизайн по компасу: Как проектировать интерьеры по солнцу
Ксения Розанцева
50

Тонко и изящно: 10 признаков, что над интерьером работал дизайнер
Наталья Крикова
71

Есть задача: Кухня с газом и перегородкой (в гостиную)
Houzz Россия
8

Соседи по дизайну: Квартиры одной планировки на разных этажах
Houzz Россия
5

Феномен: Доходные дома и их интерьеры
Надежда Кузина
14

Лучшее за неделю: Лежанки у окна
Houzz Россия
14

Почему из «двушки» не всегда можно сделать «трешку»
Эльвира Станкевич
22
katerina_pogosova
5 л.