logo

Поиск планировки: 14 вариантов (мы серьезно) + финал для 99 кв.м

И в просторную квартиру некоторые желания «не помещаются». Приходится ломать голову над планировкой

Саша Зайцева
Саша Зайцева

28 янв. 2021

Обновлено 18 февр. 2021

журналист, редактор

Клиенту в целом понравился уже первый вариант планировки, но «хотелось бы увидеть другие решения». Кто бы мог подумать, что потребуется полтора десятка вариантов, чтобы прийти к финальной планировке, а больше всего вопросов возникнет из-за того, что… глава семьи очень любит долго постоять под душем.

Смотрим планировки с комментариями дизайнера.
Поиск планировки: 14 вариантов (мы серьезно) + финал для 99 кв.мDaria Shatilova
ПРОЕКТ
Что: квартира для семьи из четырех человек
Размер: 99 кв.м
Где: Москва
Автор проекта: Дарья Шатилова, студия inter-decore.com
Год: 2020
Дано: квартира свободной планировки в торцевой части дома; шесть больших окон (от пола), четыре несущих колонны, два сантехнических вывода (один в центре квартиры, ближе к окнам, другой — у входа).

Задача дизайнеру:
распланировать удобную квартиру для семьи с двумя детьми (мальчику десять лет, девочке — пять). Заказчики просили отдельные комнаты детям, родительскую спальню, два санузла, кухню-гостиную, столовую зону, гардеробную и постирочную.
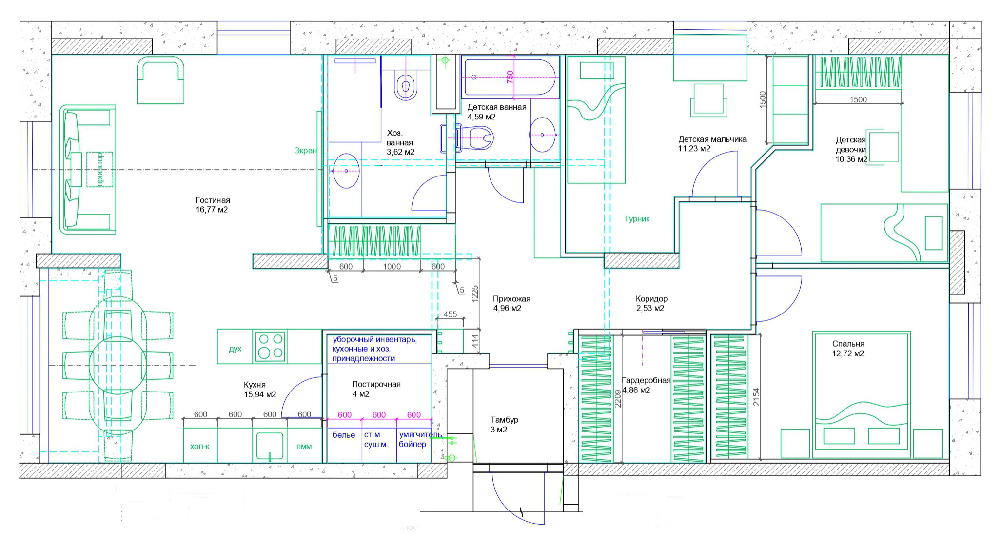
ПЛАНИРОВКА #1
С отдельной игровой комнатой и тремя санузлами.

Что предложила дизайнер
Квартира делится на два крыла: левое — родительское и гостевое, правое — для детей. В детском крыле есть свой санузел и удобная общая игровая (здесь же можно принимать гостей).
Кухня: выстроена в две линии, через нее можно пройти в гостиную зону и родительскую спальню. Благодаря наличию отдельного тамбура не возникает ощущения, что зона готовки находится в коридоре.
Столовая-гостиная: на 17,5 кв.м. Большая обеденная зона вынесена к лоджии, а диван с проектором — ближе к кухонной части.
Мастер-спальня: находится в глубине квартиры, захватывает аж два окна и по площади равна гостиной-столовой. Здесь же расположены компактная линейная гардеробная и вход в хозяйский санузел с душем.
Детская половина квартиры: здесь есть общая игровая на 12,2 кв.м (со спортивным уголком), из которой можно попасть в приватные детские и ванную комнату.
Бытовая часть: постирочная прячется за кухней, вход в нее — из гостиной; гардеробная на 5 кв.м расположена справа от входа в квартиру; напротив входа предусмотрен небольшой гостевой санузел.
Поиск планировки: 14 вариантов (мы серьезно) + финал для 99 кв.мDaria Shatilova
Почему попросили доработать планировку #1
В целом, планировка показалась заказчикам интересной. Хозяевам понравилось:
  • в квартире поместилось все что нужно — в том числе гостевой туалет, постирочная, игровая и отдельная гардеробная;
  • в гостевом туалете есть длинная встроенная полка под раковиной;
  • встроенный шкаф в детской девочки;
  • вход в хозяйскую ванную из спальни;
  • спальня большая и удобная.
Заказчики попросили показать вариативность, и дизайнер разработала еще три плана: 1-А, 1-Б и 1-В. Для удобства восприятия мы выделили красным моменты, которые Дарья Шатилова предложила поменять.
ПЛАНИРОВКА #1

Что изменили: вместо гардеробной за раздвижными дверями — обычные шкафы. Проход в хозяйский санузел сделан посередине, а системы хранения его обрамляют.
ПЛАНИРОВКА #1

Что изменили: расположение кровати в мастер-спальне.
ПЛАНИРОВКА #1

Что изменили: в предыдущих вариантах вход в квартиру был «на шкаф», а чтобы попасть в детскую ванную, нужно было пройти через игровую. Здесь дизайнер предложила разместить коридорный шкаф напротив гостевого туалета, а рядом сделать вход в детскую ванную.
Поиск планировки: 14 вариантов (мы серьезно) + финал для 99 кв.мDaria Shatilova
Почему отказались от первых четырех планировок
  • Из-за проходной узкой кухни совсем рядом с коридором.
  • Гостиная показалась тесноватой — попросили сделать максимально просторной.
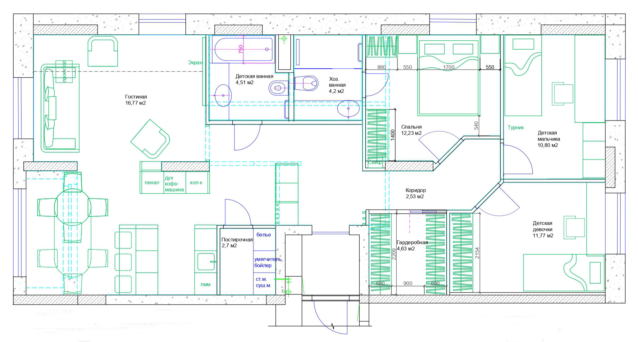
ПЛАНИРОВКА #2
C ночной и дневной зонами.

Что предложила дизайнер
Разделить квартиру на две части: зону спален («ночную» или приватную) и общую, дневную зону (очень просторную, с тремя окнами в левой части квартиры).
Все три спальни расположить рядом и сделать их почти одинаковыми по размеру (порядка 1012 кв.м); входы в них отдельные, из коридора.
Санузлов сделать два: с душевой и ванной, со входами из коридора, поэтому воспользоваться санузлом может любой член семьи, не проходя через приватную часть.
Столовую: оставить на прежнем месте, но совместить ее с кухней. Причем в зоне кухни сделать потайную дверь в кладовую-прачечную (удобно организовать кухонное хранение).
Гостиную: расположить на месте мастер-спальни из варианта #1.
ПЛАНИРОВКА #2-А

Что изменили: вход в прачечную сделали из коридора, а не из зоны кухни.

Что понравилось заказчикам: большая гостиная, удобная зона кухни-столовой. В кладовой-постирочной есть шкафы для кухонных и хозяйственных принадлежностей. Встроенный шкаф в спальне почти незаметен.

«Чтобы коридор не читался как длинный туннель с кучей дверей, мы предполагали в этом решении зрительно разделить декоративными рейками зону прихожей и коридора», — рассказывает дизайнер.
Поиск планировки: 14 вариантов (мы серьезно) + финал для 99 кв.мDaria Shatilova
Почему отказались от планировок #2 и #2-А
  • Маленькая мастер-спальня (нет места ни для чего, кроме кровати и шкафа).
  • Ломаная конфигурация детских.
  • Маленькая детская ванная, она же — с/у для гостей.
  • Хозяйская ванная расположена отдельно от спальни.
ПЛАНИРОВКА #3
С увеличенной мастер-спальней.

Что предложила дизайнер
Мастер-спальня: из варианта #2 переезжает на место комнаты сына, благодаря этому получается сделать приватный санузел для родителей.
Конфигурация детских: выправляется, а большой санузел становится ванной для детей.
Кухня-столовая-гостиная и вспомогательные помещения: остаются из варианта #2.
Поиск планировки: 14 вариантов (мы серьезно) + финал для 99 кв.мDaria Shatilova
Почему отказались от планировки #3
  • Комната сына получалась узкой и длинной, и для турника было слишком мало места (прячется за дверью).
  • Не понравилась ломаная конфигурация мастер-спальни.
ПЛАНИРОВКА #4
С большой комнатой для сына.

Что предложила дизайнер
Вернуться к планировке #2, но переработать ее.
  1. Сделать комнату дочери правильной формы.
  2. Комнату сына увеличить за счет коридора и организовать отдельный спортивный уголок.
  3. Мастер-спальню сделать больше, а чтобы коридор не был перегружен дверями, вход в гардеробную организовать через родительскую спальню.
Поиск планировки: 14 вариантов (мы серьезно) + финал для 99 кв.мDaria Shatilova
Почему отказались от планировки #4
  • Системно не понравилась сама планировка: квартире не хватало легкости — прежде всего, из-за коридора.
  • Сценарии движения сковывали, получалось, что перемещаться по квартире нужно, постоянно проходя «по лабиринту».
  • Еще один значимый минус — вход в гардеробную от родителей (детям будет неудобно пользоваться этой системой хранения).
«В итоге, несмотря на то что мы сделали четыре варианта довольно близких решений и уже занимались “оттачиванием деталей”, нам пришлось думать о более серьезных переменах», — говорит Дарья Шатилова, автор проекта.
ПЛАНИРОВКА #5
C открытой зоной кухни-гостиной и одинаковыми санузлами.

Что предложила дизайнер
Открыть зону кухни-гостиной и впустить тем самым воздух и свет в коридор.
Кухню расположить в две линии, но проход через нее сделать прямым (не нужно будет ничего обходить).
В столовой поставить раздвижной стол ближе к несущей колонне.
Приватные спальни сделать примерного равного размера.
Уравнять и площадь санузлов: входы сделать из коридора, чтобы при необходимости санузлами могли воспользоваться и члены семьи, и гости.
Поиск планировки: 14 вариантов (мы серьезно) + финал для 99 кв.мDaria Shatilova
Почему отказались от планировки #5
  • При спальне родителей нет собственного санузла.
«Санузлы стали камнем преткновения в этом проекте. Хозяин квартиры очень любит долго постоять под душем, поэтому он хотел отдельный приватный санузел при спальне. Хозяйка же предпочитает принимать ванну. Еще она переживала, что детский санузел берет на себя роль гостевого — это не очень удобно. В первом варианте у нас получилось разместить три санузла, но это делало квартиру похожей на лабиринт», — поясняет дизайнер.
ПЛАНИРОВКА #6
C открытой гостиной и мастер-спальней.

Что предложила дизайнер
Сделать родителям отдельный санузел с душем (проход через зону хранения). Кровать при этом поставить изголовьем к окну.

Следом предложила еще три варианта планировочного решения (красным обозначены изменения). На основе этого пакета уже были найдены финальные варианты.
ПЛАНИРОВКА #6-А

Что изменили: расположение кровати в мастер-спальне.
ПЛАНИРОВКА #6-Б

Что изменили: конфигурацию шкафа при входе (открыли коридор).
ПЛАНИРОВКА #6-В

Что изменили: конфигурацию прачечной, коридорного шкафа и кухонной зоны. Коридор стал меньше и уже, но зато хозблок стал более функциональным.
Поиск планировки: 14 вариантов (мы серьезно) + финал для 99 кв.мDaria Shatilova
Почему отказались от планировок #6, #6-А, #6-Б и #6В
  • Заказчикам не понравился проход в хозяйский санузел через шкафы.
ПЛАНИРОВКА #7
С дополнительной нишей под шкаф в мастер-спальне.

Что предложила дизайнер
За основу взяли планировки шестого этапа согласования, но внесли изменения.
Хозблок (кухня + прачечная + хранение в коридоре) компактный, чтобы не перегружать пространство.
В мастер-спальне добавить нишу под шкаф, а вход в комнату перенести ближе к перегородке санузла.
Поиск планировки: 14 вариантов (мы серьезно) + финал для 99 кв.мDaria Shatilova
Почему отказались от планировки #7
  • Поняли, что не все «хотелки» вмещаются, чем-то придется пожертвовать.
  • Решили точно отказаться от санузла при спальне: при всех рассмотренных конфигурациях получалось, что спальня слишком маленькая, придется буквально упираться взглядом в дверь туалета.
  • Попросили увеличить хозблок, по возможности не перегружая пространства коридора.
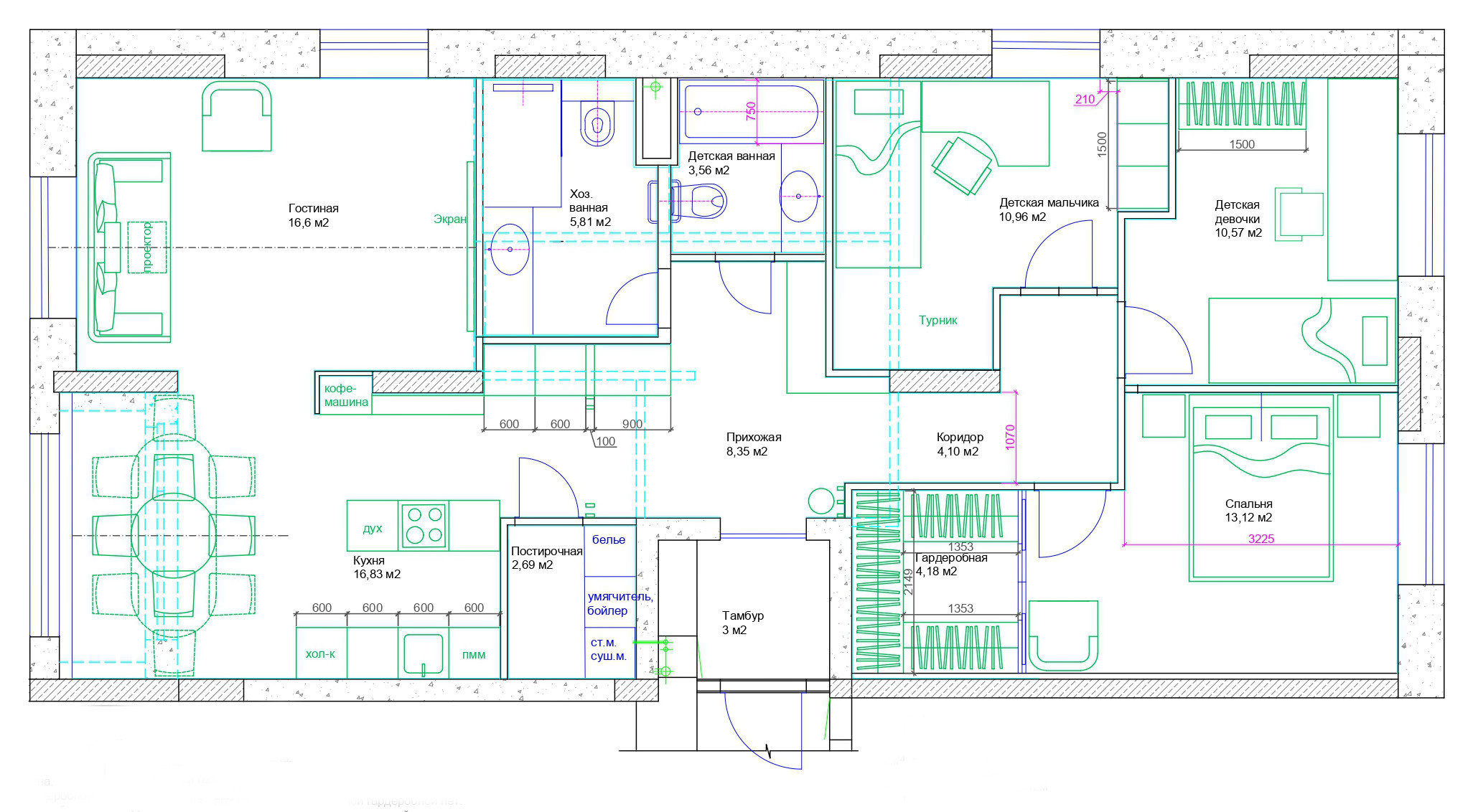
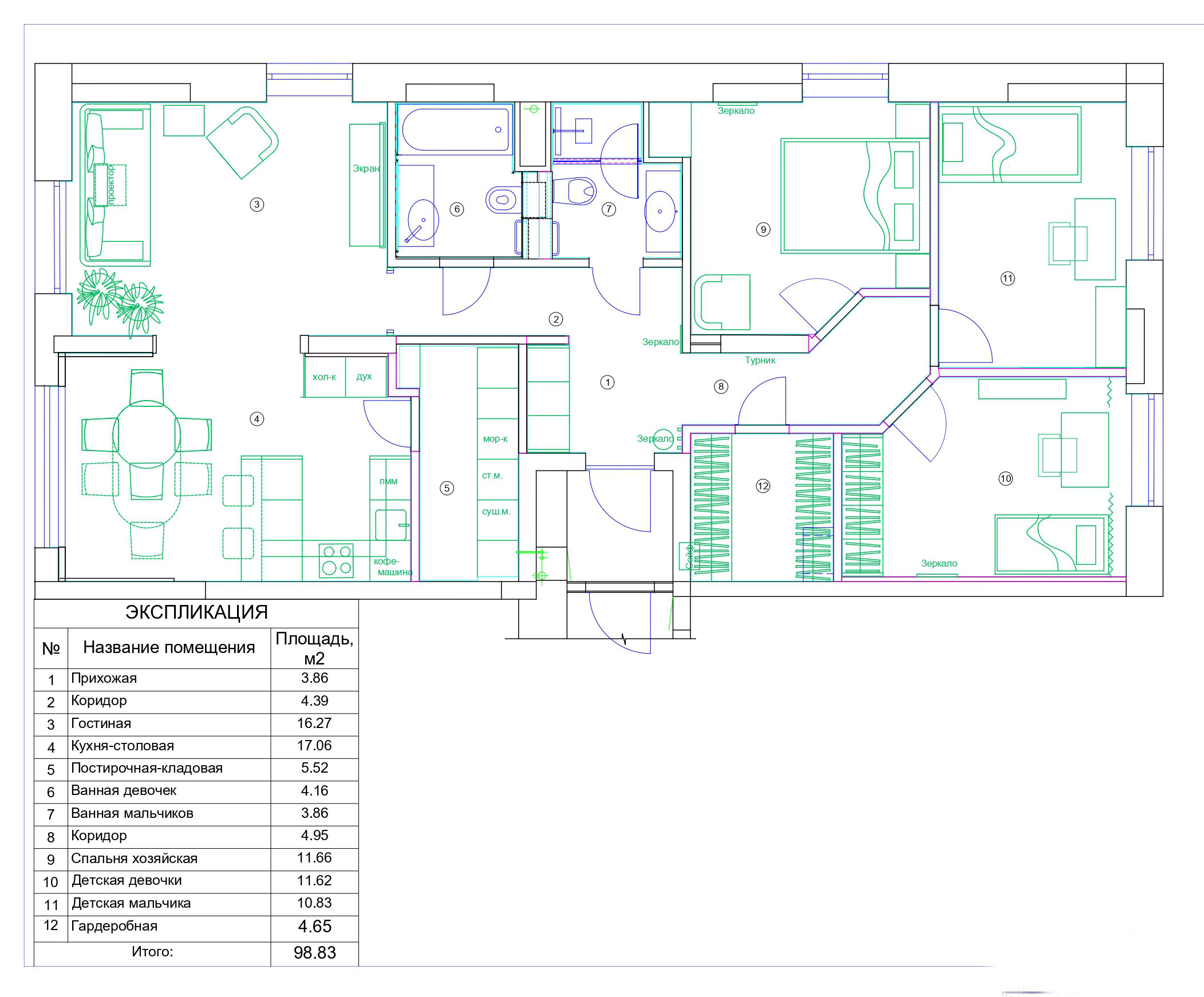
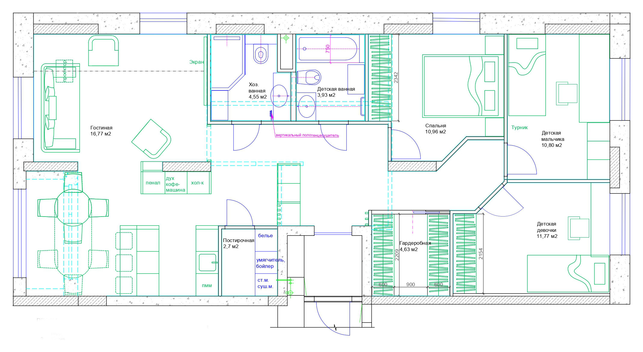
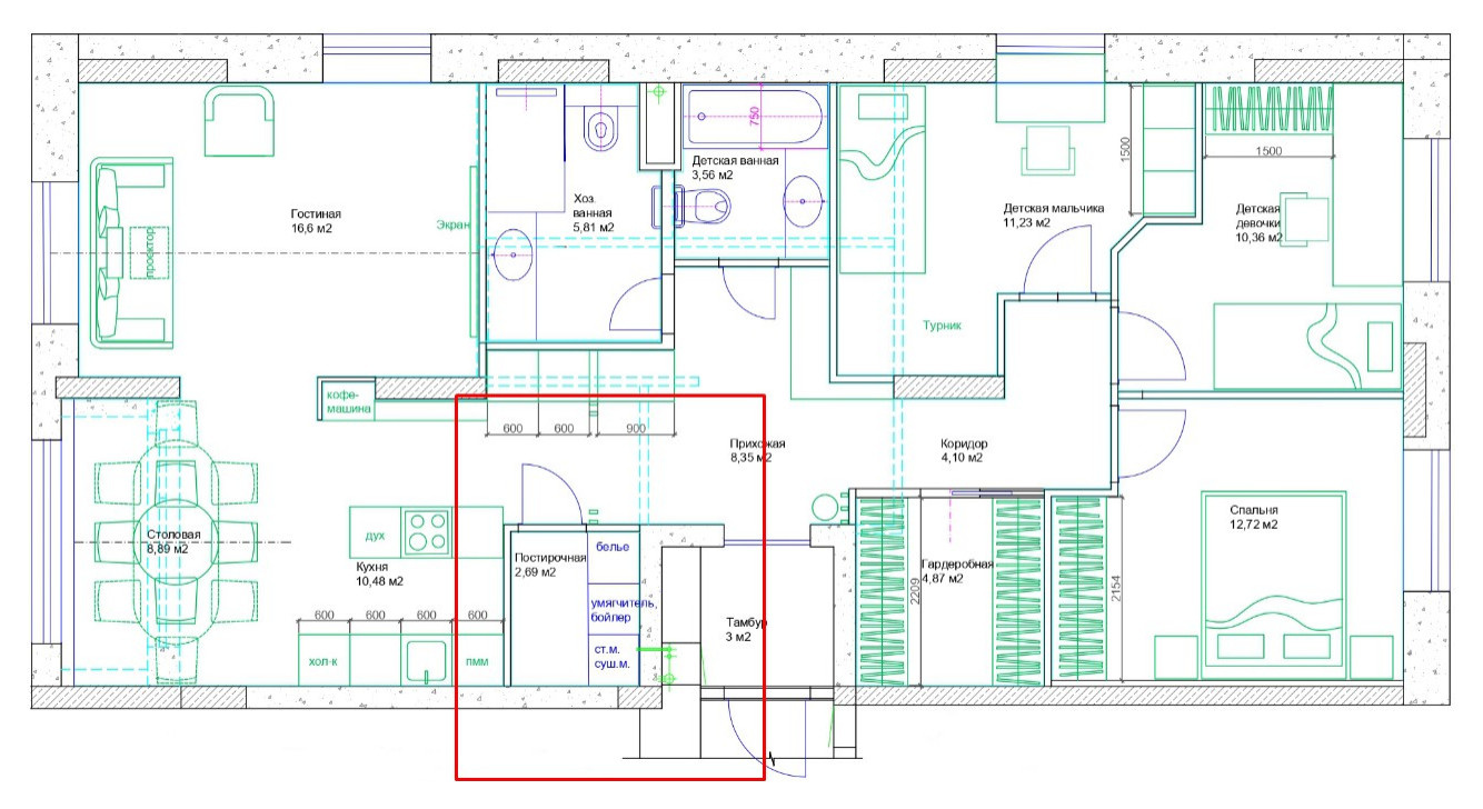
ПЛАНИРОВКА #8, ФИНАЛЬНАЯ
(15-я по счету, если учитывать все варианты).
Поиск планировки: 14 вариантов (мы серьезно) + финал для 99 кв.мDaria Shatilova
КУХНЯ-СТОЛОВАЯ
Помещается в отдельном объеме слева от входа в квартиру. Попасть в нее можно через гостиную. Такая выделенность позволила сделать удобную зону готовки, встроить технику в колонну, вольготно расположить и барный, и обеденный круглый (он раздвигается) столы.

ХОЗБЛОК
Прачечная + зона хранения домашнего инвентаря, дополнительных кухонных принадлежностей, консервации и т.п. Размер 5,52 кв.м, вход — «потайной», из зоны готовки. Таким образом, эта хозяйственная часть квартиры практически незаметна.
Поиск планировки: 14 вариантов (мы серьезно) + финал для 99 кв.мDaria Shatilova
ГОСТИНАЯ
С двумя окнами, причем открытая кухня-столовая добавляет света и пространства — входя в общую дневную зону, сразу видишь, какая она просторная, легкая и светлая. Естественные, но яркие тона + паркетный пол, светлые стены и большие окна «в пол» усиливают ощущение воздушности — общая зона становится похожа по настроению на летний сад.

Кстати, от телевизора решили вовсе отказаться, чтобы не портить черным экраном атмосферу комнаты. Зато установили проектор — он транслирует изображение просто на стену.
Поиск планировки: 14 вариантов (мы серьезно) + финал для 99 кв.мDaria Shatilova
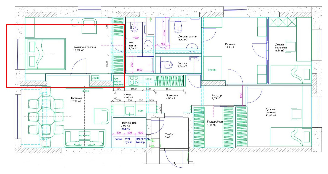
СПАЛЬНЯ РОДИТЕЛЕЙ
Оформлена в светлых тонах, чтобы максимально разгрузить пространство. Вход спланирован так, чтобы лежа на кровати, не упираться взглядом в дверь. Слева от окна повесили зеркало, а рядом сделали очень компактную зону хранения (дверь в нее установлена скрытым способом и сливается со стенами). Хозяева в итоге решили поступиться объемами шкафов в своей комнате ради свободного пространства.
Поиск планировки: 14 вариантов (мы серьезно) + финал для 99 кв.мDaria Shatilova
ДЕТСКАЯ ДЕВОЧКИ
Просторная, с кроватью, стилизованной под домик и акцентными обоями с птицами.

«Здесь мы пошли на хитрость. Пока девочка маленькая, ей хочется много розового. Но он весь только в акцентах и в легко сменяемых вещах (постельное белье, учебный стул, цветок…) Если убрать все розовые любимые ею сейчас игрушки, останутся нейтральные почти белые стены и яркая стена с райскими птицами. То есть лет через 57 комнату можно будет очень быстро передекорировать под новые интересы подросшего ребенка», — отмечает Дарья Шатилова.
Поиск планировки: 14 вариантов (мы серьезно) + финал для 99 кв.мDaria Shatilova
ДЕТСКАЯ МАЛЬЧИКА
Сыну хозяев 10 лет, он быстро взрослеет, много читает, занимается шахматами. Его комнату оформили в «тропическом» стиле, украсив панно с тропическими растениями (оно перекликается с акцентной стеной в комнате дочери). Над кроватью мальчика — деревянные рейки, а базовый цвет стен — нежно-зеленый.
Поиск планировки: 14 вариантов (мы серьезно) + финал для 99 кв.мDaria Shatilova
ВАННАЯ «МАЛЬЧИКОВ»
14 вариантов планировок и долгие споры насчет санузлов привели семью к необычному решению: не делать хозяйскую ванную и гостевой санузел.

Деление получилось другим: на ванную «девочек» (для мамы и дочки) и ванную «мальчиков» — для папы и сына.

«Ключевым моментом оказалась любовь папы долго стоять под душем, чтобы никто не мешал… А мама и дочь хотели иметь возможность принимать спокойно ванну. Самым неприхотливым оказался сын хозяев», — отмечает автор проекта.
ВАННАЯ «ДЕВОЧЕК»
Сложного розового оттенка, благодаря матовости покрытия смотрится очень сдержанно.

ОСТАЛИСЬ ВОПРОСЫ ПО ПРОЕКТУ?
Задайте их напрямую автору Дарье Шатиловой
_________________________

ВАША ОЧЕРЕДЬ…
Среди наших читателей много практикующих дизайнеров. Если вы готовы показать поиск планировки на примере своего проекта, пишите в редакцию на editorial@flatica.ru

Комментарии 19

Отчего же?
2 санузла на 1 стояке? применения все равно не будет, одновременно использовать их для экономии времени не получится
На кухне будет слышно как все принимают ванну и справляют естественную нужду. Не очень приятные звуки.

Оставьте комментарий

Читать похожие статьи