logo

Как правильно: Квартира 60 кв.м — планировка и дизайн

Семь российских квартир — только реальные проекты и фото

Houzz Россия
Houzz Россия

21 дек. 2017

Обновлено 27 февр. 2020

60 квадратных метров — удивительная площадь. Такого метража бывает и однокомнатная квартира-студия, и двухкомнатная, и трехкомнатная квартиры. И «сталинка», и хрущевка, и лофт. Даже типовых планировок на 60 кв.м встречается больше десятка, не говоря уж о вариантах перепланировок. Но какой бы ни была квартира на этой площади, хозяев, задумавших ремонт, волнуют похожие вопросы. Ищем ответы в проектах российских дизайнеров.

Напоминаем: чтобы задать дизайнеру уточняющий вопрос или заказать свой проект — кликните на понравившееся фото, перейдите в портфолио автора проекта
1. Уютная тишина в московской «сталинке»
Место: Москва, Университетский проспект
Автор проекта: дизайнер Анна Мохова

Сталинский дом на Университетском проспекте, 5 в Москве — здание с историей. Это немного упрощенная копия знаменитого дома преподавателей МГУ на Ломоносовском, 14. На момент постройки — в 1957 году — проект считался архитектурным эталоном. Просторные квартиры в этих домах и сегодня пользуются большой популярностью.
Двухкомнатная квартира 60 кв.м, планировка после реконструкции
Дизайн двухкомнатной квартиры 60 кв.м на фото — своего рода мост от прошлого к будущему: уютная тишина без лишнего декора, основательность в деталях и простые линии.

Задача дизайнеру
У новых хозяев квартиры, молодой пары, было несколько пожеланий к планировке: более приватный доступ в спальню, более просторный санузел, общая зона кухни и столовой. Кроме того, нужно было организовать несколько зон для хранения вещей.

———————————————
В ВАШЕМ ГОРОДЕ…
Через Houzz можно нанять архитектора или дизайнера в любом городе и стране. Введите индекс, чтобы подобрать специалиста в своем городе
———————————————
Что сделали
Ванную объединили с туалетом, а кухню немного расширили за счет санузла. Так вход в зону гостиной и столовой оказался из кухни. Кухня и гостиная остались раздельными, но если откатить сдвижную дверь, эти помещения образуют единое пространство.

Дверной проем в спальню перенесли из прихожей ближе к кухне. Это позволило не только решить проблему с приватностью, но и выделить место для вместительной гардеробной.

Для верхней одежды и сезонных вещи сделали встроенные шкафы в холле. Причем один из них вписали в старый дверной проем спальни и закрыли зеркальными фасадами.
Лайфхаки
  • В ванной над системой инсталляции для подвесного унитаза повесили зеркало с секретом — за ним спрятан шкаф с полками для хранения.
  • Столешницу на кухне объединили с подоконником, чтобы получить рабочую зону с естественным светом.

О ПРОЕКТЕ…
В гостях: Квартира для преподавателей с яркими арт-объектами
——————————————
2. Мужской интерьер с почтением к месту
Место: Москва, ул. Гончарная
Автор проекта: архитектор Глеб Полонский, бюро Face-Home

Задача дизайнеру
Эту квартиру в сталинском доме хозяин Алексей купил, чтобы останавливаться во время рабочих визитов в столицу. От проекта требовались комфорт, домашняя обстановка и современная стилистика.
Что сделали
Первым делом избавились от коридора, увеличив жилую площадь на 6 кв.м. Вход в ванную комнату сделали из спальни, санузел рядом с прихожей превратили в гостевой. Изолированные ранее комнаты стали смежными — для одного человека это не проблема. Между гостиной и спальней установили раздвижную перегородку.

Изначально при кухне была хозяйственная комната — особенность планировки. Ее убрали, увеличив кухню почти на 4 кв.м. Поместились и гарнитур в две линии, и обеденная зона.
Системы хранения сосредоточены в двух местах. Часть площади бывшего коридора заняли два шкафа: один с доступом из прихожей, второй — с доступом из комнаты. Кроме того, в спальне установлен шкаф во всю стену.

Лайфхаки
  • Фасады большого шкафа в спальне внешне повторяют раскладку раздвижной перегородки, так что от смены декораций не появляется ощущение дисгармонии.
  • Один из двух балконов примыкает к спальне. Чтобы не перекрывать к нему доступ, кровать поставили в центре. Изголовье украшает зеркальная панель — благодаря этому света в комнате еще больше.
Как правильно: Квартира 60 кв.м — планировка и дизайнЮрий Гришко
  • Интерьер квартиры 60 кв.м оформлен в сдержанном современном стиле, однако в нем отчетливо слышны исторические ноты. Колористика квартиры перекликается с цветами фасада сталинского дома. Свою роль играют мягкая мебель с легким налетом ретро, паркет «елочкой», карнизы и деревянные рамы. Внешний блок кондиционера спрятан на балконе за фасадной колонной.

О ПРОЕКТЕ…
В гостях: Мужская квартира в доме «с историей» на Таганке———————————————
Как правильно: Квартира 60 кв.м — планировка и дизайнЮлиан Суетин
3. Эклектика в советской «двушке»
Место: Москва
Авторы проекта: Юлиан Суетин, при участии Анны Смирновой, VESNA-LETO

Проект под названием
«Буквы, роботы и лягушки» — жизнерадостное жилище декоратора Юлиана Суетина. Помимо забавных деталей и ярких красок, здесь можно увидеть и несколько функциональных находок.
Как правильно: Квартира 60 кв.м — планировка и дизайнЕлена Игумнова
На фото: дизайн двухкомнатной квартиры 60 кв.м, план после реконструкции

Задача дизайнеру
Двухкомнатная квартира площадью 60 кв.м в кирпичной пятиэтажке имела свои плюсы и минусы. Просторная площадь, удачная планировка, но при этом — тонкие «картонные» перегородки, маленькая ванная. Кроме того, хозяину квартиры требовалась гардеробная и хорошее освещение, чтобы работать дома.
Как правильно: Квартира 60 кв.м — планировка и дизайнЮлиан Суетин
Что сделали
Старые перегородки снесли, а новые, с хорошей звукоизоляцией, возвели в прежних границах, но не везде. Ванную комнату переместили на место бывшей кладовки, таким образом увеличив ее площадь. Освободившееся место заняла гардеробная у входа.

Поскольку дизайнер часто работает дома над чертежами, освещение в гостиной сделано многоплановым: лампы, торшеры, мощная люстра с возможностью регулирования света при помощи диммера.
Для хранения вещей в спальне также поставили угловой шкаф из ИКЕА. Чтобы растворить его в пространстве, конструкцию со всех сторон закрыли зеркалами.
Как правильно: Квартира 60 кв.м — планировка и дизайнЮлиан Суетин
Лайфхаки
  • Чтобы с утра было хорошее настроение, кухню хозяин оформил в сочных зеленых тонах. Стол-барную стойку украшает надпись, желающая приятного аппетита.
  • Несколько нижних шкафов, посудомоечная машина на кухне и батарея в ванной спрятаны за занавесками из плотной тканью с симпатичным принтом. Это дешевле, чем фасады.
  • Дизайнеры нечасто используют входную дверь как элемент декора, а зря. Ярко-красная дверь в прихожей смотрится выразительно на бело-оливковом фоне (см. первое фото).
О ПРОЕКТЕ…
Houzz тур: Квартира с роботами, лягушками и чувством юмора
———————————————
Как правильно: Квартира 60 кв.м — планировка и дизайнРустэм Уразметов
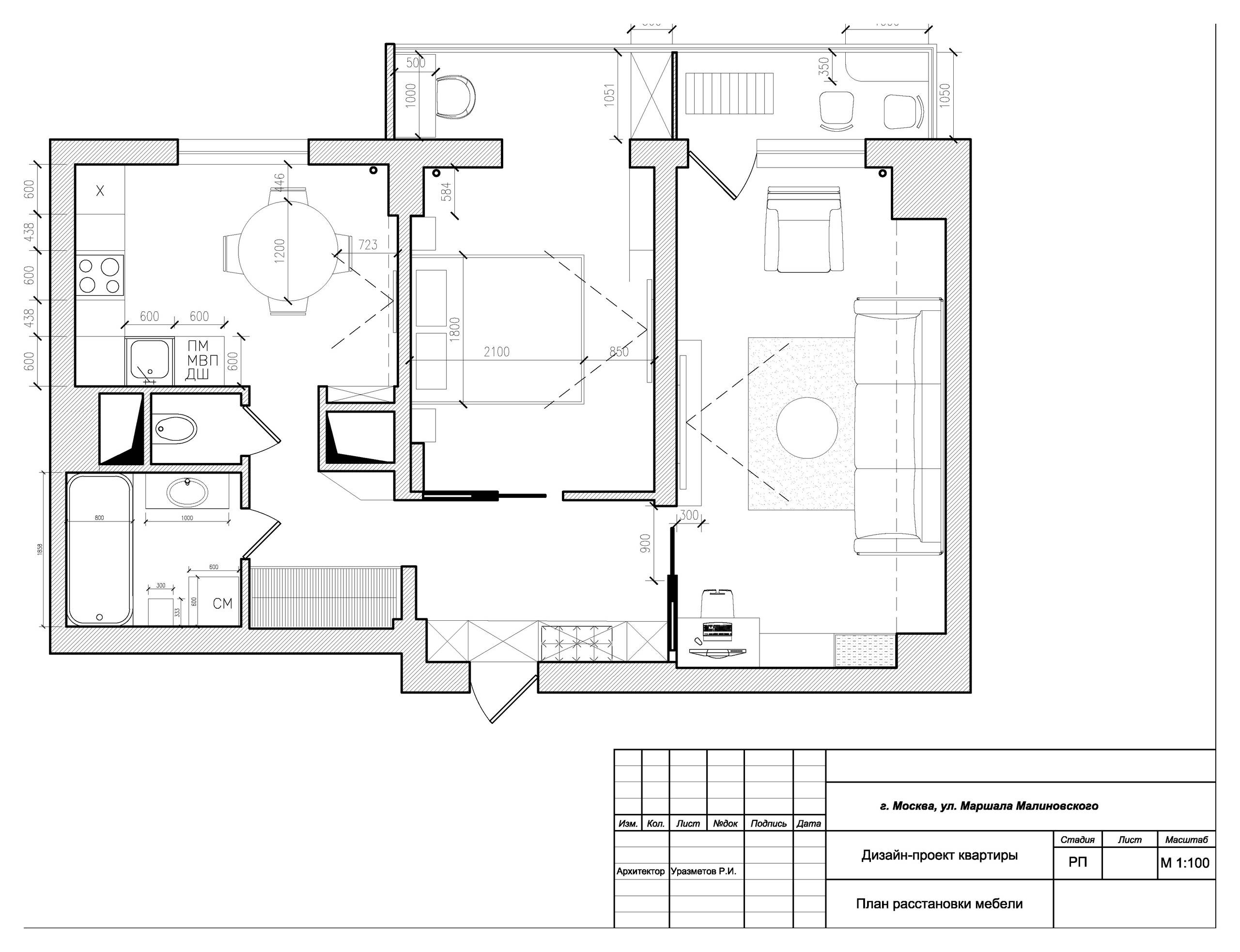
4. Новая жизнь темной квартиры в панельном доме
Место: Москва, Щукино
Автор проекта: Рустэм Уразметов

Дизайн квартиры 60 кв.м в панельном доме редко обходится без существенных перепланировок, но в этом проекте на ул. Маршала Малиновского обошлись без них.
Дизайн квартиры 60 кв.м в панельном доме, план после реконструкции

Задача дизайнеру
Хозяева квартиры — молодая пара, поэтому интерьер изначально планировался в современном минималистичном стиле. Помимо спальни и гостиной требовалось выделить место для кабинета. Еще одна важная задача — сделать квартиру светлой, поскольку солнечного света сюда попадает мало.
Как правильно: Квартира 60 кв.м — планировка и дизайнРустэм Уразметов
Что сделали
Утепленную лоджию присоединили к спальне. На балконе появились встроенный шкаф и туалетный столик.

Большая часть вещей хранится во встроенных шкафах в зоне прихожей. Чтобы сэкономить место, шкаф даже огибает дверной проем сверху. Фасады подобраны в цвет стен и не притягивают внимания.

Чтобы квартира казалась светлее, стены и потолки выкрасили в белый цвет. Кроме того, в каждой комнате есть многоуровневая система освещения, светильники регулируются под разные задачи и время суток. Трансформаторы, блоки питания и прочая электроника спрятана в отдельном шкафу — его можно увидеть в прихожей возле пуфа.
Как правильно: Квартира 60 кв.м — планировка и дизайнРустэм Уразметов
Лайфхаки
  • Конструктивные ниши в межкомнатных перегородках использовали в качестве цветовых акцентов — выкрасили изнутри, как на кухне и в спальне, или оформили глянцевыми 3D-панелями, как в гостиной.
  • Кабинет занимает часть гостиной. В мебельную группу вписан настоящий аквариум. Ради него конструкцию усилили металлическими уголками.
  • Почти все двери в квартире откатные — так эргономичнее и лаконичнее.
О ПРОЕКТЕ…
Houzz тур: Московская квартира с умным светом и яркими акцентами
———————————————
Как правильно: Квартира 60 кв.м — планировка и дизайнОльга Шангина
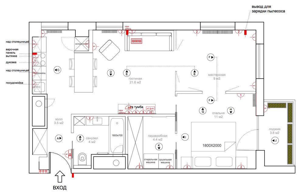
5. Уютная квартира с гардеробной и мастерской
Место: Москва, ЖК «Фили-Град»
Автор проекта: Виктория Мирзоева

Эта квартира изначально сдавалось без внутренних перегородок, поэтому и планировка у нее авторская. Кто-то скажет, что квартира двухкомнатная, а кто-то увидит и все признаки трехкомнатной на 60 «квадратах». Причем планировку придумали сами хозяева — молодая пара, Евгений и Евгения. В интерьере они вдохновлялись скандинавской стилистикой и приемами mid-century modern.
Задача дизайнеру
Светлое и теплое пространство, в котором бы уместились спальня, кухня, гостиная, гардеробная со стиральной и сушильной машинами, а также столярная мастерская для хозяина. Кроме того, хозяйка мечтала о высоких дверных проемах.
Как правильно: Квартира 60 кв.м — планировка и дизайнОльга Шангина
Что сделали
В квартире нет коридоров — помещения перетекают из одного в другое. Вместо глухих стен использованы остекленные двери и перегородки с фрамугами, поэтому тут всегда светло. Кухня и гостиная объединены, получилось светлое воздушное пространство площадью почти 22 кв.м.

Мастерская за стеклянными перегородками имеет два выхода. Она не годится для пыльных и шумных работ, но для финишной отделки мебели — вполне. У хозяина здесь хранятся инструменты, материалы и пылесос. А также бас-гитара для тихих репетиций.

Из спальни сделан вход в гардеробную, играющую также роль постирочной. Велосипеды хранятся на лоджии, примыкающей к спальне.
Как правильно: Квартира 60 кв.м — планировка и дизайнОльга Шангина
Лайфхаки
  • Чтобы металлические перегородки не казались чужеродным элементом в этом царстве дерева, их конструктив поддержали при помощи зеркальных дверей шкафа в прихожей и черных оконных рам.
  • На кухне — гарнитур из ИКЕА, но узнать его нелегко. Многие детали, в том числе и столешницу из сланца, докупили у других производителей.
  • Интерьер этой трехкомнатной (двухкомнатной?) квартиры выглядит очень тепло благодаря дереву. Оно не только в мебели и под ногами, но и частично на потолке.
  • Хозяева не любят шторы и вместо них предпочитают пользоваться деревянными ставнями.
О ПРОЕКТЕ…
В гостях: Квартира со столярной мастерской — в Филях
———————————————
Как правильно: Квартира 60 кв.м — планировка и дизайнВалерия Стенникова
6. Трехкомнатная квартира с оригинальными решениями
Место: Челябинск
Автор проекта: Валерия Стенникова, студия Insomnia

В этой квартире живет молодой бизнесмен. О ритме его жизни говорит уже тот факт, что за все время ремонта они ни разу не был на объекте.
Как правильно: Квартира 60 кв.м — планировка и дизайнВалерия Стенникова
Задача дизайнеру
Хозяин попросил по максимуму сохранить изначальную планировку трехкомнатной квартиры площадью 60 кв.м, придерживаться прямых линий, найти место для винного шкафа и сделать ванную в монохромной гамме.
Как правильно: Квартира 60 кв.м — планировка и дизайнВалерия Стенникова
Что сделали
У исходной планировки квартиры были свои плюсы и минусы. Плюс — из холла можно попасть во все комнаты, гардеробную и ванную. Минус — одна из комнат получалась сложной формы, там решили разместить объединенную кухню-гостиную. Две прямоугольных комнаты заняли спальни — хозяйская и гостевая.

Чтобы выстроить сбалансированный интерьер кухни-гостиной, пришлось пойти на уловки. Так, несущая колонна превратилась в большой светильник (см. фото выше) — ее облицевали стеклянными панелями с LED-подсветкой. Такие же панели встроили по краям кухонного гарнитура. Диван для гостиной делали под заказ — его пришлось ставить по центру помещения. Обеденный стол разместили у окна.
Как правильно: Квартира 60 кв.м — планировка и дизайнВалерия Стенникова
Лайфхаки
  • Простенок между стеной и дверью спальни оказался слишком узким для стандартного шкафа, а больше встроить его было некуда. Тогда дизайнеры спроектировали шкаф разной глубины: в центре он увеличивается как перевернутый пьедестал с 40 до 60 см.
  • Чтобы создать эффект непрерывности, черные глянцевые фасады верхних шкафов на кухне дополнили фартуком из темного закаленного стекла и столешницей из искусственного камня.
  • Все двери в квартире сделаны из матового стекла со вставками из шпона. Они пропускают свет и красиво выглядят (см. фото выше).
  • Во всех помещениях есть повторяющиеся материалы — например, паркет «елочкой» или керамогранит на полу и в обрамлении дверных проемов. Этот прием также объединяет дизайн трехкомнатной квартиры на всех 60 кв.м.
О ПРОЕКТЕ…
Houzz тур: Квартира для бизнесмена в Челябинске
———————————————
Как правильно: Квартира 60 кв.м — планировка и дизайнВалентина Савескул
7. История и эргономика в хрущевке
Место: Волоколамский проезд, Москва
Автор проекта: дизайнер-декоратор Валентина Савескул

Дизайн этой трехкомнатной квартиры в доме хрущевской серии словно соткан из разных стилей и эпох. Хозяева прожили здесь более 30 лет, вырастили двоих сыновей. О значимости места говорит тот факт, что владельцы отказались менять свою хрущевку, район и соседей на новую жизнь в новостройке, вложив деньги в ремонт.
Как правильно: Квартира 60 кв.м — планировка и дизайнВалентина Савескул
Дизайн трехкомнатной квартиры 60 кв.м, планировка после ремонта

Задача дизайнеру
Хозяева хотели сохранить дух дома с богатой историей семьи, но при этом сделать квартиру более статусной, удобной, функциональной. В частности, нужно было организовать больше мест для хранения, удобный доступ к вещам, кабинет для хозяйки.
Как правильно: Квартира 60 кв.м — планировка и дизайнВалентина Савескул
Что сделали
Несмотря на то что планировку с проходной гостиной, совмещенным санузлом, крохотными кухней и спальней особенно удобной не назовешь, практически все помещения остались на своих местах. Минусы постарались превратить в плюсы.

Гостиная вмещает сразу несколько зон: обеденную — с классическим круглым столом, рабочее место хозяйки с отреставрированным секретером и зону отдыха с современным диваном и креслом в духе Вarcelona. Каждая зона имеет свое освещение.
Как правильно: Квартира 60 кв.м — планировка и дизайнВалентина Савескул
До ремонта вещи семьи в основном хранились в большой кладовке. Попасть в нее можно было только из комнаты младшего сына, что создавало неудобства. Теперь дверь в гардеробную сделали из гостиной. Но заметить ее непросто: скрытое полотно оклеено теми же обоями, что и стена. Для других вещей устроен 80-сантиметровый подиум под кроватью сына, причем к одной его части сделан доступ из комнаты, а к другой — из гардеробной.

Под кроватью в спальне хозяев также есть небольшой ящик для хранения. Кроме того, в комнате поставили шкаф-купе глубиной 40 см. В маленькую нишу перед входом в гостиную встроили шкафчик для хранения обуви. Наконец, в коридоре заново сделали антресоли — характерный элемент для хрущевок.
Как правильно: Квартира 60 кв.м — планировка и дизайнВалентина Савескул
Лайфхаки
  • На кухне дизайнер использовала шкафчики двух цветов — голубого и под дерево. Это тоже маленькая хитрость: в однотонном варианте узкое помещение было бы похоже на вагончик.
  • Зеркало в гостиной специально расположено сбоку от окна — оно отражает лучи солнца и делает темную часть комнаты светлее.
  • Почти вся мебель в квартире стоит на ножках, поэтому кажется легче и зрительно занимает меньше места.
О ПРОЕКТЕ…
Houzz тур: Дизайнерский ремонт в старой хрущевке———————————————
Как правильно: Квартира 60 кв.м — планировка и дизайнВалентина Савескул
ВАША ОЧЕРЕДЬ…
У вас есть однокомнатная, двухкомнатная или трехкомнатная квартира 60 кв.м, дизайн которой вы делали сами? Расскажите, что именно вы хотели изменить в ходе ремонта и каким образом этого достигли. Фото размещайте в разделе комментариев

ЧИТАЙТЕ ТАКЖЕ…
Перепланировка двухкомнатной хрущевки три удобных варианта
Перепланировка двухкомнатной квартиры в панельном доме реальные примеры
———————————————
В ВАШЕМ ГОРОДЕ…
Через Houzz можно нанять архитектора или дизайнера в любом городе и стране. Введите индекс, чтобы подобрать специалиста в своем городе
———————————————

Это архивный материал. Впервые опубликован в 2018-м, актуализирован в 2020-м

Комментарии 13

Планировка 2 очень необычная, интересная квартира! Обожаем нестандартные объекты, всегда получается особенный интерьер
Айгуль АмироваДля того, чтобы планировать жилое пространство, необходимы подробные (не только количественные) сведения о составе проживающих в квартире
Добрый день. Хотела бы узнать какую планировку можете предложить в этом варианте?

Оставьте комментарий

Читать похожие статьи