Houzz-туры (новые проекты)
Маленькое жилье
Двушки до 45 кв.м
Серия дома
И-209А
По городам
Во время ремонта в доме 1970 годов обнаружили асфальт вместо бетонной стяжки
Читать статью
Советы о планировках и перепланировках
Как правильно
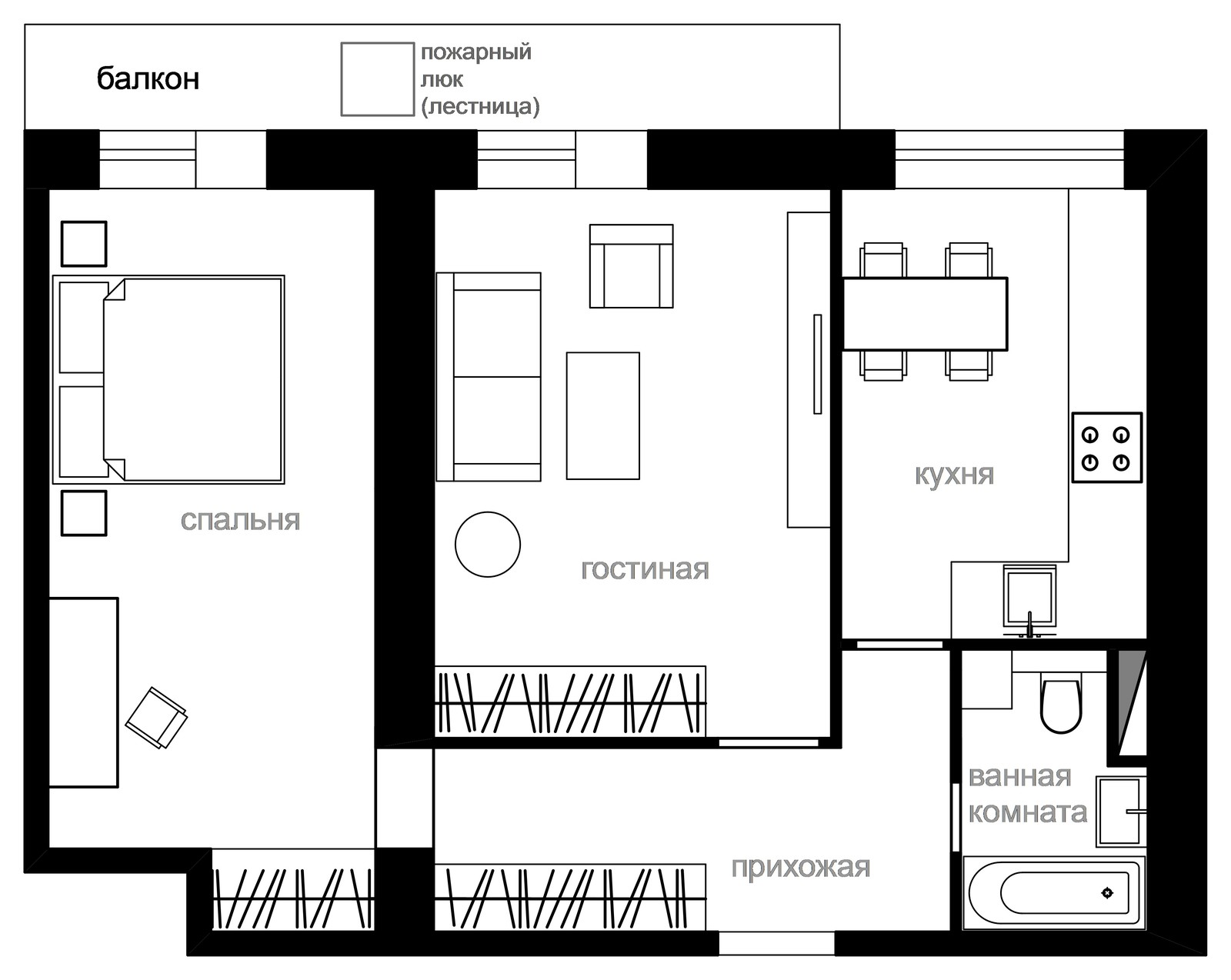
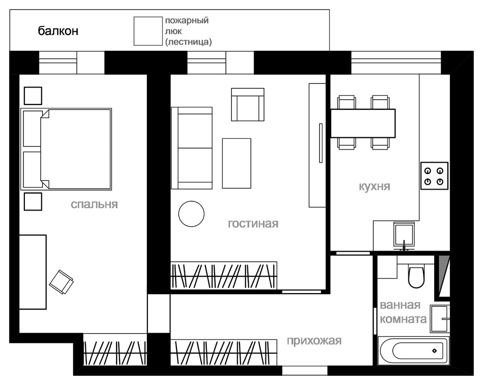
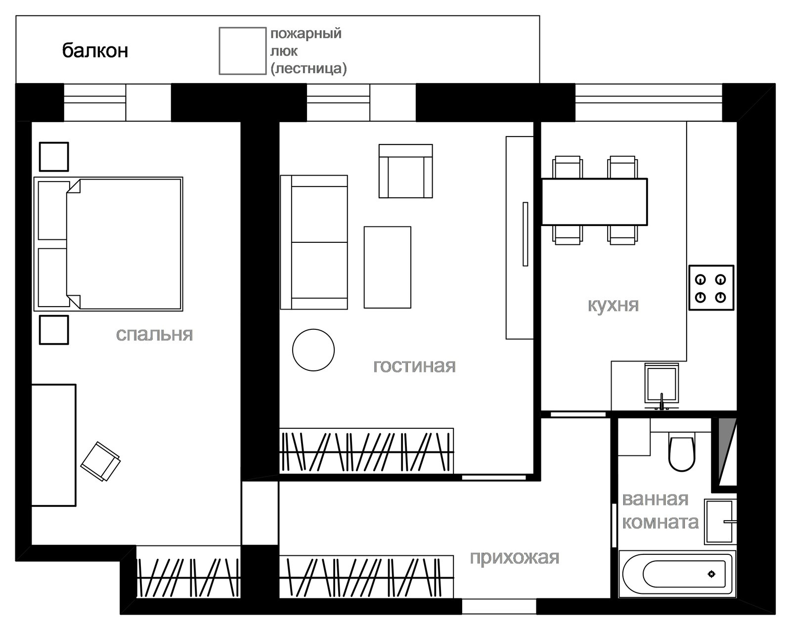
Как грамотно произвести перепланировку и организовать в типовой двухкомнатной квартире кухню-гостиную и две спальни?