Советы о планировках и перепланировках
Как правильно
Серия дома
П-3М
5 вариантов обустройства однокомнатной квартиры П-3М с перепланировкой разной степени сложности
Читать статью
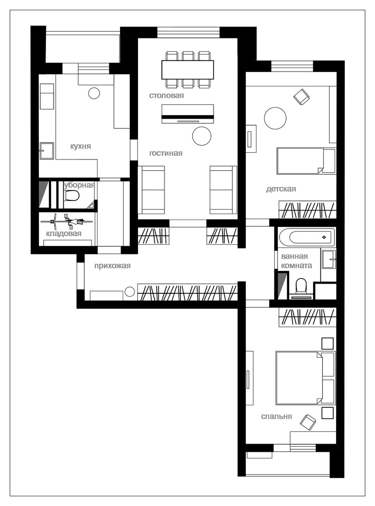
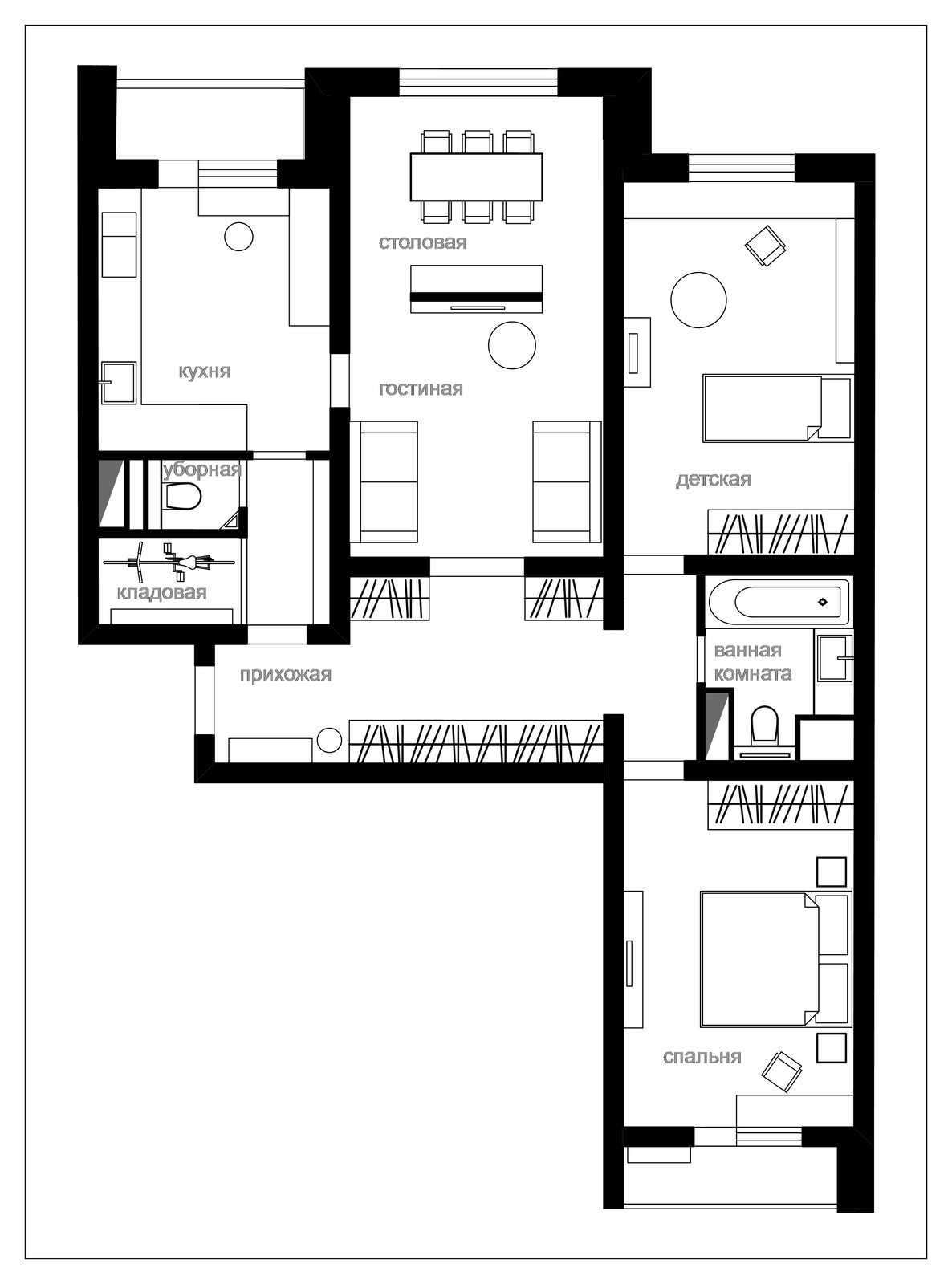
Уместится все — и большой обеденный стол, и велосипед, и четвертая комната