SV-129/135
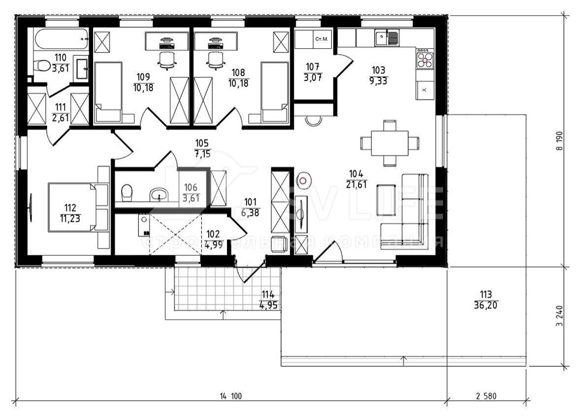
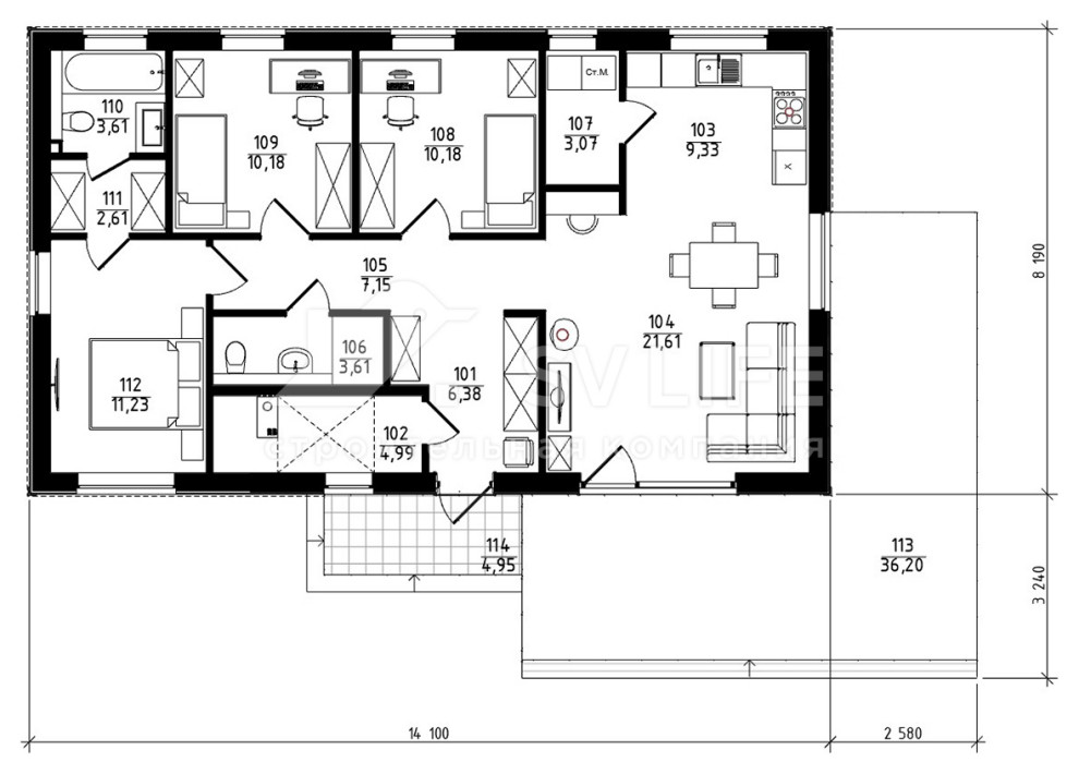
Одноэтажный проект в строгом скандинавском стиле. . В доме есть все для комфортного проживания семьи с двумя детьми. . У всех будет своя просторная комната а у родителей - мастер спальня со своей гардеробной и ванной комнатой. На кухне есть свое помещение - кладовка, что очень понравиться хозяйке дома, а их гостиной с большим панорамным окном есть выход на открытую террасу. . Контрастный фасад придает особый шарм этому дому.
Год реализации: 2021
Стоимость проектирования: 5 250 000 ₽
8 фотографий









