SV-126/157
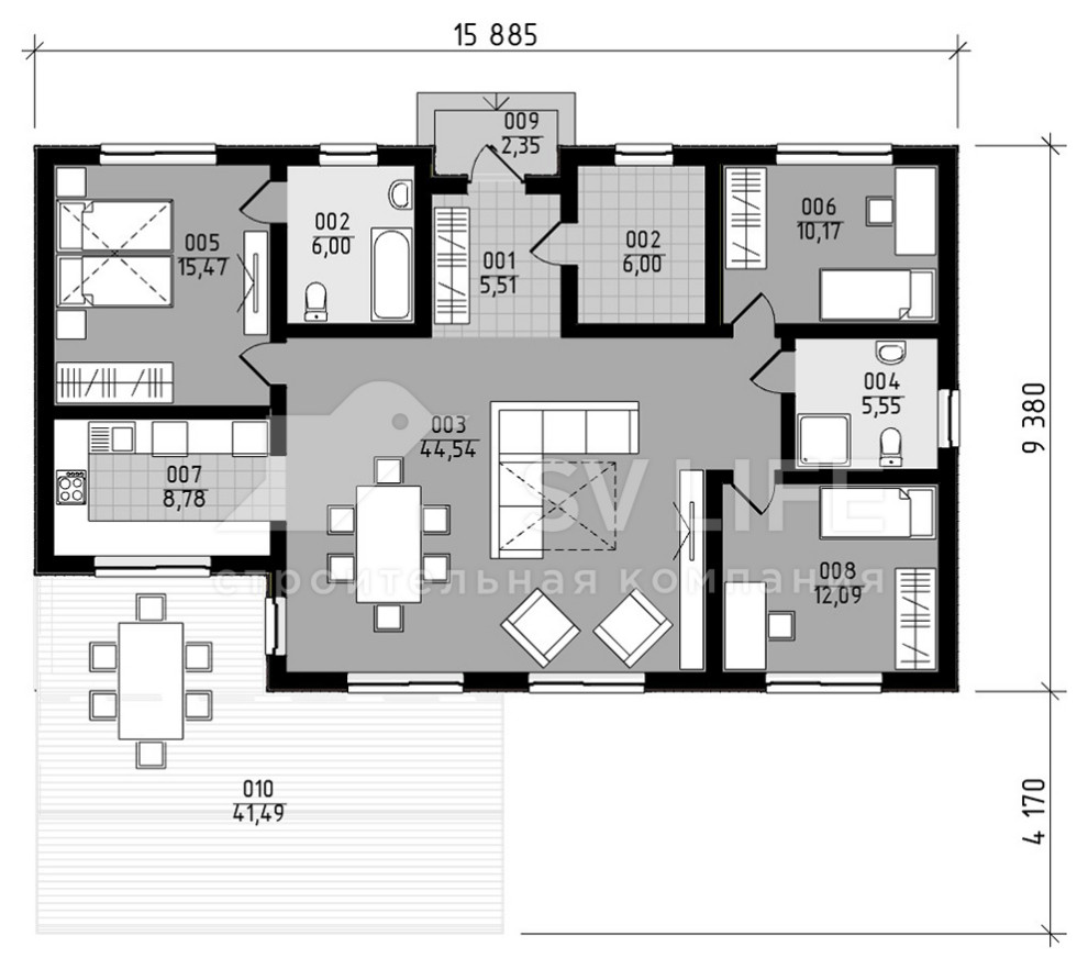
Одноэтажный каркасный дом в скандинавском стиле. . При входе в дом просторная прихожая, из нее вход в техническое помещение, пригодное для газовой котельной. . Из прихожей мы попадаем в огромную гостиную с выходом на открытую террасу. . Для удобства зона кухни отделена от столовой. . В доме три спальни, одна из которых со своей ванной комнатой. . Просторный одноэтажный дом подойдет для семьи из 4х - 5 человек. .
Год реализации: 2021
Стоимость проектирования: 5 250 000 ₽
8 фотографий









