Вам ответят эксперты. Пришлем уведомление, когда вам ответят
Имитация бруса, Скандинавский, каркасник, каркасные дома в современном стиле, каркасный дом, красивые каркасные дома, красивый каркасный дом, панорамное остекление, просторная планировка, современные каркасные дома, строительство домов в москве, строительство энергоэффективных домов
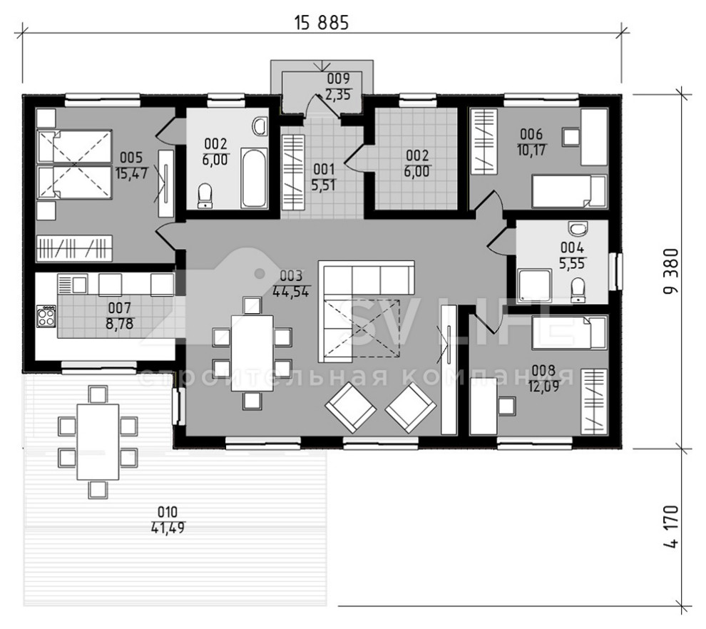
Одноэтажный каркасный дом в скандинавском стиле. . При входе в дом просторная прихожая, из нее вход в техническое помещение, пригодное для газовой котельной. . Из прихожей мы попадаем в огромную гостиную с выходом на открытую террасу. . Для удобства зона кухни отделена от столовой. . В доме три спальни, одна из которых со своей ванной комнатой. . Просторный одноэтажный дом подойдет для семьи из 4х - 5 человек. .