SV-136/117
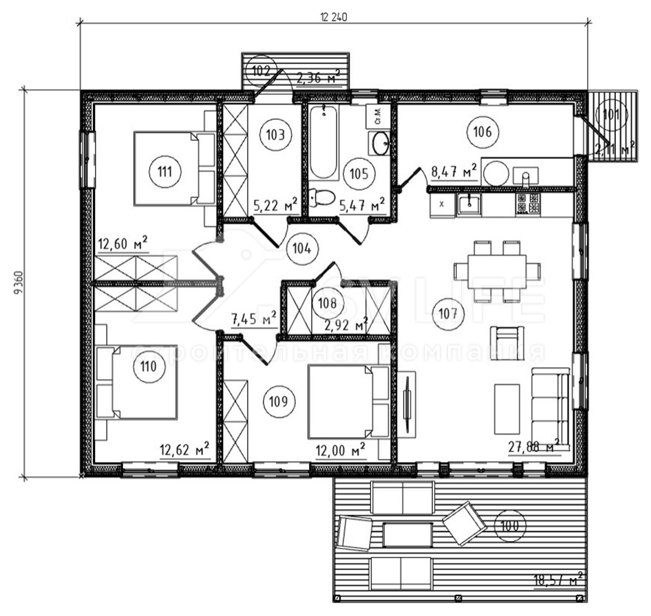
Уютный одноэтажный дом в котором нет ничего лишнего и одновременно есть простор и удобство для каждого. Котельная под газ может быть еще и кладовой для кухни. Три просторные спальни, Кухня гостиная с выходом на террасу, где будет прекрасно обедать на свежем воздухе всей семьей или отдохнуть на природе и в дождливую погоду.
Год реализации: 2021
Стоимость проектирования: 5 250 000 ₽
9 фотографий










