КД-28 XXL
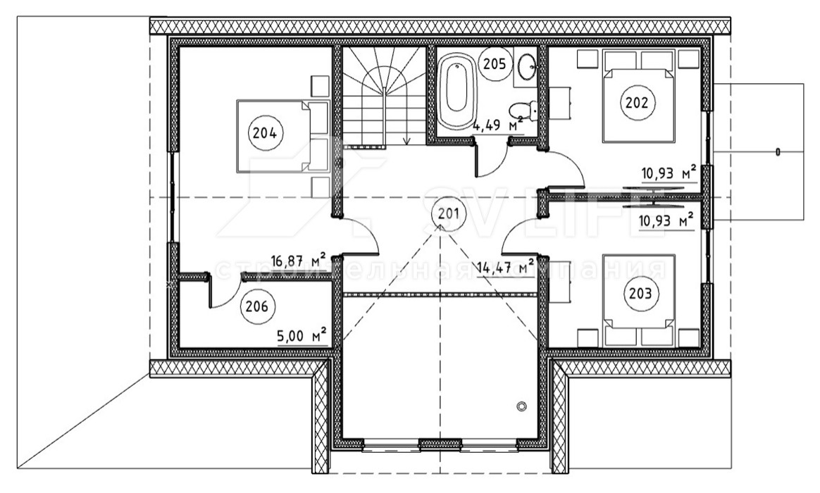
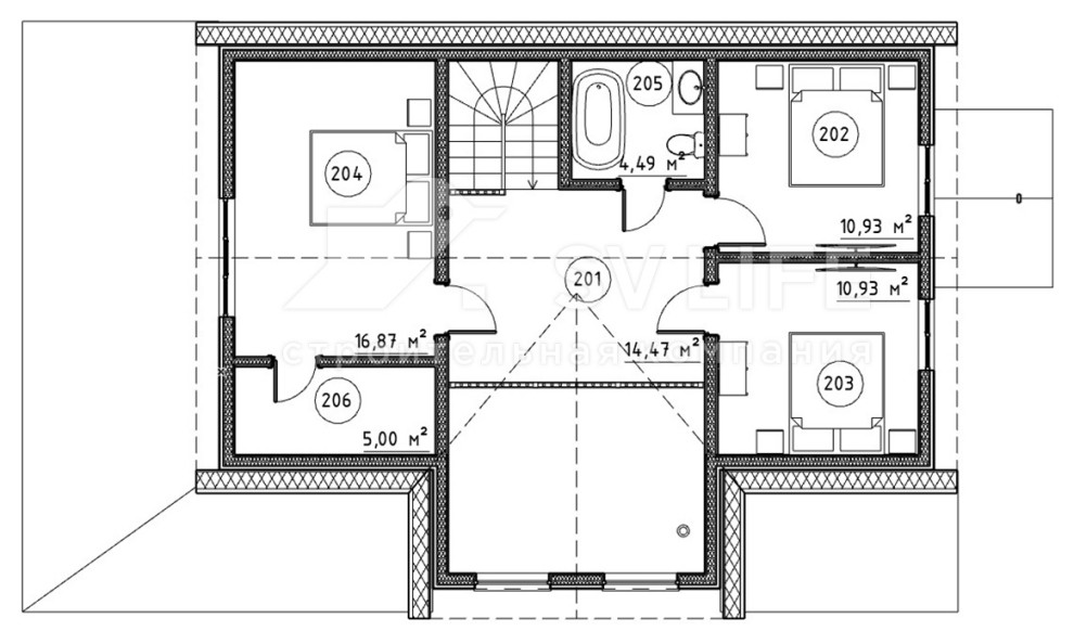
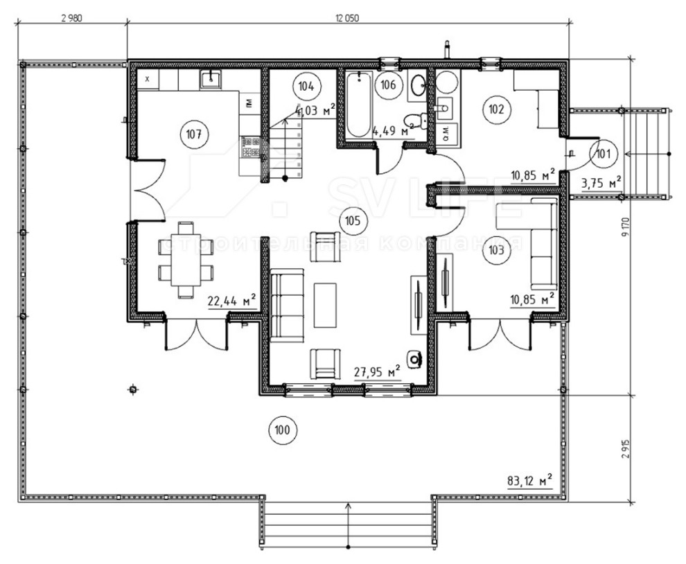
Хит всех времен проект КД-28. . Дом может быть от 128.5м2 до 230м2 . В доме может быть от 2 до 6 спален. . . Это самый большой на данный момент вариант дома КД-28. Его отличительной чертой является огромная терраса 83м2, которая окружает его с двух сторон. Есть крытая часть террасы в районе спальни первого этажа и кухни-столовой и есть открытая часть - перед главным фасадом, где можно поставить шезлонги и загорать! . На первом этаже расположены гостевая спальня, просторная гостиная и кухня-столовая из которой есть выход на террасу. . На втором этаже три спальни и балкон второго света. . В доме два санузла. . . Каждый сможет выбрать для себя вариант проекта КД-28 который подойдет именно для его потребностей. . Больше вариантов проекта КД-28 на нашем сайте, в разделе Каркасные дома. . Если вы захотите что то изменить в проекте и сделать его под себя, мы с удовольствием Вам в этом поможем!
19 фотографий




















