SV-003/147
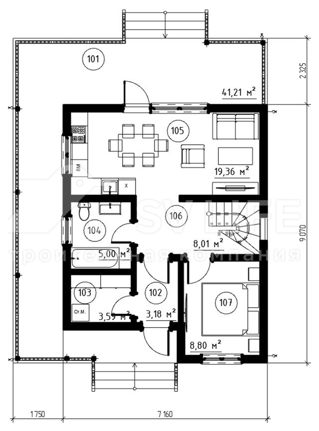
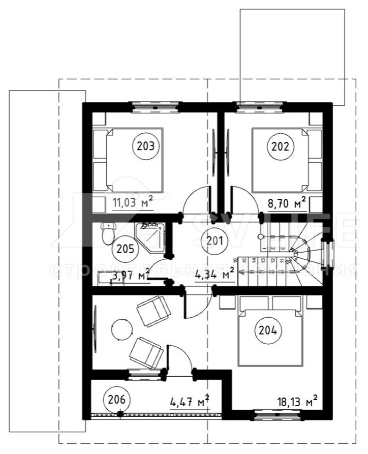
Каркасный дом в европейском стиле подойдет для большой семьи. Здесь есть и просторная кухня гостиная, и комната для бабушки с дедушкой на 1 этаже, две детских. Просторная родительская спальня со своим уютным балконом! Санузел на первом этаже с душевой, а на втором этаже с ванной, в которой можно отдохнуть и расслабиться после рабочего дня, открыв окно и наслаждаясь природой. . Ну а просторная терраса позволит не только всей семье проводить время на воздухе в любую погоду, но и станет местом для встречи гостей и уютных застолий!
Год реализации: 2021
Стоимость проектирования: 5 250 000 ₽
7 фотографий








