
SV-129/135
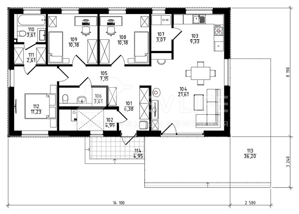
Одноэтажный проект в строгом скандинавском стиле. . В доме есть все для комфортного проживания семьи с двумя детьми. . У всех будет своя просторная комната а у родителей - мастер спальня со своей гардеробной и ванной комнатой. На кухне есть свое помещение - кладовка, что очень понравиться хозяйке дома, а их гостиной с большим панорамным окном есть выход на открытую террасу. . Контрастный фасад придает особый шарм этому дому.
Другие фотографии в проекте
Вопросы к фото 0
Задайте вопрос
Вам ответят эксперты. Пришлем уведомление, когда вам ответят




