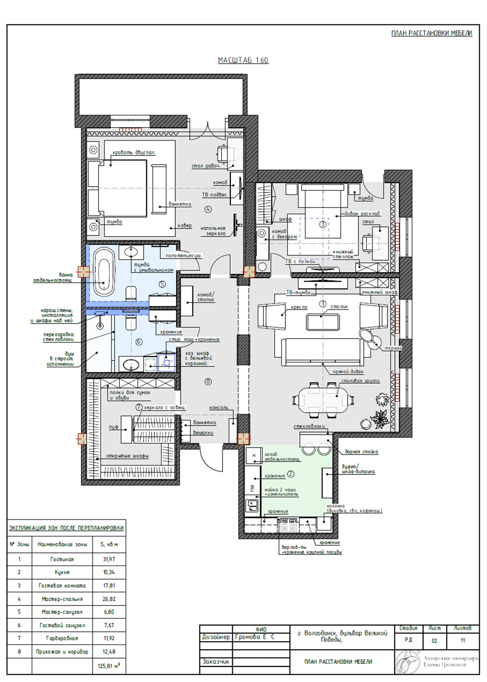
"Ретро-шик" для молодой пары, 133 кв.м.
Запрос был на эскизный проект в максимально сжатые сроки (1 неделя!). Согласиться на него меня сподвигли референсы, которые прислала заказчица: яркий советский ковер, паркет-елочка, старая советская мебель и стеклоблоки. Проект реализован клиентом самостоятельно
Год реализации: 2024
Стиль: Ретро
г. Ростовская обл, г Волгодонск
13 фотографий













