Квартира для семьи, 97 кв.м.
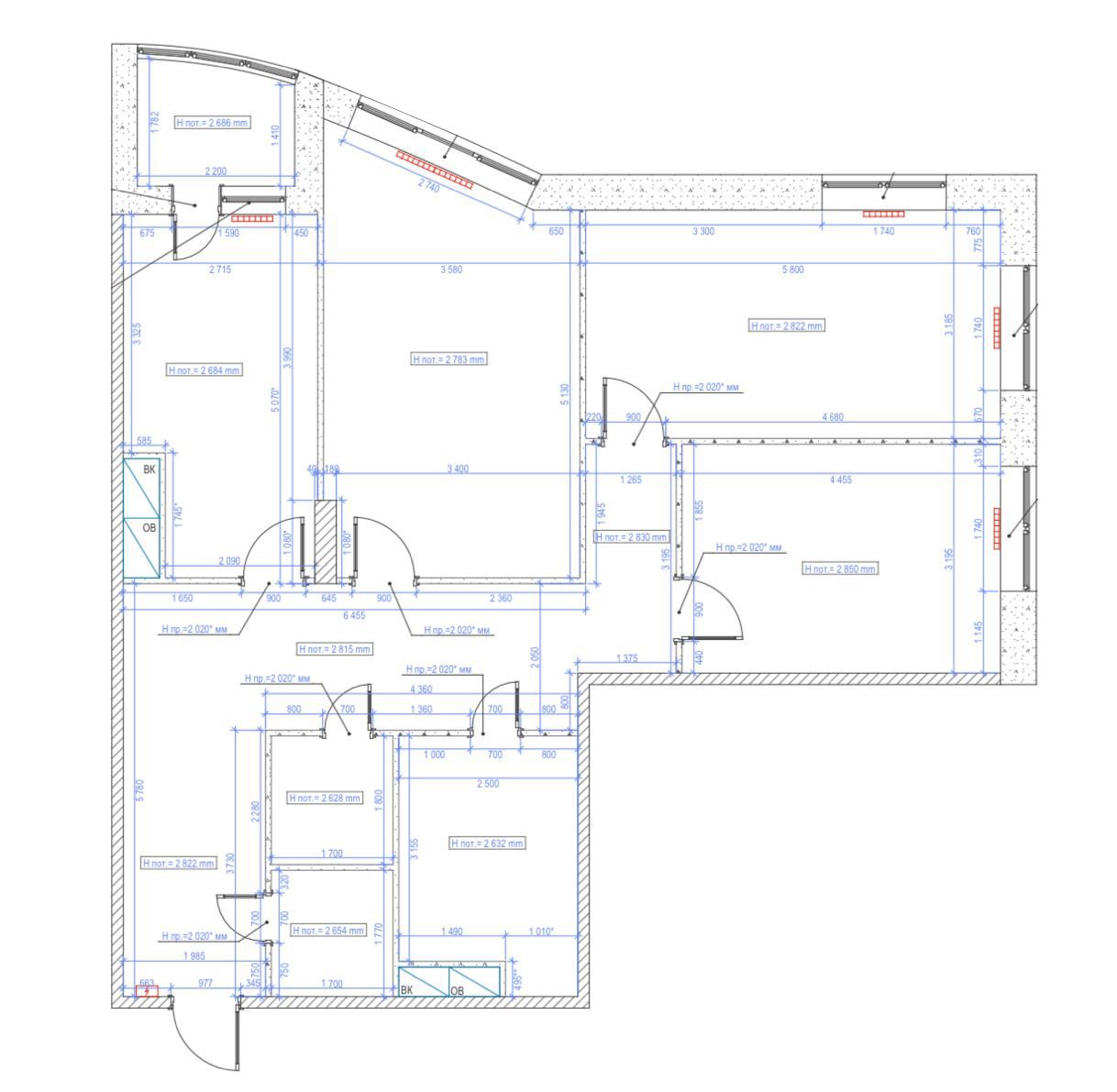
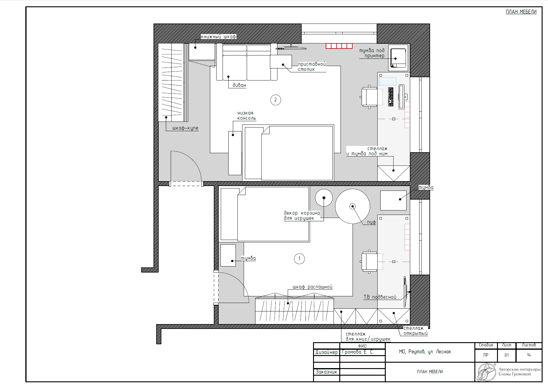
Проект квартиры, г. Реутов, МО, 97 кв.м. Планировку квартиры (кроме детских) предоставил заказчик. Реализация заказчиком самостоятельно
Год реализации: 2024
Стиль: Неоклассика
г. Московская обл, г Реутов
17 фотографий
Проект квартиры, г. Реутов, МО, 97 кв.м. Планировку квартиры (кроме детских) предоставил заказчик. Реализация заказчиком самостоятельно
17 фотографий
