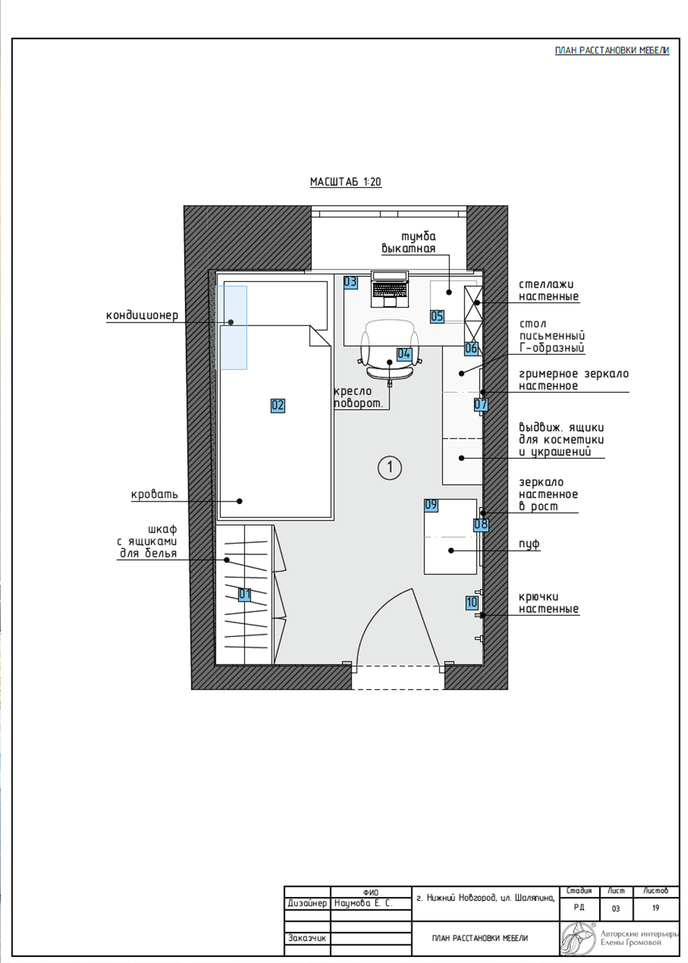
Комната девочки-подростка, 8 кв.м.
Маленькая комнатка, в которой должно поместиться все: спальное место, комфортный стол для учебы, туалетный столик и мини-гардеробная с зеркалом.
Год реализации: 2025
Стиль: Скандинавский
г Нижний Новгород
25 фотографий

























