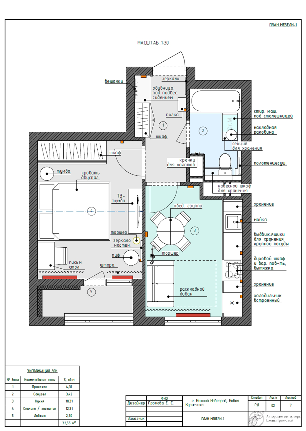
Квартира под сдачу, 32 кв.м.
Квартира под сдачу в аренду, Новая Кузнечиха, 32,5 кв.м. Реализован в 2025 г.
Год реализации: 2025
Стиль: Скандинавский
г Нижний Новгород
25 фотографий
Квартира под сдачу в аренду, Новая Кузнечиха, 32,5 кв.м. Реализован в 2025 г.
25 фотографий
