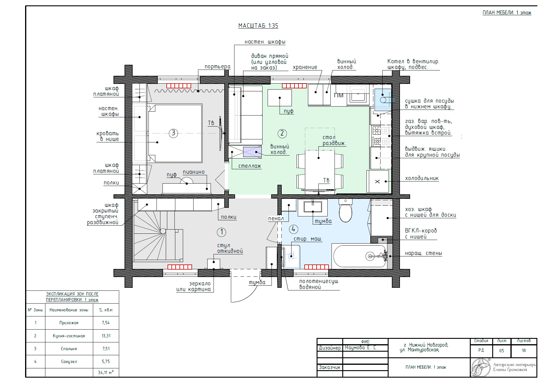
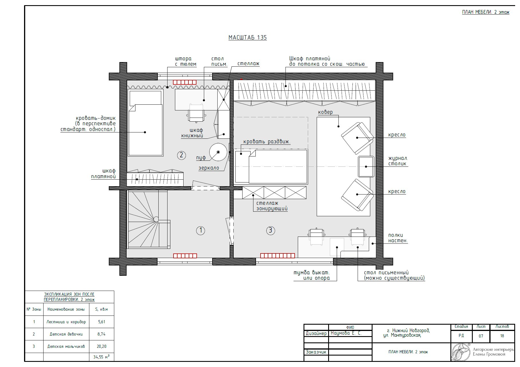
Деревянный дом для семьи, 68 кв.м.
Деревянная обшивка стен, которую требовалось сохранить. Главная задача - оптимизация пространства и увеличение мест хранения. В стилистике отталкивались от Икеа
Год реализации: 2025
Стиль: Скандинавский
г Нижний Новгород
12 фотографий












