Дом у озера
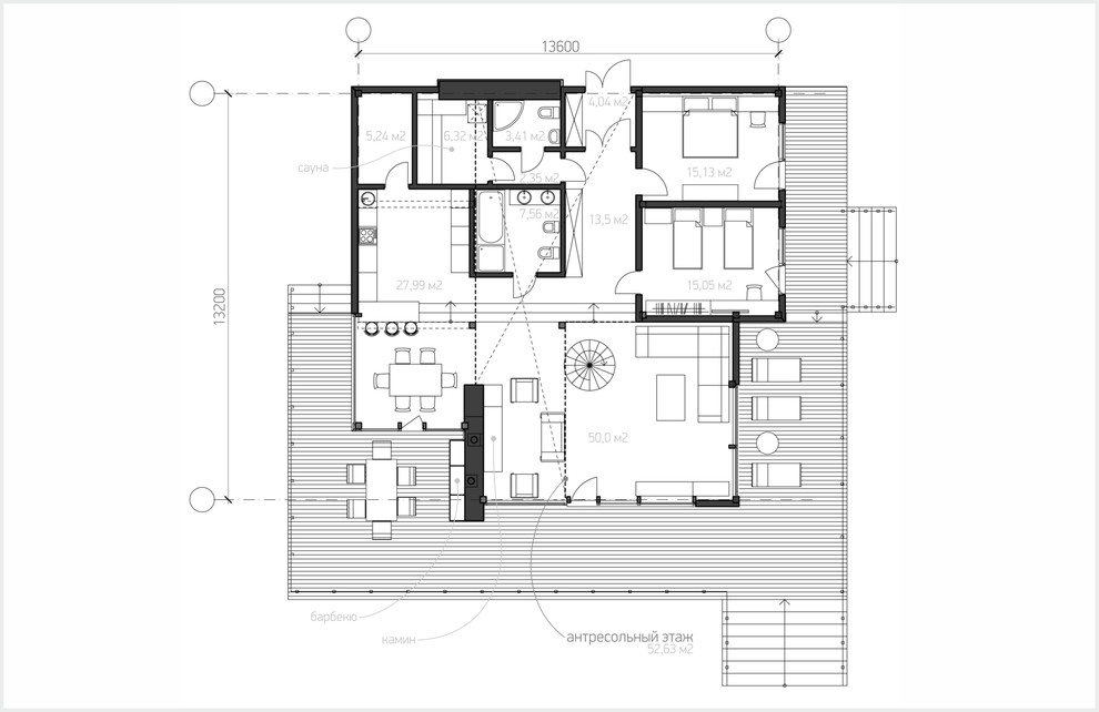
// Данный проект разрабатывался как VIP-дом на территории проектируемой нами базы отдыха на берегу озера Велье в Новгородской области. Однако функционально этот дом от базы практически не зависит и может существовать автономно, поэтому мы рассматриваем его как полноценный загородный дом - Дом у озера. . // Расположение на берегу озера определяет характерный рельеф участка и дом повторяет понижение рельефа своим планировочным решением. Гостиная и столовая расположены ниже остальных помещений дома. Это позволило увеличить высоту данных помещений и организовать барную стойку между кухней и столовой. . // Еще одним особенным элементом дома стала массивная каменная стена между столовой и гостиной, которая не только эффектно работает в архитектуре дома, но и несет на себе функциональную нагрузку - внутри дома в этой стене установлен камин, а снаружи - барбекю, которую также можно использовать как очаг на открытом воздухе. . . // Площадь помещений 1 этажа - 152,56 кв.м . // Площадь антресольного этажа - 52,63 кв.м . // Общая площадь дома - 205,19 кв.м . . // Год проектирования объекта - 2015
3 фотографии




