Гостевой дом
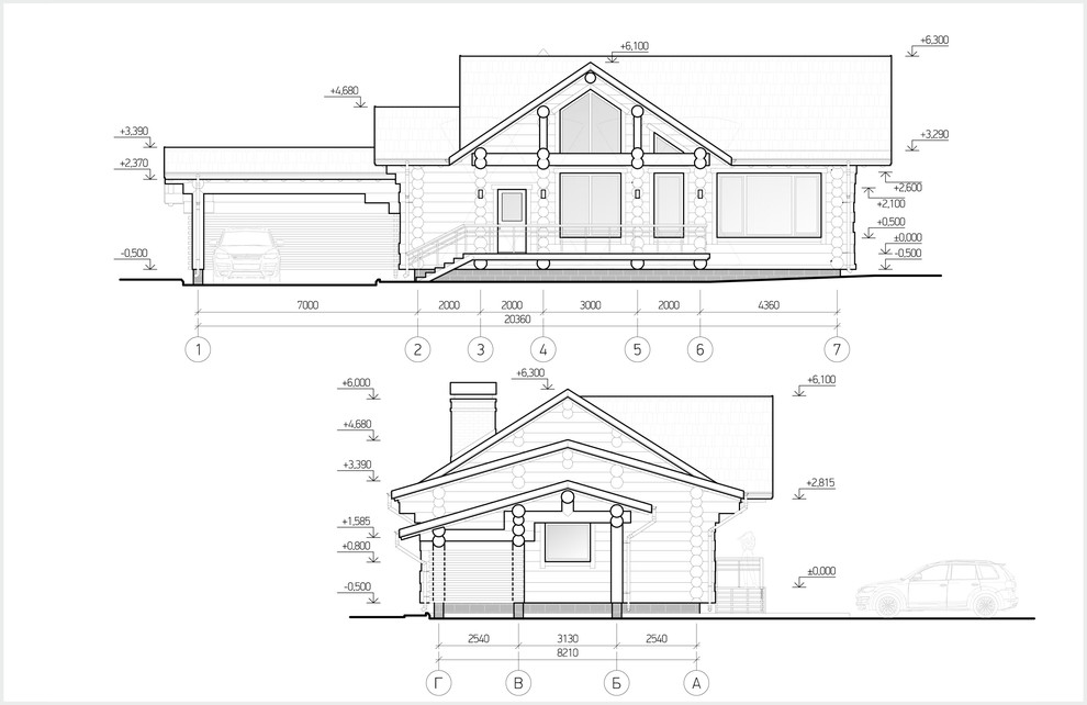
// Проект гостевого дома на существующем фундаменте рядом с основным хозяйским домом. . // Площадь помещений дома = 93,22 м2 . // Материал стен - кедровые бревна диаметром около 400мм, тонированные в светлый цвет для создания единого ансамбля с основным домом. . // Материал кровли - мягкая черепица.
Год реализации: 2016
5 фотографий






