альбом АР
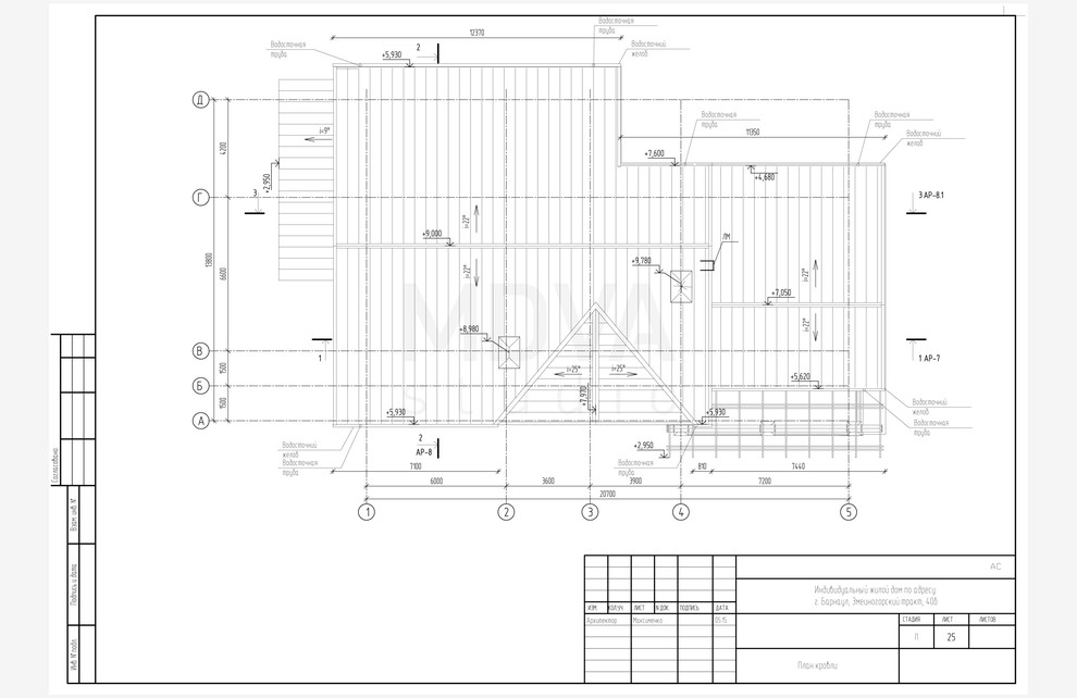
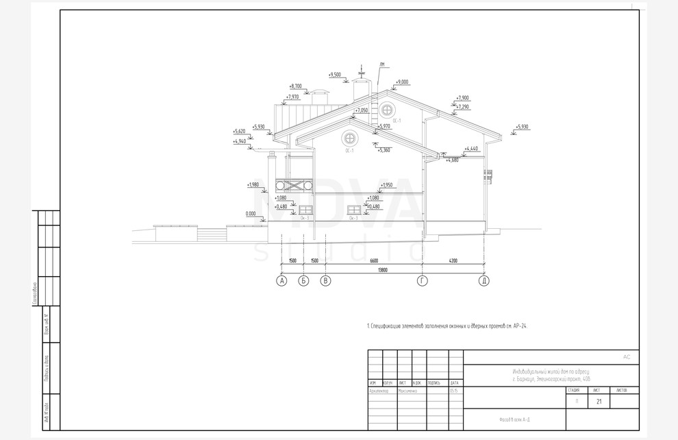
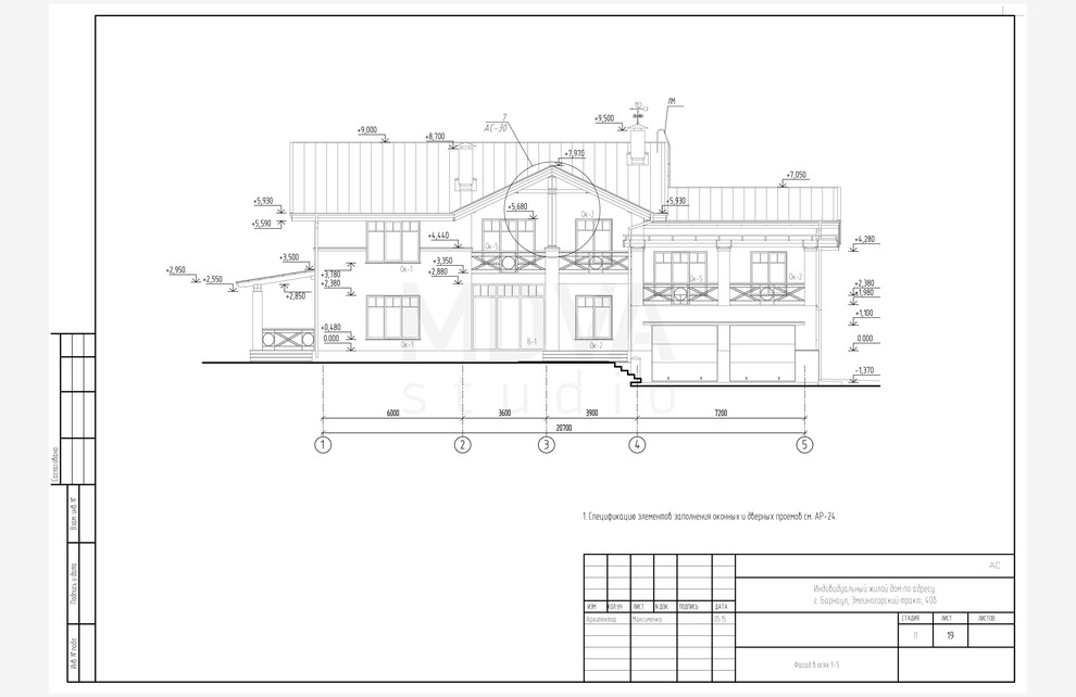
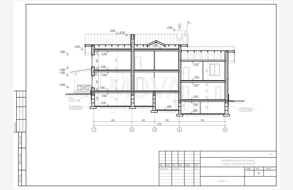
комплект чертежей: . - пояснительная записка; . - общие данные; . - технико-экономические показатели; . - схема генерального плана; . - кладочные планы этажей; . - отделочные планы этажей с расстановкой мебели; . - план кровли; . - разрезы; . - фасады с пояснениями по наружной отделке; . - 3D изображения; . - ведомости заполнения проемов; . - схемы окон и витражей; . - ведомость отделки; . - экспликация полов; . - архитектурные узлы и элементы; .
Год реализации: 2016
21 фотография






















