Баня на базе отдыха
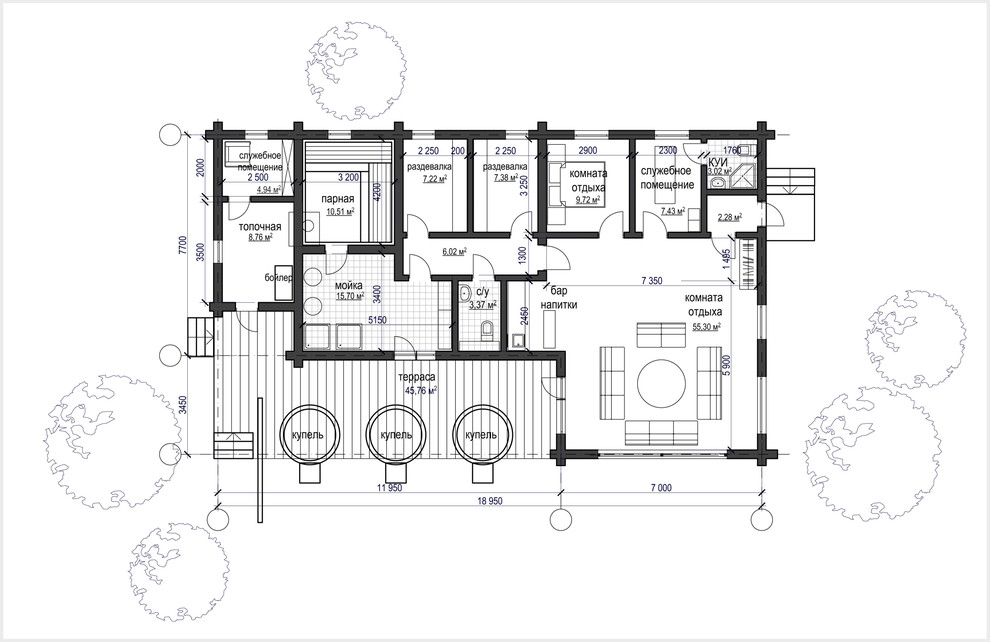
// Проект бани разработан для Базы отдыха, расположенной на берегу озера Велье в Новгородской области. Проектом предполагается использование бани большими компаниями отдыхающих. Для этого в бане предусмотрены все необходимые помещения для отдыха, обслуживания посетителей и обслуживания самой бани. . // Изюминкой проекта стало размещение на открытой террасе уличных купелей в виде деревянных бочек, использование которых предполагается круглый год. Для подогрева воды в зимний период купели оборудованы специальными топками. . // Объемно-планировочное решение здания позволило закрыть террасу бани с купелями со стороны основных сооружений базы выступающим объемом комнаты отдыха. Таким образом на террасе формируется приватное пространство и достигается комфорт отдыхающих в бане гостей. . // Материал стен - клееный профилированный брус. . // Материал кровли - гибкая черепица Shinglas. . . // Вместимость - 15 человек. . // Общая площадь помещений - 141,41 м2. . . // Дата создания проекта - декабрь 2015.
5 фотографий






