Дом в бору 380 м2
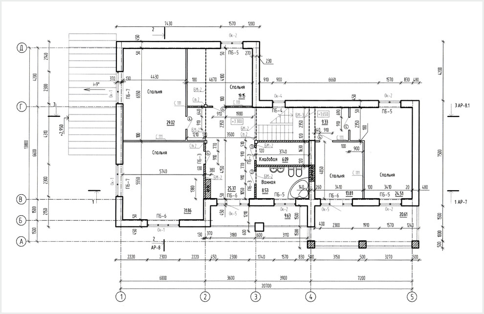
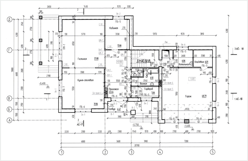
// Наша мастерская выполнила проект загородного дома в объеме полного комплекта Архитектурно-Строительных чертежей. . // Основной идеей дома стал принцип размещения этажей в пол-уровня. . . // Технико экономические показатели: . Этажность - 2 этажа . Общая площадь - 382,39 м2 . Жилая площадь - 201,67 м2 . Площадь застройки - 275,5 м2 . Строительный объем - 2239,85 м2 . в том числе ниже отм.0,000 - 572,02 м2 . . // Дата окончания проектных работ - май 2015 года. . // Проект находится на стадии реализации.
Год реализации: 2016
6 фотографий







