Дом из бруса 230 м2
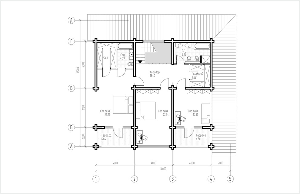
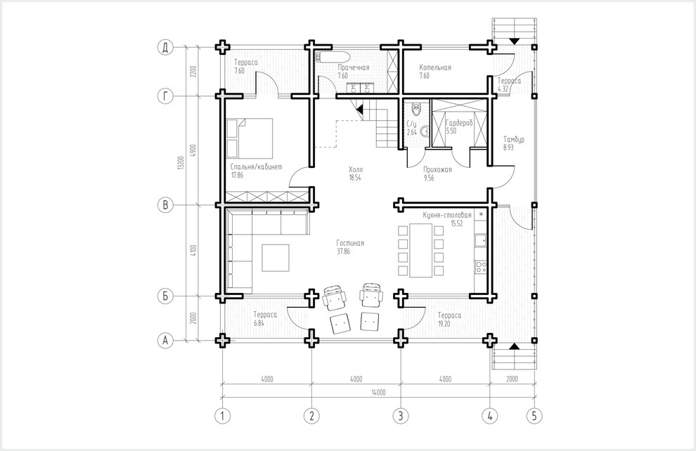
// Загородный дом для семьи с двумя взрослыми детьми. Особым пожеланием заказчика было создание больших оконных проемов на главном фасаде. . // Дом получился очень рациональным с открытым жилым пространством на первом этаже, в котором расположены гостиная зона, столовая зона, кухня и лестница на второй этаж. На втором этаже расположены просторная хозяйская спальня с отдельными ванной и гардеробной комнатами и детские спальни с общими ванной и гардеробом с доступом из коридора. Также проектом предусмотрены дополнительные подсобный помещения котельной с отдельным входом и прачечной со входом под лестницей. . // Материал стен - клееный брус. . . // Площадь помещений 1-го этажа - 131,61 м2 . // Площадь помещений 2-го этажа - 96,67 м2 . // Общая площадь помещений дома - 228,28 м2 . . // Дата создания проекта - октябрь 2015
4 фотографии





