logo
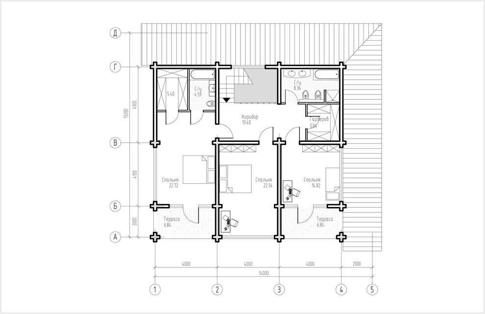
План 2 этажа

Другие фотографии в проекте Дом из бруса 230 м2

План 1 этажа
Дополнительные виды
Главный вид

Вопросы к фото 0

Задайте вопрос

Вам ответят эксперты. Пришлем уведомление, когда вам ответят

architecture, mdva, mdva studio, wooden house, АР, Двухэтажный дом, Скандинавский, альбом АР, деревянный дом, дом из бруса, загородный дом, коттедж, план, план 2 этажа, план второго этажа, планировка, чертеж, эскизный проект

Максим Максименко

Максим Максименко

Архитекторы

Смотреть профиль

0

отзывов

0

Рейтинг

Дом из бруса 230 м2

// Архитектор: Максименко Максим

Вопросы к фото 0