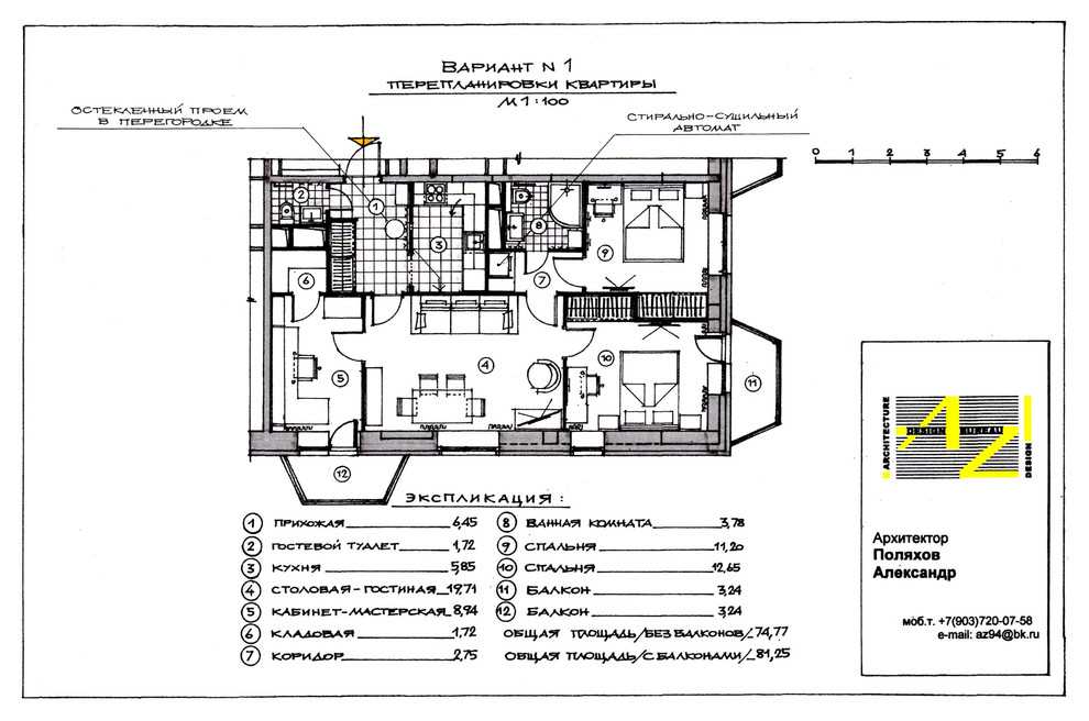
Профиль пользователя3-х комнатная квартира в ЖК "Весна", Апрелевка. Варианты перепланировки.Год реализации: 20183 фотографииПоделитьсяСохранить3-х комнатная квартира в Апрелевке. Варианты перепланировки.ПоделитьсяСохранить3-х комнатная квартира в Апрелевке. Варианты перепланировки.ПоделитьсяСохранить3-х комнатная квартира в Апрелевке. Варианты перепланировки.ПоделитьсяСохранить