logo
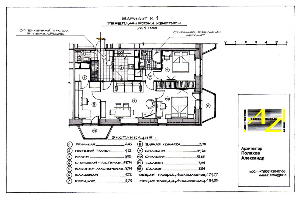
3-х комнатная квартира в Апрелевке. Варианты перепланировки.

Другие фотографии в проекте 3-х комнатная квартира в ЖК "Весна", Апрелевка. Варианты перепланировки.

3-х комнатная квартира в Апрелевке. Варианты перепланировки.
3-х комнатная квартира в Апрелевке. Варианты перепланировки.

Вопросы к фото 0

Задайте вопрос

Вам ответят эксперты. Пришлем уведомление, когда вам ответят