

Поляхов Александр
Архитекторы
Отзывы о: Поляхов Александр 23
4.91
23 отзыва
Качество работы
5.0
Коммуникация
5.0
Стоимость
4.1
Спасибо Александру за помощь перестановки мебели, долго думала как все сделать. Очень хороший проект, обязательно буду обращаться к Вам! . Рекомендую не пожалеете!
19/Март/2025
Александр помогал на этапе чертежей разместить и распланировать отдельные помещения, предлагал удобные и комфортные для жизни варианты, не выдумывая какие-то сверхсложные для выполнения варианты. Мне кажется, с человеком такого подхода очень комфортно и продуктивно работать.
08/Апрель/2022
Сотрудничала с архитектором Александром Поляховым по изготовлению декоративной стеновой панели. Хочу отметить высокий профессионализм Александра, а также отличную организацию и четкость работы. Несмотря на небольшой по объему и стоимости заказ, Александр выехал на объект для замеров и консультации, сделал несколько эскизов стеновой панели, дал подробные комментарии по каждому эскизу, а затем организовал изготовление и монтаж "под ключ". Рекомендую его как грамотного и ответственного специалиста, настоящего профессионала с большим опытом работы!
30/Июль/2020
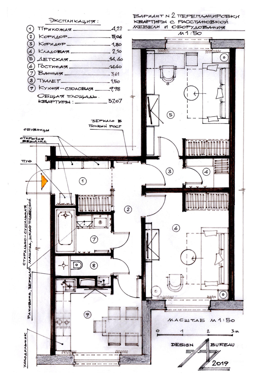
Александр, спасибо Вам большое за предложенные варианты расстановки мебели. Один из них мы уже воплощаем в жизнь! С большим удовольствием обращусь к Вам за консультацией снова! Видно, что Вы профессионал своего дела!
21/Декабрь/2019
Спасибо, Александр, за отзывчивость. Очень помогли ваши чертежи для прояснения картины нашей будущей планировки. Была рада, пообщаться с таким профессионалом.
08/Ноябрь/2019
Об эксперте
Об опыте
Основополагающим принципом работы Дизайн-бюро «АЗ» всегда был индивидуальный подход к проектированию объектов с учетом стилевых предпочтений и пожеланий Заказчика. Архитекторы и дизайнеры выполняют проекты с использованием каталогов известных производителей, а также проектируют авторские предметы индивидуально для каждого интерьера… Тщательная проработка всех разделов проекта позволяет максимально точно воплотить замыслы архитекторов, конструкторов и дизайнеров в процессе реализации проектов. Особое внимание уделяется качеству продукции.
Категории специализации
Архитекторы, Беседки и веранды, Декораторы и стилисты интерьера, Дизайнеры интерьера, Ландшафтные дизайнеры, Проектирование и строительство, Ремонт и отделка квартир и домов
Услуги
Архитектурное проектирование
Архитектурные чертежи
Архитектурный дизайн
Визуализация интерьера
Дизайн гостиной
Домик у бассейна под ключ
План дома
План этажа
Пристройки к дому
Проект дома на заказ
Проектирование конструкций
Проектирование участка
Ремонт квартир и домов
Ремонт квартиры
Строительство мини-домов
Чертеж на заказ
Экодизайн
Элитный ремонт
Альбомы идей 1





