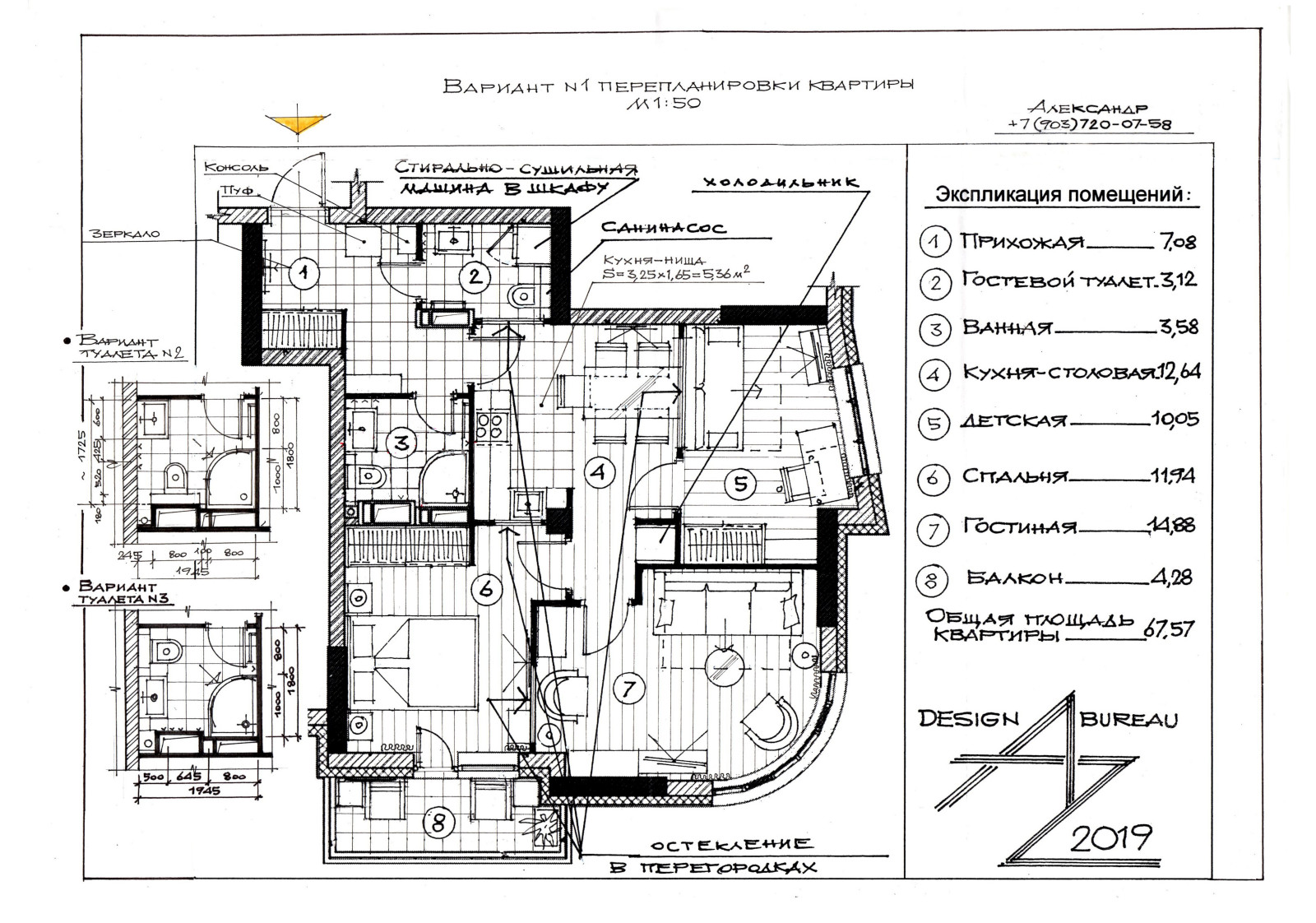
Профиль пользователяПерепланировка двухкомнатной квартиры в Киеве в евротрешкуГод реализации: 20193 фотографии ПоделитьсяПерепланировка двухкомнатной квартиры в Киеве в евротрешкуПоделитьсяСохранитьПерепланировка двухкомнатной квартиры в Киеве в евротрешкуПоделитьсяСохранитьПерепланировка двухкомнатной квартиры в Киеве в евротрешкуПоделитьсяСохранить