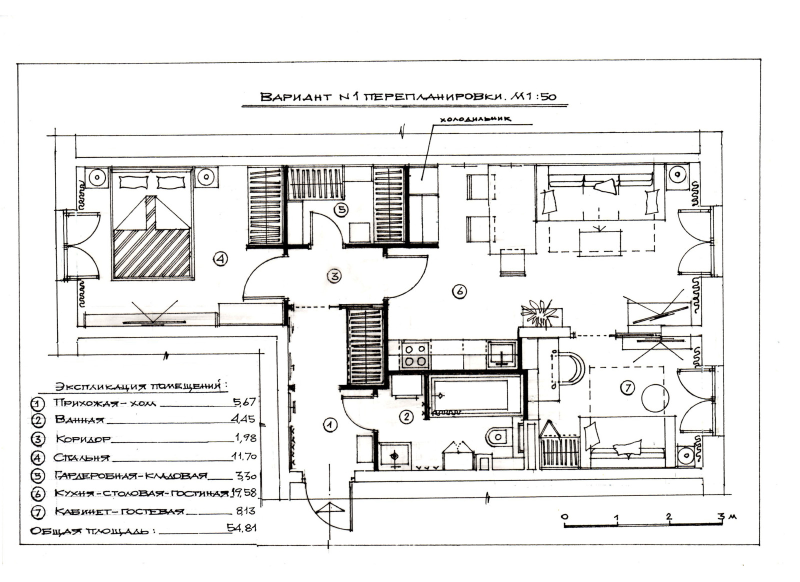
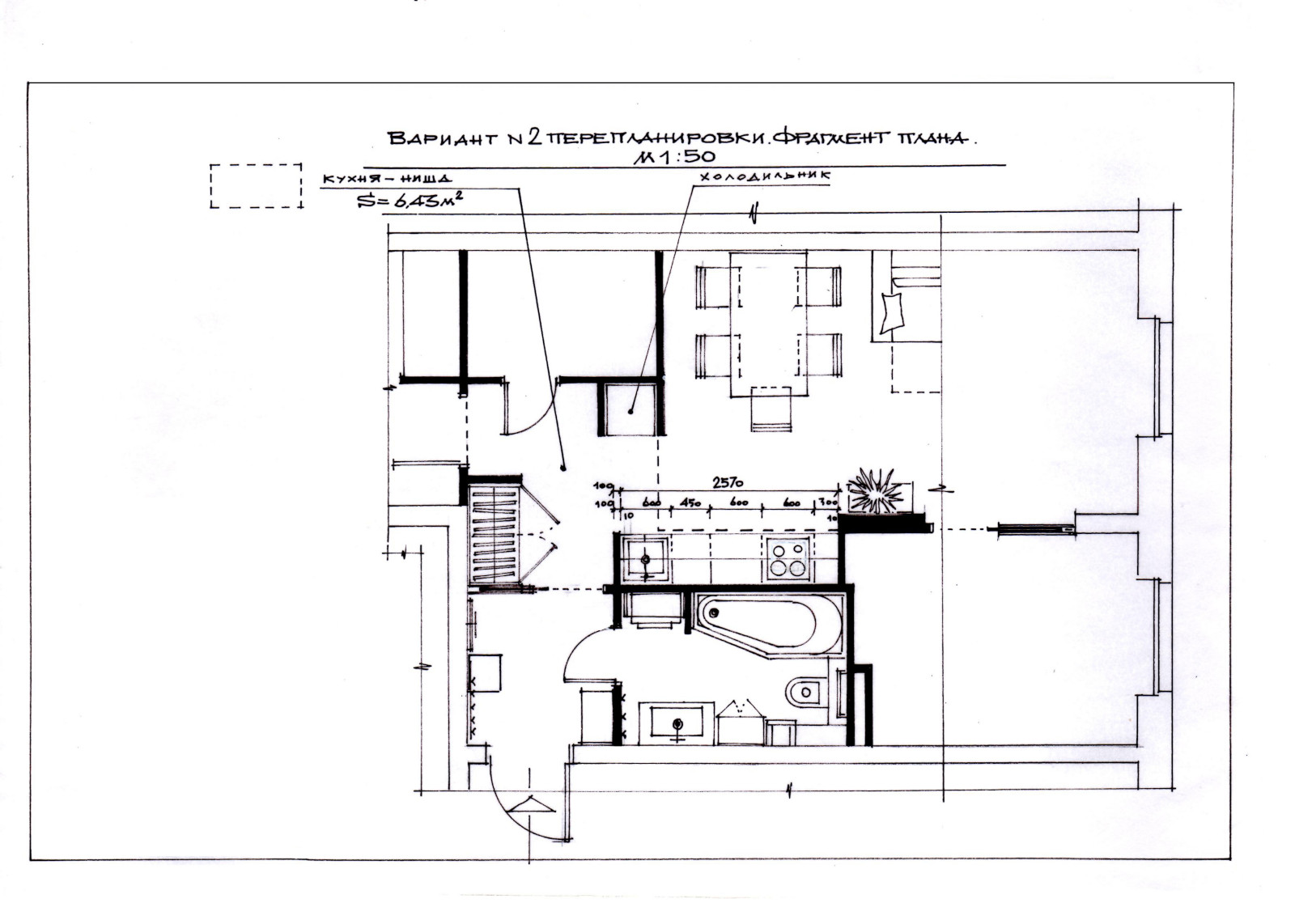
Профиль пользователяПерепланировка двушки в евротрешкуГод реализации: 2019г. Москва3 фотографииПоделитьсяСохранитьПерепланировка двушки в евротрешкуПоделитьсяСохранитьПерепланировка двушки в евротрешкуПоделитьсяСохранитьПерепланировка двушки в евротрешкуПоделитьсяСохранить