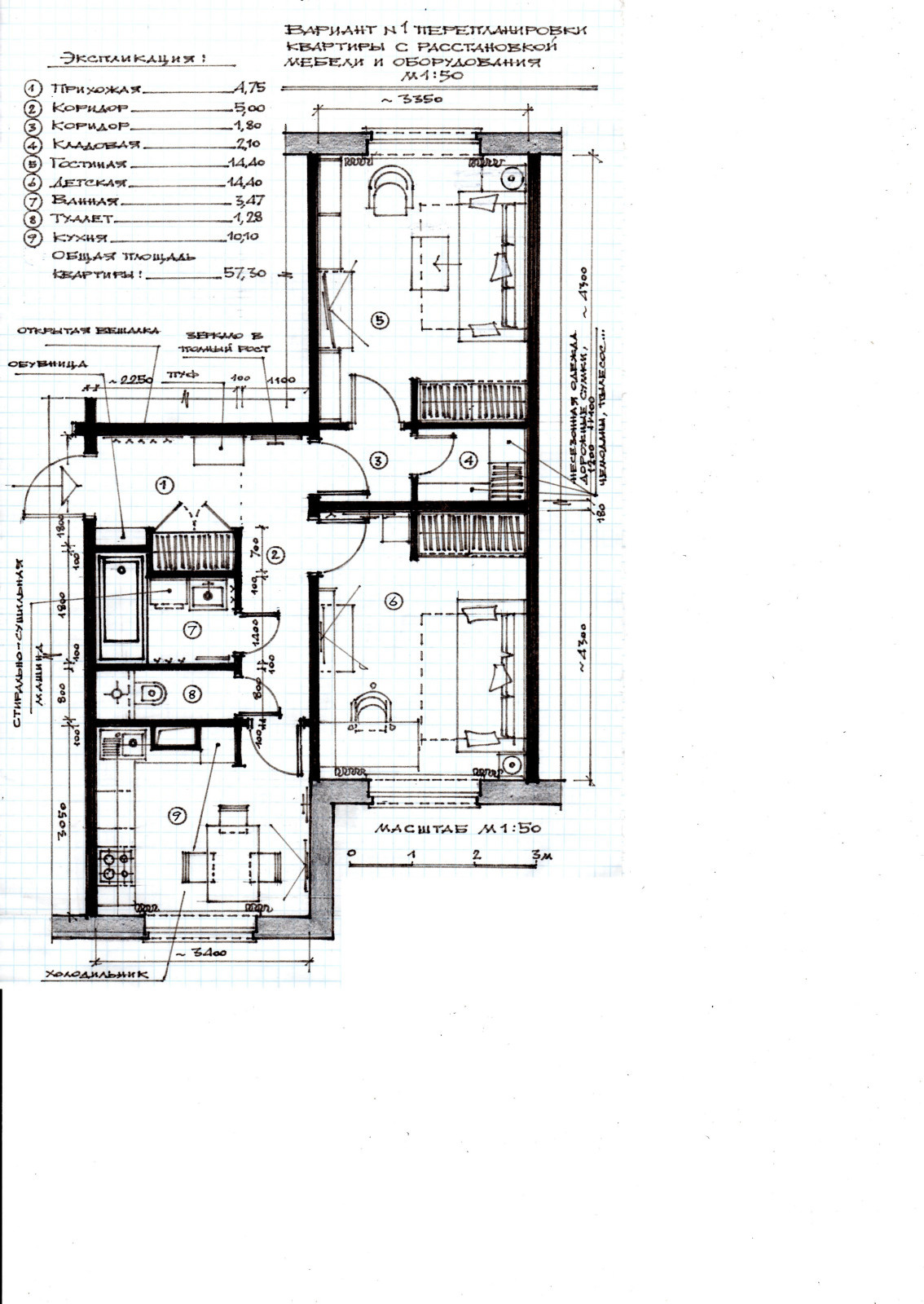
Профиль пользователяПерепланировка трехкомнатной квартиры с расстановкой мебели и оборудованияГод реализации: 20192 фотографии ПоделитьсяПерепланировка трехкомнатной квартиры с расстановкой мебели и оборудованияПоделитьсяСохранитьПерепланировка трехкомнатной квартиры с расстановкой мебели и оборудованияПоделитьсяСохранить