logo

В закладки: 8 проектов одноэтажных домов с тремя спальнями

Взрослая, детская, гостевая спальни— как их разместить в доме на единственном этаже

Houzz Россия
Houzz Россия

27 дек. 2017

Обновлено 22 янв. 2018

Проект дома с тремя спальнями тот случай, когда лучше семь раз отмерить. Важный вопрос количество этажей. Если площадь участка позволяет, а в семье есть маленькие дети и пожилые люди, желательно обойтись без лестниц. Однако проект одноэтажного дома с 3 спальнями принципиально отличается от двухэтажных. Здесь пространство не делится автоматически на приватное и общественное, каждой комнате нужно добыть солнечного света и продумать логику перемещения жильцов.

В помощь будущим домовладельцам лучшие планировки одноэтажных домов с тремя спальнями из архива Houzz.
В закладки: 8 проектов одноэтажных домов с тремя спальнямиАрхитектурная студия Chado
1. Дом со стеклянными стенами

Место: Ростовская область
Размер: 378 кв.м
Авторы проекта: Архитекторы Евгений Задорожний и Олег Пигулевский, архитектурная студия
«Чадо»

Идея этого дома для семьи с двумя детьми была простой, но интересной: небольшие пространства под двускатными крышами, объединенные в единую постройку. Заказчики настояли на том, чтобы проект дома с тремя спальнями обошелся без второго этажа, и соответственно, лестниц.

Экстерьер здания неоднороден. Со стороны улицы дом облицован декоративным кирпичом выглядит как крепость. А вот со стороны сада и бассейна можно увидеть стеклянные фасады сюда выходят окна гостиной.
Особенности планировки. Передняя часть дома (слева и справа от входа) включает разные «технические» помещения. В центре одноэтажного семейного дома большая гостиная, объединяющая зону отдыха, столовую и кухню. В стеклянную стену встроен камин со стеклянной топкой: огонь вечером видно не только из дома, но и с террасы.

От гостиной отходят два «рукава» родительский и детский. Большое окно родительской спальни выходит в сад. Одна стена ванной также сделана полностью стеклянной. В детской части помимо спален располагается игровая комната со встроенной системой хранения от стены до стены.
На фото: игровая комната между детскими спальнями. Еще одна стена игровой граничит с кухней, стеклянный фартук на которой выполняет функцию окна. Можно готовить и присматривать за детьми

Дизайн интерьеров. Этот проект одноэтажного дома хороший пример не только удобной планировки, но и тонкой работы дизайнеров интерьера. Современный стиль совсем не выглядит здесь холодным. В доме сложно найти лишние детали, но все на своем месте: и «промышленный» свет, и уютная мебель, и «остров» с растениями. И конечно, открытая конструкция двускатной крыши.

ЧИТАЙТЕ О ПРОЕКТЕ С ФОТО…
Houzz тур: 14 комнат на единственном этаже — дом под Ростовом
В закладки: 8 проектов одноэтажных домов с тремя спальнямиСергей Колчин
2. Дом в Шатуре «три в одном»

Место: г. Шатура, Московская область
Размер: 220 кв.м
Авторы проекта:
Сергей Колчин и Надежда Трошина, бюро Le Atelier

Большинство типовых проектов на российском рынке индивидуального домостроения представляют экономкласс. Таков спрос. Неслучайно один из самых популярных запросов в этой сфере «проект одноэтажного дома 12х12 с тремя спальнями». Однако малая площадь и один этаж вовсе не синоним скучной архитектуры. Яркий пример тому можно видеть на фото. Пусть тут и не 12 на 12.

Заказчик успел заложить фундамент квадратного дома 16х16 м, когда понял, что существующие эскизы ему не нравятся. За помощью он обратился к архитектору Сергею Колчину. Требовался необычный проект с тремя спальнями и большой гостиной. В поисках идеи Сергей обратил внимание на неоднородность городской застройки: «богатые» кирпичные дома с лебедями, деревянный самострой, промышленные здания с окнами, заложенными кирпичами и т.п. Отсюда и возникла идея современного дома, в котором бы органично переплелись разные элементы городской среды.
В закладки: 8 проектов одноэтажных домов с тремя спальнямиСергей Колчин
Особенности планировки. Квадратный одноэтажный дом с тремя спальнями состоит из трех разных объемов будто из разных домиков. Два «домика» отделаны кирпичом, один деревом. Кое-где окна якобы «заложены» кирпичом это тоже игра в ассоциации с подмосковной застройкой.

В ближайшей от парадного входа части располагается хозяйская спальня, прихожая и хозяйственные помещения. В центральном блоке кухня-гостиная со скошенным потолком, из нее сделан выход на террасу. Дальше всех от входа находится блок с детскими спальнями. Над спальнями есть чердак, где спрятаны воздуховоды и вентиляция.
В закладки: 8 проектов одноэтажных домов с тремя спальнямиСергей Колчин
Дизайн интерьеров. Интерьеры оформлены в современном стиле с прямыми линиями и яркими акцентами. Белые стены визуально увеличивают помещения, а дерево делает их теплее.

СМОТРИТЕ ТАКЖЕ…
  • Другие фото этого проекта
  • Еще один проект одноэтажного дома с тремя спальнями от Le Atelier
3. Дом, растворенный в лесу

Место: Можайское шоссе, Московская область
Размер: 180 кв.м
Автор проекта: Сергей Наседкин, ARCH.625


Планировка черного одноэтажного дома с 3 спальнями на фото, может, и не блещет оригинальностью, зато сам он точно нетипичное явление в «маленькой» архитектуре.

Дом, в котором живет семья с двумя детьми, растворился в ландшафте русского леса. Архитектор Сергей Наседкин адепт минимализма: строгая геометрия, прямые линии, природные цвета и простые материалы: фанера, железобетон, металл, стекло.

Габариты каркасного дома рассчитаны так, чтобы использовать стройматериалы и стеклопакеты типовых размеров. Например, высота и ширина стен кратны фанерным панелям. Строителям не пришлось тратить время на подгонку разных материалов. Здание было поставлено за два месяца.
В закладки: 8 проектов одноэтажных домов с тремя спальнямиНаталия Тверитинова
Особенности планировки. В центре дома находится большая кухня-гостиная, по сторонам — три спальни, санузлы и технические помещения. Перегородки сделаны из черного каленого стекла толщиной 10 мм. Их можно двигать, меняя размеры помещений.

Проект дома с 3 спальнями сделан с учетом местной инсоляции так в комнаты попадает больше всего солнца. Помимо фасадных окон здесь есть большое кровельное окно над кухней. Вместо стекла в нем сотовый пятикамерный поликарбонат. В доме своя котельная, трубы отопления спрятаны в нишах на полу.
На фото: главная спальня имеет собственный санузел и ванную, все перегородки сделаны из черного стекла

Дизайн интерьеров. И снаружи, и изнутри дом отделан клееной фанерой 12 и 6 мм. Снаружи стены и террасы тонированы темным лессирующим составом под палисандр и эбеновое дерево. Внутри фанерные панели покрыты розовым лаком под канадский кедр. Контраст темного и светлого — главный декоративный прием проекта.

ЧИТАЙТЕ О ПРОЕКТЕ С ФОТО…
Houzz тур: Дом t9 — рекордные сроки возведения и модернистский облик
В закладки: 8 проектов одноэтажных домов с тремя спальнямиОксана Короткина
4. Дом, где хватит места всем любителям природы

Место: Поселок Новоглаголево, Московская область
Размер: 350 кв.м
Авторы проекта: Оксана Короткина, Юлия Копытина, студия
Prosperity

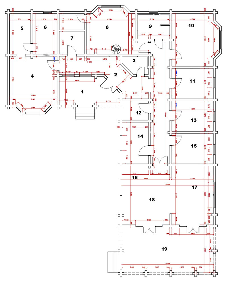
Планировка одноэтажного дома с 34 спальнями во многом зависит от их назначения. В проекте на фото около 15 разных помещений в том числе спальни для хозяев, дочери, родителей и гостей. Если спальных мест не хватит, можно использовать еще и диван в комнате отдыха. Это загородный дом, но жить тут можно круглый год.
В закладки: 8 проектов одноэтажных домов с тремя спальнямиЕвгений Иванов
План дома: 1 — главный вход, 2 прихожая, 3 — гостевой с/у, 4 — главная спальня, 5 — гардероб, 6 — главный с/у, 7 холодильник для шуб, 8 детская комната, 9 с/у, 10 — гостевая комната, 11 — гостевая комната, 12 — кладовая, 13 гостевая комната, 14 котельная, 15 — кабинет, 16 кухня, 17 — гостиная, 18 столовая, 19 веранда

Особенности планировки. Здание на участке с деревьями расположено углом так, что отовсюду видна зелень. Этот эффект усиливают и зеркала, которых в доме много. Край одного из крыльев занимает общее пространство кухни-столовой и гостиной. Отсюда французские двери ведут на веранду. Летом они открыты, и граница между экстерьером и интерьером размывается. Во дворе также стоит обеденный стол с мраморной столешницей, под крышей спрятаны диваны и кресла-качалки.
В закладки: 8 проектов одноэтажных домов с тремя спальнямиОксана Короткина
На фото: комната дочери. Помимо расписанного изголовья тут есть еще один заметный декоративный элемент винтовая лестница, ведущая на «чердак», где хранятся игрушки и книжки. Ее можно видеть на плане

Дизайн интерьеров. Каждая спальня в этом одноэтажном проекте имеет свой характер. Например, в хозяйской акцентами выступают стены винного оттенка и синее изголовье кровати. В комнате дочери изголовье украшает растительный орнамент, нарисованный вручную. В гостевой спальне синие стены и птицы в рамках, в комнате отдыха рыбы на обоях и комод с рельефом, имитирующим круги на воде. Интерьеры во многом создавались хозяевами, и дизайнерам пришлось «превращать дефекты в эффекты».

ЧИТАЙТЕ О ПРОЕКТЕ С ФОТО…
Houzz тур: Загородный дом в Подмосковье с долгой историей
В закладки: 8 проектов одноэтажных домов с тремя спальнямиВиктория Шкляр
5. Планировка дома с тремя спальнями и гардеробной наверху

Место: Недалеко от Киева, Украина
Размер: 270 кв.м
Авторы проекта:
Ольга Антонцева и Виктория Шкляр, FORM architectural bureau

На фото двухэтажный дом, но в нашу подборку он попал неслучайно. Изначально хозяева участка семья с двумя дочерьми пришли к дизайнерам, имея готовый проект одноэтажного дома с тремя спальнями. Пообщавшись с заказчиками, Ольга Антонцева и Виктория Шкляр убедили их надстроить здание по центру, чтобы разместить на втором ярусе большую гардеробную. В остальном планировка дома осталась неизменной. Так что если кого-то устроит хранение вещей в шкафах при комнатах, можно обойтись и без надстройки.
В закладки: 8 проектов одноэтажных домов с тремя спальнямиВиктория Шкляр
Особенности планировки. Две детских и взрослая спальня занимают дальний левый угол от входа. Кабинет в левой части дома отделяет приватную часть от хозяйственных помещений топочной, постирочной и гаража. В центре квартиры блок из трех санузлов. Один из них гостевой развернут к прихожей. Правую часть дома занимают кухня и гостиная с панорамным окном. Потолки в гостиной под пять метров высотой.
В закладки: 8 проектов одноэтажных домов с тремя спальнямиВиктория Шкляр
Дизайн интерьеров. Детские комнаты сделаны в классическом стиле, остальные помещения дома в современном. Стены отделаны микробетоном и деревом досками мореного дуба и тонированными фанерными панелями.

ЧИТАЙТЕ О ПРОЕКТЕ С ФОТО…
Houzz Украина: Дом с гардеробной под крышей для молодой семьи
В закладки: 8 проектов одноэтажных домов с тремя спальнямиЕкатерина Ловягина
6. Вариант: гостиная как гостевая спальня

Место: Краснодар
Площадь: 198 кв.м
Автор проекта:
Екатерина Ловягина

Проект этого одноэтажного кирпичного дома с террасой из тех, что архитекторы делают для себя. Дизайнер Екатерина Ловягина выбрала под строительство участок в городе, но на берегу реки и рядом с парковой зоной. Все работы заняли два года. Помимо дома на шести сотках появились зона отдыха, парковка, огород и клумбы.

Особенности планировки. Дом стоит в центре участка. В семье решили, что второй этаж им не нужен, при этом здание должно быть современным и лаконичным снаружи. Чтобы концептуально объединить помещения с садом, сделали панорамные окна.
В закладки: 8 проектов одноэтажных домов с тремя спальнямиСветлана Лянгасова
План дома: 1 — гостиная, 2 кухня, 3 спальня хозяев, 4 санузел при спальне, 5 основная гардеробная, 6 кабинет хозяйки, 7 детская, 8 основной санузел, 9 прачечная, 10 сауна, 11 холл, 12 кладовая и вторая гардеробная, 13 кабинет хозяина, 14 котельная

Особенность планировки дома отсутствие коридоров. В центре располагается гостиная с камином. В правом крыле условно приватная часть: спальни, санузлы, гардеробная, сауна и прачечная. Левое крыло включает большую часть гостиной, кухню, кабинет и котельную. По центру ближе ко входу холл, кладовка, технические помещения. Несмотря на то, что спальни две взрослая и детская, гостей при такой планировке можно всегда оставить на ночь в гостиной. Главное выбрать правильный диван.
В закладки: 8 проектов одноэтажных домов с тремя спальнямиЕкатерина Ловягина
Дизайн интерьеров. Изнутри дом напоминает шкатулку с драгоценностями. Стены выкрашены в насыщенные цвета: синий, коричневый, темно-серый. Много фактур: сланец, дуб, узорная плитка, рыжая кожа, натуральный шеллак и пр. Одна из находок высокие деревянные двери со стеклянными фрамугами.

ЧИТАЙТЕ О ПРОЕКТЕ С ФОТО…
Houzz тур: Дом возле реки для семьи дизайнера
В закладки: 8 проектов одноэтажных домов с тремя спальнямиДмитрий Хорошев
7. Хозяевам налево, гостям направо

Место: Халкидики, Греция
Автор проекта:
Lighthouse Design

Проекты большинства одноэтажных семейных домов, сделанные для теплых стран, требуют доработки в нашем климате. Но для умелого архитектора это не проблема. Главное идея.

Дом с тремя спальнями на фото (не считая детской) хоть и принадлежит русским хозяевам, но стоит в Греции. Его особенность заключается в том, что под одной крышей, строго говоря, оказались два строения.

Особенности планировки. Изнутри каменную постройку 1980 годов сегодня не узнать. При реконструкции архитекторы убрали все ненесущие стены и разделили дом на две автономных части: одна для хозяев, другая для гостей.
В закладки: 8 проектов одноэтажных домов с тремя спальнямиДмитрий Хорошев
В каждом блоке свои спальни, кухни-гостиные и санузлы. У каждой половины есть отдельный вход. Связующим звеном для домов помимо общей кровли выступает терраса с обеденным столом, диванами и уличным домашним кинотеатром.

Несмотря на мягкий климат, наружные стены утеплены. Фронтальная стена по сути состоит из панорамных окон. Их можно сложить «гармошкой», объединив внутренние помещения с площадками для отдыха на улице.

В доме есть полуцокольный этаж, где расположены еще одна кухня и винный погреб. Без него можно было бы и обойтись, если бы не большой перепад высот на участке.
В закладки: 8 проектов одноэтажных домов с тремя спальнямиДмитрий Хорошев
На фото: хозяйская спальня. Природные мотивы читаются в интерьере: светильники с ветвями, деревянный вентилятор, банкетка-камень

Дизайн интерьеров. Обе половины дома отделаны в лаконичном современном стиле с использованием натуральных материалов: дерева, травертина, полудрагоценных камней, мозаики из смальты. Фишка проекта темные рамы оконных проемов, которые, словно рамы для картин, обрамляют живописные виды. Со временем здесь появятся скульптуры и живопись.


ЧИТАЙТЕ О ПРОЕКТЕ С ФОТО…
Houzz тур: Дом в Греции с видом на самое синее море и сосновый лес

СМОТРИТЕ ТАКЖЕ…
Проекты домов с 3 спальнями (планы, фото) в разных странах:
В закладки: 8 проектов одноэтажных домов с тремя спальнямиАнна Жемерева
8. Дом на гараже

Место: Вороново, Московская область
Размер: дом
156 кв.м, гараж 143 кв.м
Автор проекта: Анна Жемерева, ORT-interiors


Многие интересные проекты одноэтажных домов с тремя спальнями возникли в творческом поиске и борьбе с обстоятельствами. Например, дом на фото имеет один жилой этаж, просто построен он на гараже. Несколько лет назад на участке возвели дом и гараж на три машины. Со временем семья увеличилась, родители остались в старом доме, а детям с внуками понадобилась отдельная площадь.
В закладки: 8 проектов одноэтажных домов с тремя спальнямиАнна Жемерева
На фото: планировка дома с тремя спальнями и большой гостиной

Особенности планировки. Идеальное место для нового дома нашлось на гараже. Здание решили делать каркасным, чтобы облегчить вес. Поскольку перед домом есть пруд и красивая зеленая территория, ставка была сделана на высокие потолки и панорамное остекление. Попасть в дом можно по наружной лестнице. В общественных зонах отопление устроено при помощи теплого пола, батареи установлены только в спальнях.
В закладки: 8 проектов одноэтажных домов с тремя спальнямиАнна Жемерева
Дизайн интерьеров. Для отделки выбрали шпонированные панели на фанерной основе внутри и на полимерной снаружи, по принципу вентилируемого фасада. Это было пожелание заказчиков: материал натуральный, современный, не требующий ухода. Гараж отделан фибробетонными панелями.

СМОТРИТЕ ТАКЖЕ…
Другие фото проекта
В закладки: 8 проектов одноэтажных домов с тремя спальнямиМадо
СМОТРИТЕ ТАКЖЕ…
Фото и планировки маленьких одноэтажных домов с тремя спальнями:

ВАША ОЧЕРЕДЬ…
Какие проекты домов с тремя спальнями вам показались самыми интересными? Какой, по-вашему, была бы идеальной планировка дома 8 на 10 метров? А 12 на 12? Как устроена планировка вашего одноэтажного дома? Поделитесь планами и фотографиями в разделе комментариев!

Комментарии 16

Lora Ta

7 л.

Живу в одноэтажном и кайфую .
Евгений Иванов, спасибо за статью, пролистывая первые фото и планы, широко округлила глаза. Два года назад с мужем зачерчивали одноэтажный дом для нашей семьи, планировали долго, думали много, мозги кипели. А сейчас вижу планировку первого варианта из статьи и смеюсь-это тот самый домик, который родился у нас в творческом процессе. Строить мы его не стали, загорелись другой идеей, но очень забавное совпадение,жаль планы не сохранились,приложила бы. Мне нравится формат одноэтажного жилья, он человечный и ближе к земле.
Я за одноэтажные дома, в последнее время многие заказчики просят проекты подобного плана. Многие из них уже имели опыт с 2 этажами либо с мансардой, практически все говорят, что 2 этажом не пользуются, а прибирать и содержать его надо. Поэтому, конечно, если позволяет участок-то 1 этаж.

Оставьте комментарий

Читать похожие статьи