logo

Смета и сроки: 8 млн и 20 месяцев на ремонт «трёшки»

А вы готовы столько потратить на интерьер?

Саша Зайцева
Саша Зайцева

24 мая 2021

Обновлено 6 июня 2021

журналист, редактор

Семья не хотела переезжать из своей старой «трёшки» у метро «Проспект Вернадского» — здесь хороший зелёный район, рядом озеро, Воробьёвы горы. Но интерьер уже морально и физически устарел, поэтому хозяева решились на ремонт. Дизайнер Анна Маркова рассказывает, сколько времени и финансов потребовало полное обновление квартиры.
Смета и сроки: 8 млн и 20 месяцев на ремонт «трёшки»Анна Маркова
ПРОЕКТ
Что: трёхкомнатная квартира в панельном доме на улице Кравченко
Где: Москва
Год реализации: 20182020
Кто здесь живёт: взрослая супружеская пара; дети-студенты живут отдельно, но иногда приезжают погостить
Автор проекта: Анна Маркова, студия Lierne Design
Фотограф: Борис Бочкарев
Декораторы фотосъёмки: Яна Яхина и Полина Рожкова

РАНЕЕ В ТОЙ ЖЕ РУБРИКЕ…
Сроки и смета: 30 000 ₽ и шесть недель — перетяжка кресла
Дано: квартира 83,5 кв.м, в которой семья живёт уже давно. Последний раз ремонт хозяева делали в нулевых, но менять недвижимость не планировали: мечтали жить в прежних любимых стенах, но в новом, комфортном образе.
Задача дизайнеру: спроектировать неоклассический интерьер и выполнить ремонт с авторским надзором. Использовать только качественные натуральные материалы, качественную мебель, текстиль и светильники — чтобы интерьер оставался в цене как можно дольше.

Пожелания по функционалу: отдельная спальня для хозяев, гостевая спальня, большая гостиная и кухня со столовой зоной.
Смета и сроки: 8 млн и 20 месяцев на ремонт «трёшки»Анна Маркова
ЭТАП 1. ПРОЕКТИРОВАНИЕ

17 ноября 2018 — встреча, заключение договора и обсуждение пожеланий.

25 января 2019 — проект готов и утверждён заказчиком. Подписан договор на авторский надзор за реализацией. Стоимость проектирования составила 166 000 рублей, ещё 360 000 — оплата авторского надзора за все время работ. В общей сложности за 20 месяцев вознаграждение дизайнера составило 526 000 рублей.
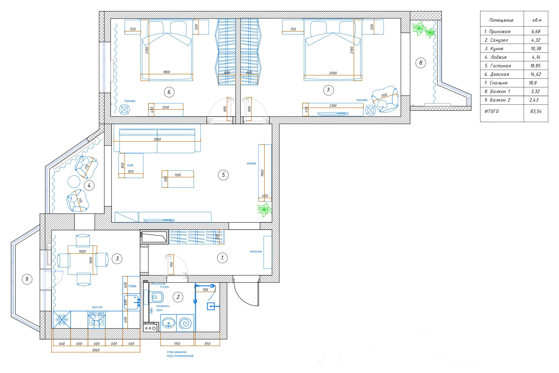
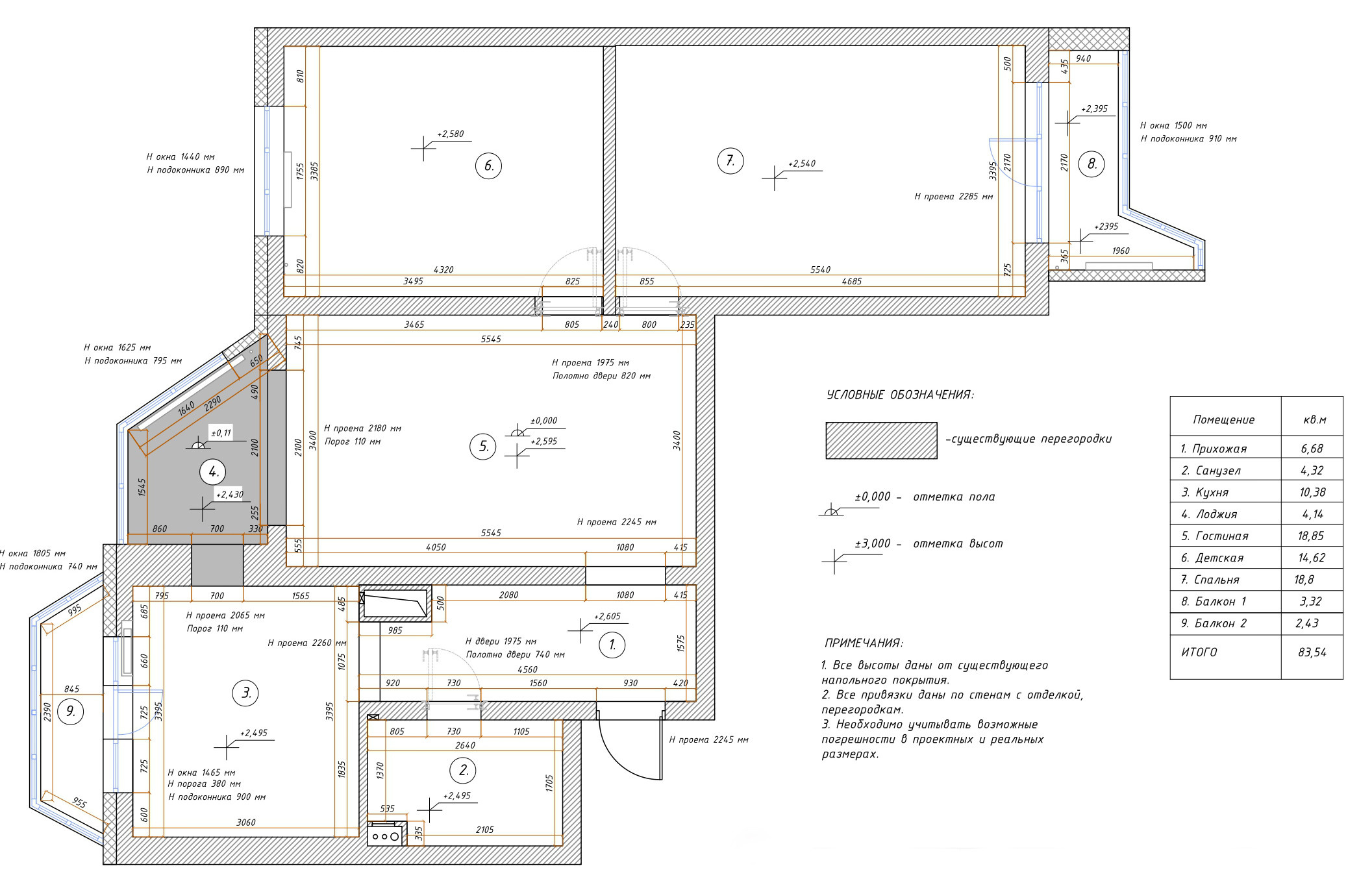
На схеме: планировочное решение, утверждённое заказчиком в конце января 2019 года

————————————
СПРОСИТЕ У ДИЗАЙНЕРА НАПРЯМУЮ
Есть уточняющие вопросы? Хотите заказать свой проект дизайнеру этого интерьера? Свяжитесь с автором проекта в один клик
————————————–
ЭТАП 2. ДЕМОНТАЖ, ЗАМЕНА РАДИАТОРОВ И ОКОН

20 февраля 2019 — июль 2019: 1 600 000 ₽

Заказчик несколько раз менял строительную бригаду, поэтому этап демонтажа старой отделки, замены радиаторов и окон занял около четырех с половиной — пяти месяцев.

Ориентировочно затраты на строительно-демонтажные работы и черновые отделочные материалы составили 1 600 000 рублей (сумма указана примерно, исходя из среднерыночных показателей и метража квартиры).
Смета и сроки: 8 млн и 20 месяцев на ремонт «трёшки»Анна Маркова
ЭТАП 3. РЕАЛИЗАЦИЯ ПРОЕКТА

Август 2019 — апрель 2020: 5 635 920 ₽
«В интерьере нет случайных предметов, всё выбирала я лично, контролируя, чтобы сочеталось. Кухня, шкафы в спальнях, вся мебель для гостиной вместе с диваном и журнальным столиком были изготовлены по моим эскизам на заказ», — рассказывает Анна Маркова.

Общая сумма вложений в отделку, мебель и технику составила 5 635 920 ₽.




Отделочные материалы во всех помещениях: 1 564 445 ₽
Керамогранит для санузла — 154 730 ₽.
Обои — 241 340 ₽.
Инженерная доска — 436 035 ₽.
Карнизы потолочные —154 770 ₽.
Керамогранит для кухни — 41 520 ₽.
Керамогранит для балкона —15 570 ₽.
Плинтус — 43 640 ₽.
Межкомнатные двери — 329 960 ₽.
Входная дверь — 146 880 ₽.
Смета и сроки: 8 млн и 20 месяцев на ремонт «трёшки»Анна Маркова
Свет и электрика во всей квартире: 537 975 ₽
Люстры — 96 875 ₽.
Бра в спальне — 20 020 ₽.
Бра в гостиной — 28 600 ₽.
Бра в ванной — 35 620 ₽.
Светильник в гостиной, в зоне эркера — 37 620 ₽.
Светильник в прихожую — 41 900 ₽.
Люстра в спальне — 77 970 ₽.
Технический свет — 39 460 ₽.
Свет на балконах — 5 380 ₽.
Розетки, выключатели —154 530 ₽.
Смета и сроки: 8 млн и 20 месяцев на ремонт «трёшки»Анна Маркова
Ванная: 280 745 ₽
Мебель для ванной — 95 000 ₽.
Сантехника — 155 745 ₽.
Аксессуары в санузел — 30 000 ₽.
Смета и сроки: 8 млн и 20 месяцев на ремонт «трёшки»Анна Маркова
Кухня: 810 040
Стол — 22 110 ₽.
Стулья — 26 400 ₽.
Кухонный гарнитур — 278 530 ₽.
Столешница — 109 850 ₽.
Кухонная бытовая техника — 243 150 ₽.
Встроенная стиральная машина — 130 000 ₽.
Смета и сроки: 8 млн и 20 месяцев на ремонт «трёшки»Анна Маркова
Гостиная: 1 099 700 ₽
Кресла (обиты тканью, специально подобранной дизайнером) — 129 200 ₽.
Диван на заказ — 132 000 ₽.
Пуф на заказ — 24 000 ₽.
Тумба под ТВ на заказ — 172 500 ₽.
Витрина на заказ — 262 500 ₽.
Комод на заказ — 262 500 ₽.
Журнальный столик на заказ — 117 000 ₽.

«В этом проекте заказчики не стремились сэкономить: для них было важно использовать только качественные материалы и нужные по эстетике позиции мебели, текстиля и других элементов, чтобы интерьер радовал и служил как можно дольше, не требуя обновлений. Хозяева попросили создать фактически фамильное гнездо, надёжное и вневременное», — рассказывает Анна Маркова.
Смета и сроки: 8 млн и 20 месяцев на ремонт «трёшки»Анна Маркова
Спальня: 763 595 ₽
Кресло — 53 000 ₽.
Консоль — 40 000 ₽.
Кровать — 150 360 ₽.
Матрас — 50 215 ₽.
Тумбочки — 151 600 ₽.
Комод — 99 900 ₽.
Шкаф — 218 520 ₽.
Смета и сроки: 8 млн и 20 месяцев на ремонт «трёшки»Анна Маркова
Гостевая спальня: 315 400 ₽
Диван — 89 000 ₽.
Шкаф — 226 400 ₽.

Прихожая: 264 020 ₽
Консоль — 44 160 ₽.
Пуф — 22 540 ₽.
Шкаф —197 320 ₽.

Аксессуары и текстиль:
391 475 ₽
Шторы, покрывала для спальни — 306 800 ₽.
Зеркало для гостиной — 26 450 ₽.
Зеркало для ванной — 27 715 ₽.
Зеркало для прихожей — 30 510 ₽.

ОБЩИЕ ЗАТРАТЫ НА РЕАЛИЗАЦИЮ ИНТЕРЬЕРА: 8 153 395 ₽
Смета и сроки: 8 млн и 20 месяцев на ремонт «трёшки»Анна Маркова
ЭТАП 4. ФИНАЛЬНЫЙ ДЕКОР + ФОТОСЪЕМКА

Май 2020 года — 2 июля 2020
В начале мая проект был окончен, последовала сборка мебели, пошив штор, финальная генеральная уборка.

29 июня повесили шторы, а 2 июля прошла фотосъёмка. «Вместе с декораторами Яной Яхиной и Полиной Рожковой к фотосъёмке мы подобрали картины современных художников, цветочные композиции и другие детали», — рассказывает Анна Маркова.
Смета и сроки: 8 млн и 20 месяцев на ремонт «трёшки»Анна Маркова
БОЛЬШЕ ФОТО…
Смотрите остальные фотографии этого проекта в профиле автора

———————————————
В ВАШЕМ ГОРОДЕ…
Через Houzz можно нанять дизайнера или архитектора в любом городе и стране. Начать поиск специалиста
———————————————

Комментарии 32

Тускло. Бюджет не оправдывает совсем.
Бросились в глаза два момента, которые кажутся случайными и непродуманными: 1.пустое пространство над холодильником; 2 .люстра в коридоре не по центру. .
неоднозначный интерьер. Гостиная спокойная, но скучная и старомодная, неоклассикой это не назовёшь. Местами удачный интерьер, но не везде.

Оставьте комментарий

Читать похожие статьи