Houzz тур: Дом-корабль, исчезающий на фоне неба

Рассекающий синюю глубь гиганский киль и балки-шпангоуты корабля-призрака — так в зеркале бассейна отражается этот дом

Яна Иванченко
Яна Иванченко

18 сент. 2020

Обновлено 30 сент. 2020

Постоянный автор HouzzRU, историк искусства. Интерьерный журналист с 2004 года, работала внештатным автором в журнале SALON и для его приложений «Техномания» и «Декор», писала статьи для журналов «Идеи вашего дома» и Interior Digest, для приложений к журналу «Интерьер+Дизайн» («100% ВАННЫЕ» и «100% КУХНИ»), а также для Elle Decoration (под именем «Антонина Носикова»). . . Несколько лет посвятила дизайн-бюро, занимавшемуся архитектурой и мебелью, где работала заместителем директора, знакома со сложным и увлекательным процессом воплощения проектов в жизнь не понаслышке.

На участке площадью 8 соток студия Chado выполнила сразу несколько задач. Вписала по центру большой дом с площадкой для бассейна. Поставила справа от него, на границе с соседями, беседку с мангалом. И преобразовала ландшафт — кроме плавательного бассейна здесь появился декоративный пруда для рыб с фонтанами-водопадами, которые в вечерней подсветке превращаются в динамические скульптуры.
О проекте
Место: Ростовская область
Размер: 400 кв.м, участок 8 соток
Кто здесь живет: Семья из четырех человек
Архитекторы проекта: архитектурная студия Chado
Фото: Михаил Чекалов

—————————————
В ВАШЕМ ГОРОДЕ…
Через Houzz можно нанять дизайнера или архитектора в любом городе и стране. Начать поиск специалиста
—————————————
ГЛАВНЫЙ ДОМ
Лаконичная двускатная крыша перекрывает глубокую террасу со стороны садового фасада дома. Перед ним — зеркало переливного бассейна. С приватной стороны участка дом полностью открыт природе. Но строгий, почти суровый облик дома со стороны улицы словно декларирует: «Мой дом — моя крепость».
«Главная роль отведена дикому колотому камню темно-красного тона. Он используется в интерьере и на фасаде, пронизывая кровлю и витражи. Из такого же камня выполнен двусторонний камин, который объединяет две зоны — столовую и гостиную», — рассказывает автор проекта —учредитель, главный архитектор и руководитель архитектурной студии Chado Евгений Задорожний.

СРАВНИТЬ…
Houzz тур: 14 комнат на единственном этаже — дом под Ростовом
Площадка вокруг дома выложена серой и бежевой брусчаткой с шероховатой состаренной поверхностью — для усиления декоративного эффекта здесь сочетали укладку «елочкой» у входа в дом с обычной прямой укладкой в зоне перепада уровня высот и по краю площадки. Облицовочный кирпич взяли аналогичный, «играющий» по фактуре и по тону, ручной формовки.

ЧИТАЙТЕ ТАКЖЕ…
Мощение на участке: По какому плану лучше действовать
Чтобы входная дверь на строгом боковом фасаде смотрелась не так сурово, по краям проем визуально расширили — сделали вставки из стекла в мелком переплете рамы.
Если со стороны улицы и входа в дом фасад больше напоминает Англию, то в садовом фасаде с окружающим его геометричным ландшафтом проявляется тема современной американской виллы на берегу Атлантического океана — массивные боковые стены дома отделаны кирпичом, но в белом цвете. Местный ростовский колорит придает облицовка красным камнем — в центральной стене, выступающей торцом посреди полностью остекленного фасада, скрывается дымоход камина. Почти квадратные окна-«витражи» у террасы сдвигаются к наружным стенам, объединяя пространство дома и сада.
Фасады дома и двор: кирпич, черепица, брусчатка «Брикфорд»; витражные окна Schueco

Обратите внимание: в 2016 году в комментариях под статьей о доме по проекту студии Chado с аналогичным «витражным» фасадом появилось много вопросов: как дом с таким большим остеклением выдерживает сильные местные ветра? Ответ — в архитектурном решении фасада: скат крыши дома вынесен далеко вперед, закрывая широкий уличный лаунж, террасу перед стенами-«витражами» кухни и гостиной. Вынесенная вперед по центру фасада стена выполняет роль «волнореза» для потоков ветра. А качество современного витражного остекления надежно защищает от сквозняков.
План первого этажа

Существенный объем первого этажа занимают гостиная и кухня, открытые до конька крыши и разделенные терракотовой стеной с камином. Пол здесь почти на метр глубже, чем в светлом холле при входе в дом и тех комнатах, что расположены слева от входа — в кабинете и гостевом санузле.
На фото: вид из гостиной на бассейн летом. Ниже — тот же вид зимой
ГОСТИНАЯ
Интерьер, соединенный прозрачным фасадом с природой, построен на контрасте брутальности и уюта. Красному песчанику с рваным краем, которым облицована стена с камином, противопоставлены белые классические филенки деревянных фасадов встроенной мебели и светлые мягкие кресла и диван в бархатной обивке.
Обратите внимание: рядом со стеклянной стены гостиной фасады шкафов не глухие, а из полупрозрачного стекла — так в комнате отражается еще больше естественного света, и переход от природы за окном к уютной домашней обстановке выглядит более плавным.
Над длинным окном гостиной, выходящим на забор, сделали встроенную систему хранения с полками глубиной 60 см, вровень с краем каменного подоконника.
В зоне отдыха с большим угловым диваном на пол поверх дубового паркета положили рельефный серый ковер из шерсти и шелка — в тон к мрамору журнального стола. Широкий столик с мраморной столешницей со скругленными углами сделали на заказ.
В гостиной: напольная плитка Porcelanosa; корпусная мебель D&D; диван Flexform; черное кресло ​Poliform; «ушастое» кресло Sevensedie; журнальный стол SLС; ковер «Обоинн&Шторц»; декор AP Home
Высокий портал двустороннего камина отделали черным стеклом. Сквозь топку виден фрагмент кухни. Над топкой и в кухне, и в гостиной — широкий экран ТВ-плазмы.
КУХНЯ
Пространство кухни разделено на две зоны: обеденную, у выхода на террасу, с мебелью нейтрального цвета, и контрастную черно-белую рабочую часть. В рабочей зоне кухни предусмотрено место, где тоже можно отдохнуть и перекусить — на бирюзовых барных креслах за стойкой кухонного «острова».

Обратите внимание: с другой стороны столешницы «острова» расположена мойка.
У раздвижного стеклянного окна на кухне — выхода в сад — использован аналогичный прием, что и в гостиной: фасады примыкающей к нему мебели сделаны из полупрозрачного стекла.

Потолок над обеденной зоной кухни — такой же, как снаружи над террасой: скошенный, с открытыми балками кровли. Над рабочей зоной кухни на втором этаже расположена одна из спален — в этой части потолок ровный (отсюда и разница в стилистике фасадов кухни, классических в рабочей зоне и более современных в обеденной).
Для рабочей поверхности, фартука и столешницы острова выбрали контрастный черный гранит Black Cosmic, добытый на карьере в Бразилии. У этого камня очень красивый рисунок серебристых и золотистых прожилок кварца и слюды.
На кухне: кухонная мебель Илья Сидоренко; мебельные ручки Buster + Punch; столешницы из натурального камня SLС; барные кресла Cattelan Italia; кухонная техника Gaggenau; электроустановочные изделия (розетки, выключатели) АВВ; декор AP Home
Кухня граничит с широкой винтовой лестницей, ведущей на второй этаж. Ее конструкция имеет белую литую оболочку из бетона. С ним контрастирует кованное ограждение лестницы.
Светлое дерево ступеней лестницы, сделанных из массива дуба, перекликается по цвету с золотистым стеклом в кольцах потолочных светильников в холле, кухне и гостиной.
В лестничном холле первого этажа: паркетная доска Siberian Forest; кованная ограда лестницы «Металлдекор»; кресло Sevensedie
КАБИНЕТ
Кабинет расположен слева от стеклянных дверей холла. «Яхтенный» характер его интерьеру придает теплый цвет сплошной ореховой отделки. На потолке — декоративные балки, тоже в отделке орехом. Даже жалюзи на большом окне кабинета подобраны деревянные, в цвет мебели.
В кабинете: диван Desiree; кресло Sevensedie; стулья BoConcept

Полка, встроенная в систему хранения в кабинете, отделана мрамором — из светлого мрамора сделаны и столешницы журнальных столиков в кабинете. 6 стеклянных светильников-эллипсоидов с золотой спиральной нитью освещают вечером сверху рабочее место теплым рассеянным светом.
ГОСТЕВОЙ САНУЗЕЛ
Вход в санузел первого этажа — рядом с кабинетом, у лестницы. Пол и стены отделали крупноформатным керамогранитом под полированный песчаник. Массивная столешница под окном выполнена из акрилового камня. Справа от окна на стене за раковиной — зеркало от столешницы до потолка. Слева — закрытые и открытые секции для хранения. Пространство слева за дверью в санузел отвели под душевую зону.
В гостевом санузле: раковина, смеситель, подвесной унитаз Noken Porcelanosa Bathrooms; инсталляция Tece; полотенцесушитель «Сунержа»; поставщик сантехники и керамогранита салон «Бомонд»
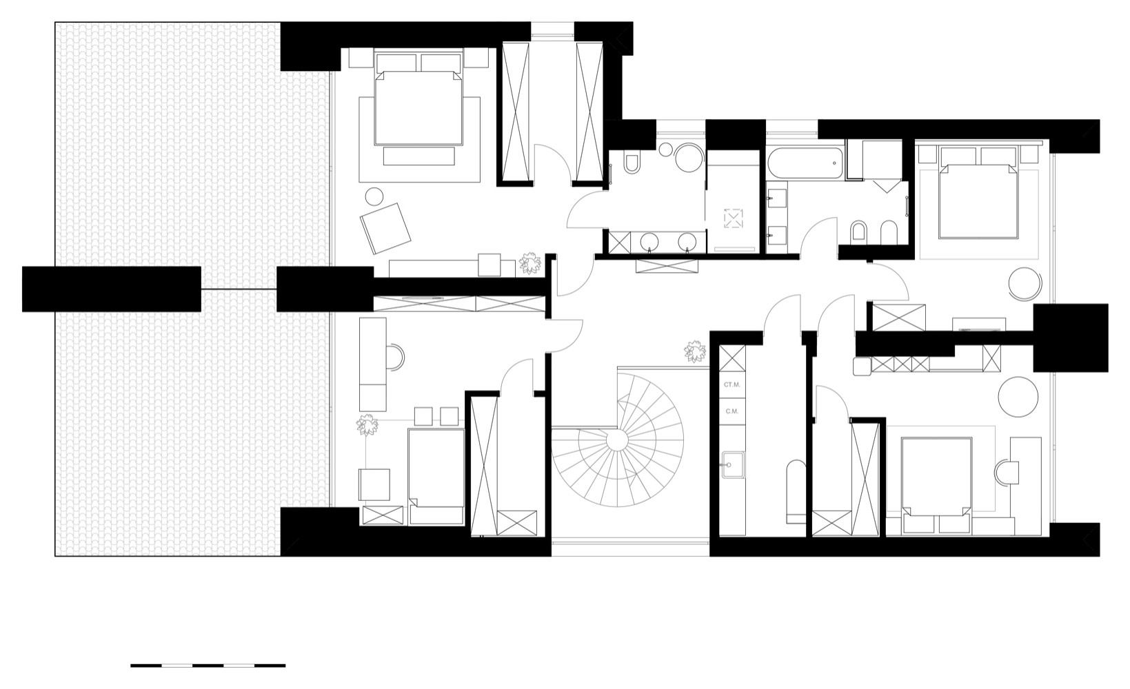
План второго этажа
ХОЛЛ ВТОРОГО ЭТАЖА
На втором этаже расположены приватные спальни. Пол, как и на первом, выложен щитовым дубовым паркетом, покрытым маслом. Плоскости стен разбиты крупными филенками.
В холле второго этажа: межкомнатные двери «Софья»; консоль Deco, LCI Decora Italia; зеркало Eichholtz

Примечание редакции: приватные помещения второго этажа не публикуются по просьбе владельцев дома
БЕСЕДКА
В беседке площадью 28 кв.м устроен мангал с небольшой летней кухней. Рабочую поверхность кухни и мангал целиком отделали плитами из бетона с мраморной крошкой.
Промежутки между опорными столбами кухни закрыли от осадков безрамным остеклением.
В беседке: безрамное остекление Schueco; уличная мебель Varaschin
В зоне у бассейна: керамогранит Mirage; оборудование бассейна Vimhome; уличная мебель Varaschin

БАССЕЙН
Переливной бассейн глубиной 1,5 м и террасу вокруг него выложили серым итальянским керамогранитом.

ЛАНДШАФТ
Вдоль забора, под стеной, отделанной диким красным камнем, сделали небольшой прямоугольный пруд. На стене установили каскад декоративных фонтанов-водопадов с вечерней подсветкой. С двух сторон от пруда установили итальянские светильники из светодиодных трубок, повторяющие по форме очертания растущего рядом вертикального можжевельника и туи.
План посадок на участке разработала дендролог Екатерина Мезинова.
Снаружи у бассейна и пруда: светильники Аrtemide; шезлонги Varaschin
В посадках вдоль забора скомбинированы кустарники и разные по форме и цвету хвойные — сосна черная (Pinus nigra), можжевельники скальные (Juniperus scopulorum), туи западные (Thuja occidentalis) шаровидной и колоновидной формы. У беседки поместили выразительную вертикаль — плакучую лиственницу (Larix) на штамбе и рядом с ней вариегатную вейгелу (Weigela).
На фото: под стеной дома посадили кусты самшита (Buxus) и стриженную карликовую сосну в штамбовой форме

СМОТРИТЕ ТАКЖЕ…
Все 61 фото этого проекта в альбоме студии Chado

Таймлапс-видео реализации этого проекта
_________________________

ОБ АВТОРАХ ПРОЕКТА…
Перейдите на страницу архитектурной студии Chado, чтобы изучить другие работы в портфолио или заказать собственный проект
У ВАС ЕСТЬ ДЛЯ НАС ПРОЕКТ
Загрузите съёмку в свой профиль на Houzz, отправьте ссылку с кратким описанием на editorial@flatica.ru

Для справки: Какие объекты мы публикуем

Комментарии 26

tavar65

1 г.

Роскошный дом. Жаль, что участок маловат и вид из панорамных окон на забор или улицу.
Дом потрясающий, ему бы соответствующую территорию участка. На 8 сотках для такого великолепия маловато простора. Окружающие дома и заборы его немного зажимают.
vera_kuzn, итальянские уличные светильники: https://www.artemide.com/en/subfamily/2080152/reeds-outdoor

Оставьте комментарий

Читать похожие статьи