logo

Houzz-тур: Большая дача в горах на Кубани

Прежняя дача не устраивала хозяина. Он не стал ее сносить, а достроил. Получилось шикарно

Houzz Россия
Houzz Россия

6 апр. 2020

Обновлено 10 июня 2020

Houzz-тур: Большая дача в горах на КубаниЕкатерина Ловягина
Любой дизайнер скажет, что сделать проект с нуля проще, чем реконструировать уже существующую постройку. Новые габариты дома, конструктив внешних стен и кровли уже были продуманы, когда хозяин дачи обратился за проектом интерьеров к Екатерине Ловягиной по рекомендации приятельницы — для неё дизайнер сделала до этого большой дом.

О проекте
Место: частный дом в Краснодарском крае, под Апшеронском
Размер: 338 кв.м, из них дом — 290 кв.м, терраса — 48 кв.м
Год: 2018
Кто здесь живет: семейная пара с двумя сыновьями и старшими членами семьи
Дизайнер проекта: Екатерина Ловягина, студия Factura
Фото: Михаил Чекалов
Houzz-тур: Большая дача в горах на КубаниЕкатерина Ловягина
Екатерина Ловягина, руководитель дизайн-студии «Фактура» (шоурума и архитектурного бюро), обладатель премии Best of Houzz 2017, 2018 и 2020 года в номинации «Дизайн» живет и работает в Краснодаре. Когда она приступила к работе, перестройка дачи шла вовсю. Во время реконструкции дизайнер и хозяева сдружились — дача родителей Екатерины находится всего в нескольких километрах, за двумя горами отсюда.
Houzz-тур: Большая дача в горах на КубаниЕкатерина Ловягина
На фото: стеклянная дверь в сауну из зоны релакса

Ядро старой дачи, Г-образной в плане, — там, где расположена сауна и бассейн, а также спальни первого и второго этажей. Лестница в гостиной сохранилась от прежней постройки, её заказчик просил не менять. А вот большая кухня и терраса с мангалом, двусветная гостиная с огромным окном и сквозной камин — всё это появилось в процессе реконструкции.
Houzz-тур: Большая дача в горах на КубаниЯна Иванченко
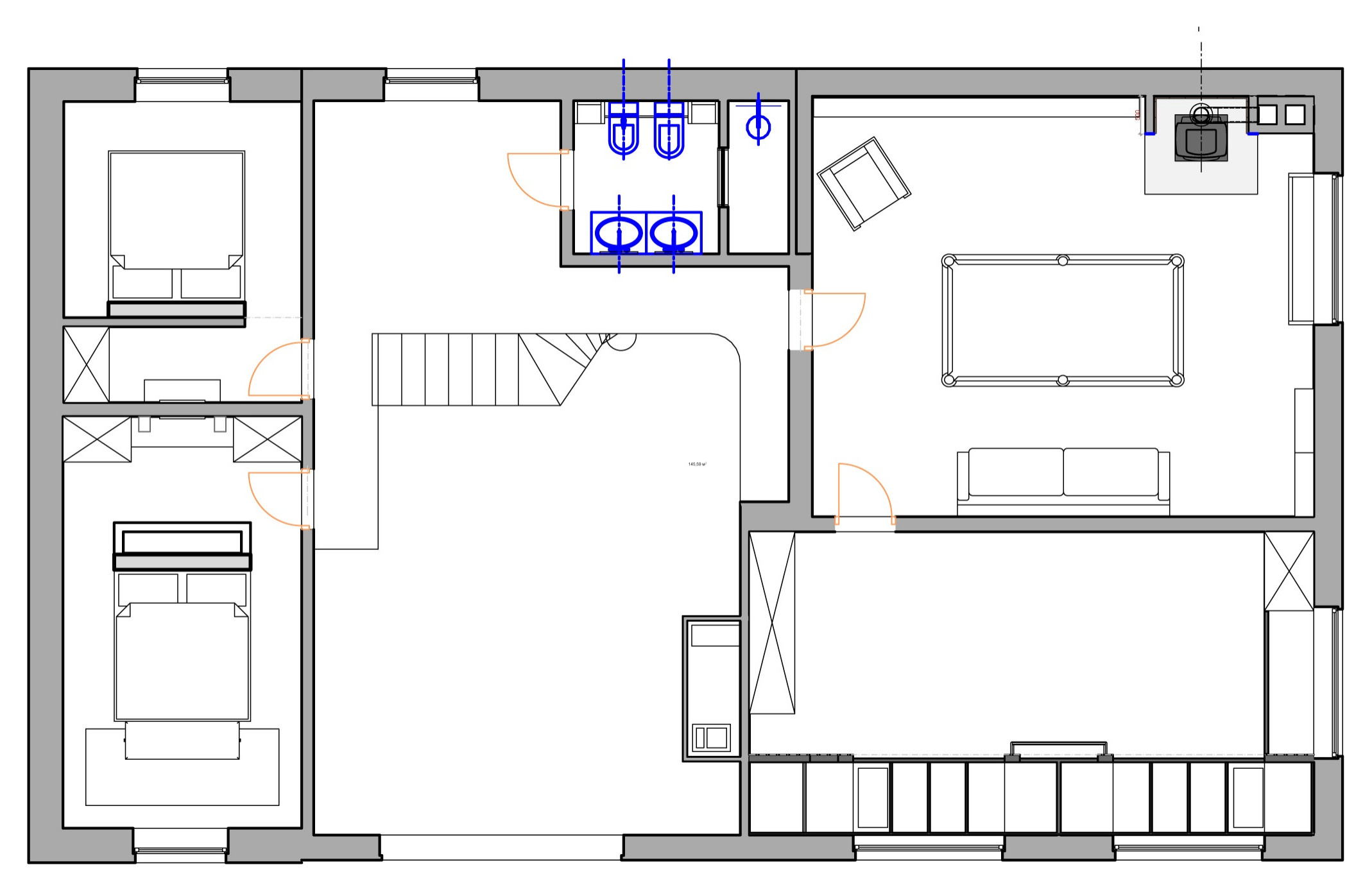
План первого этажа

ПЛАНИРОВКА
У входа в дом — вместительная гардеробная. Она была спланирована еще до реконструкции. От прихожей открывается сразу вся гостиная, самое большое помещение дома. За лестницей, включенной в ее интерьер, расположены две спальни — гостевая и родительская, для старшего поколения семьи.


———————————————
В ВАШЕМ ГОРОДЕ…
Через Houzz можно нанять дизайнера или архитектора в любом городе и стране. Начать поиск специалиста
———————————————
Houzz-тур: Большая дача в горах на КубаниЕкатерина Ловягина
На фото: дверь слева от антикварного буфета ведет в зону релакса с сауной и бассейном. Справа — проход на кухню из гостиной
Houzz-тур: Большая дача в горах на КубаниЯна Иванченко
Напротив захода на лестницу — дверь в коридор. За ней расположен туалет и душевая, бассейн, зона релакса и сауна. Между гостиной и кухней дверей нет. С обеих сторон от камина, разделившего эти два помещения, — проход в кухню с кладовой и на просторную веранду с мангалом.

ДВУСВЕТНАЯ ГОСТИНАЯ
Старую деревянную лестницу очистили от прежней краски и заново покрыли белой эмалью. Пол всех общественных помещений первого этажа выложили керамогранитом темно-серого и сливочно-желтого цвета.
Houzz-тур: Большая дача в горах на КубаниЕкатерина Ловягина
Антрацитовый цвет галереи второго этажа разделил стены гостиной надвое — между светлой нижней и темной верхней частью Екатерина пустила широкий карниз серого цвета.

Темно-коричневое дерево дверей в гостиной поддержал большой журнальный стол и резной антикварный буфет — его заказчик нашел в антикварном магазине в Краснодаре.
Houzz-тур: Большая дача в горах на КубаниЕкатерина Ловягина
Проблема и решение: Балочный потолок — гордость автора проекта. На самом деле, его необычного цвета и состаренной поверхности добились не сразу. Мастер, ответственно подошедший к исполнению всех работ по дереву, покрыл потолок плотным слоем желтого лака. Екатерине пришлось придумывать, как спасти интерьер: «Я договорилась со столярной мастерской, которая занималась отделкой камина. Они поставили леса и стали исправлять потолок. Это был сложный рецепт из простых материалов: смывка и оттеночная морилка».
Houzz-тур: Большая дача в горах на КубаниЯна Иванченко
На фото: слева от лестницы в гостиной — две двери в спальни, для родителей хозяина и для гостей

Под лестницей встал антикварный голландский сундук XIX века с простой выразительной резьбой, его Екатерина заказала через интернет-магазин.
Houzz-тур: Большая дача в горах на КубаниЕкатерина Ловягина
Все фотографии, которыми дизайнер украсила оба этажа дома — это работы её мамы, фотографа и журналиста Валентины Зенковой. На них цветы, растения, насекомые — все они были сняты в этих же краях, поэтому Екатерина выбрала именно эти кадры из коллекции.
Houzz-тур: Большая дача в горах на КубаниЯна Иванченко
В гостиной: краска Benjamin Moore; керамогранит Johnson Tiles; напольная метлахская плитка Winckelmans; стол и комод Moonzana; диваны «Филдс»; ковер ИКЕА; фотографии Валентины Зенковой


Houzz-тур: Большая дача в горах на КубаниЕкатерина Ловягина
Для обивки двух диванов дизайнер подобрала натуральный лен нежного оттенка. Комод и сундук дополнила керамикой ручной работы и изделиями из металла.
Houzz-тур: Большая дача в горах на КубаниЕкатерина Ловягина
СКВОЗНОЙ КАМИН
Екатерина предложила заказчику сделать высокий камин, упирающийся в потолок (высота гостиной — 5,5 м) и отгораживающий кухню: «Я считаю, без камина в загородном доме невозможно! Хотелось сделать камин внушительным».

Туннельную топку со стороны гостиной отделали плиткой цвета спелой вареной кукурузы. Майоликовое панно заключили в мраморный портал с мощным карнизом.
Houzz-тур: Большая дача в горах на КубаниЕкатерина Ловягина
Сквозной камин: каминная топка Schmid; деревянная отделка камина — столярная мастерская Naoba2; мрамор и майолика Ceramica Elias, «Фактура»

Дымоход декорировали старыми досками, тонированными в цвет просмоленного дерева, — они собраны по местным деревням Краснодарского края и получили тут вторую жизнь.
Houzz-тур: Большая дача в горах на КубаниЕкатерина Ловягина
Со стороны кухни пространство над топкой отделали белой плиткой в раме из кирпича. Справа от топки сделали вертикальную дровницу до самого потолка. Высоту топки Екатерина рассчитала так, чтобы, сидя за столом на кухне, можно было смотреть на огонь.
Houzz-тур: Большая дача в горах на КубаниЕкатерина Ловягина
КУХНЯ-СТОЛОВАЯ
Высота потолка в кухне — 2,8 м. В центре кухни — огромный стол для семейных застолий. Рабочую часть кухни выставили вдоль двух стен: часть с мойкой встала под окном, часть с плитой и вытяжкой — ближе к камину. Итальянскую кухню и штучный стол молодой московской компании приобрели в столице. Поставкой кухни, всей плитки для дома, светильников, а также сантехники и мебели для ванной занималась «Фактура», собственная студия Екатерины.
Houzz-тур: Большая дача в горах на КубаниЕкатерина Ловягина
На чем сэкономили: центральную верхнюю часть кухни — каркас под вытяжку, встроенный между двумя высокими зелеными шкафами — заказали отдельно, в Краснодаре. Отказавшись от оригинальной итальянской детали кухни, Екатерина смогла сэкономить заказчику минимум 2 тысячи евро.
Houzz-тур: Большая дача в горах на КубаниЕкатерина Ловягина
На кухне: напольная метлахская плитка Winckelmans; керамогранит Johnson Tiles; кухня L’Ottocento; светильники Ilfanale; плитка на фартуке и вокруг окна Doremail; стол «Оптимус Прайм» от «Д Дерево»; откатная дверь в кладовку Naoba2

Широкое окно кухни забрали в декоративную раму из плитки, расписанной вручную. Навесную «амбарную» дверь в кладовку сделали на заказ из старых досок на местном краснодарском производстве. Рядом с ней — стеклянная дверь на веранду.
Houzz-тур: Большая дача в горах на КубаниЯна Иванченко
ВЕРАНДА С МАНГАЛОМ
Веранда для барбекю стала продолжением кухни — с удобной рабочей поверхностью, оснащенной своей мойкой. В отделке мангала и пространства под столешницей Екатерина использовала ту же плитку, что и на домашней кухне. По невысокому фартуку полосой пустила узорчатую майолику.
Houzz-тур: Большая дача в горах на КубаниЕкатерина Ловягина
На торце топки выложила из нее квадратное декоративное панно в раме. Устойчивую к осадкам плетеную мебель для веранды выбрала в цвет пола, немаркий серый.

БОЛЬШЕ ФОТО…
49 кадров этого проекта в альбоме Екатерины Ловягиной
Houzz-тур: Большая дача в горах на КубаниЕкатерина Ловягина
СПА-ЗОНА
Потолок и стены в зоне релакса и у бассейна покрыли экологичной водостойкой штукатуркой. Конструктивный выступ, проходивший по потолку, Екатерина превратила в обрамление зоны отдыха: соединила его широкой полосой деревянной отделки со стойкой между бассейном и зоной релакса.
Houzz-тур: Большая дача в горах на КубаниЯна Иванченко
В спа-зоне: мозаика Kerion, «Фактура»

Сам бассейн тоже подвергся реконструкции, хотя размеры чаши остались прежними. Екатерина отделала купель темно-зеленой португальской мозаикой, этот темный цвет делает чашу визуально глубже.
Houzz-тур: Большая дача в горах на КубаниЯна Иванченко
С дивана в зоне отдыха можно любоваться огнем — диван смотрит на топку печи, которая нагревает камни в сауне. Дрова в нее закладываются снаружи, из зоны релакса, так что Екатерина специально подобрала модель со стеклянной дверцей.
Houzz-тур: Большая дача в горах на КубаниЕкатерина Ловягина
САУНА
В сауне за реечными скамьями сделали эффектную подсветку. Переход от верхней скамьи к потолку Екатерина задумала плавным, дугоообразным — деревянная конструкция от пола до потолка представляет собой единое целое.
Houzz-тур: Большая дача в горах на КубаниЯна Иванченко
САНУЗЕЛ
Та же зеленая мозаика, использованная в отделке бассейна, стала фоном для подвесной сантехники в туалете. Остальные стены оставлены белыми, как в типичном доме-мазанке.
Houzz-тур: Большая дача в горах на КубаниЕкатерина Ловягина
Стены намеренно имеют неровности и следы рук мастера, такой «живой» характер поверхности добавляет отделке местный колорит, напоминая о мазанках.
Houzz-тур: Большая дача в горах на КубаниЕкатерина Ловягина
ДУШЕВАЯ
Слева в душевой, отделанной темно-серой мозаикой, есть удобная скамья — плавно изогнутое сиденье имеет подогрев: «Получился мини-хаммам», — комментирует Екатерина.
Houzz-тур: Большая дача в горах на КубаниЕкатерина Ловягина
ГОСТЕВАЯ СПАЛЬНЯ
Обе спальни первого этажа дома сделали близкими по дизайну: светло-голубые стены и на их фоне акцентная мебель в той же гамме. Для декора дизайнер использовала расписную керамику.
Houzz-тур: Большая дача в горах на КубаниЯна Иванченко
План второго этажа
Houzz-тур: Большая дача в горах на КубаниЯна Иванченко
ХОЛЛ ВТОРОГО ЭТАЖА
На втором этаже у выхода с лестницы еще в прежней планировке были две спальни — хозяйская и гостевая. В квадратном холле рядом с галереей Екатерина устроила зону отдыха. Насыщенно-серые стены стали отличным фоном для постеров, сделанных на основе коллекции работ Валентины Зенковой.
Houzz-тур: Большая дача в горах на КубаниЕкатерина Ловягина
В дальней части галереи — дверь в бильярдную, через которую попадаешь в спальню мальчиков (этого помещения до реконструкции не было). В холле второго этажа есть также еще один санузел со своей душевой.
Houzz-тур: Большая дача в горах на КубаниЕкатерина Ловягина
ХОЗЯЙСКАЯ СПАЛЬНЯ
Большая кровать в спальне развернута к окну. За ней — архитектурная ширма по размеру изголовья, отделяющая зону гардеробной с состаренными комодами, подобранными в цвет балочного потолка.
Houzz-тур: Большая дача в горах на КубаниЕкатерина Ловягина
Обратите внимание: ширма имеет удобную нишу, в которой на высоте изголовья сделана полка из натурального дерева.
Houzz-тур: Большая дача в горах на КубаниЯна Иванченко
В санузле: тумба под раковины d-Bodhi; бра Ilfanale

САНУЗЕЛ ВТОРОГО ЭТАЖА
Мебель в санузле сделана из старого дерева. Напротив умывальника с двумя каменными раковинами закрепили подвесную сантехнику, унитаз и биде с бронзовыми смесителями. По краям от них поставили два узких открытых стеллажа.
Houzz-тур: Большая дача в горах на КубаниЕкатерина Ловягина
Душевую отделали мелкой желтой плиткой-кабанчик. Проем, ведущий во влажную зону, решили не закрывать ничем — ширина стенок у душа достаточная, чтобы брызги не летели в основное помещение.
Houzz-тур: Большая дача в горах на КубаниЕкатерина Ловягина
СПАЛЬНЯ МАЛЬЧИКОВ
Вдоль стены с небольшим окном, по эскизу Екатерины устроены полати — двухъярусное место для сна, рассчитанное на четверых. Это еще одна отсылка к традиционной горской культуре, но в современном прочтении.

Кроме двух хозяйских сыновей здесь часто гостят двое племянников, остаются с ночевкой и друзья мальчиков: «Да и родители тоже приходят сюда полежать-почитать. Комната стала очень популярной у всей семьи и друзей», — говорит Екатерина. В изножье и изголовье кроватей есть места для хранения. На полу — джутовый ковер и большие пуфы-мешки.
Houzz-тур: Большая дача в горах на КубаниЕкатерина Ловягина
БИЛЬЯРНАЯ
Помещение бильярдной — проходное, справа в углу — дверь, ведущая в комнату мальчиков. Вдоль стены поставили большой шкаф-библиотеку индонезийского производства, заказанный в интернет-магазине. Старый бильярдный стол Екатерина переобила сукном оливкового цвета.
Houzz-тур: Большая дача в горах на КубаниЕкатерина Ловягина
В углу у окна поместили еще одну небольшую печку — винтажную канадскую «буржуйку». Для безопасности вокруг нее выстроили кирпичную нишу, отделанную на торцах рельефными изразцами. На полу у топки выложили небольшой защитный ковер из метлахской плитки. Подоконники в бильярдной и в комнате мальчиков превратили в широкие реечные скамьи для отдыха.
Houzz-тур: Большая дача в горах на КубаниЕкатерина Ловягина
В бильярдной: метлахская плитка Winckelmans; керамическая плитка H&E Smith; библиотека из массива манго «Артефакт»; кресло Secret De Maison; столики Zara Home, текстиль ИКЕА; светильники Ilfanale; фотографии Валентины Зенковой
ОБ АВТОРЕ ПРОЕКТА…
►Перейдите на страницу Екатерины Ловягиной, чтобы изучить другие работы в портфолио дизайнера


________________________

У ВАС ЕСТЬ ДЛЯ НАС ПРОЕКТ…
Загрузите съёмку в свой профиль на Houzz, отправьте ссылку с кратким описанием на editorial@flatica.ru

Для справки: Какие объекты мы публикуем

Комментарии 31

в гостинной пол с потолком сочетается, а лестница и стены верхнего этажа выпадают.стены могли бы быть, как на первом, а лестница - голубоватая, светло-серая или зеленоватых тонов дымчатых. . много эклектичных сочетаний, современная фотография не смотриться. двухярусные кровати - пережиток из ограниченной площади квартир, можно больше спален было слелать, они всё равно понадобяться. . в остальном нравиться. . талет на втопом этаже слишком современный, луяше было бы придерживаться одного стиля.
Polina Li

5 л.

Очень достойная работа. Есть и промахи, как без этого.. Уже упомянутая плитка цвета спелой кукурузы - смотрится как бы это сказать.. бюджетно что-ли. Может, вживую по-другому выглядит? . И еще удивили масенькие круглые прикроватные столики с цветочным горшком и вазой. А книжку некуда положить. )
отличная работа! респект дизайнеру)! Дорого, стильно, ничего лишнего и уютно) потолок - да, просто супер - стоил усилий... снять лак - ужас((( молодцы

Оставьте комментарий

Читать похожие статьи