Houzz тур: Апартаменты в духе русского авангарда

С панорамными окнами, кабинетом у входа в квартиру и необычной перегородкой вместо шторки в ванной

Евгения Назарова
Евгения Назарова

30 авг. 2022

Обновлено 4 окт. 2022

Постоянный автор Houzz, интерьерный журналист

Houzz тур: Апартаменты в духе русского авангардаPetr Grigorash
Хозяйка квартиры много времени проводит в Европе, а свою московскую квартиру хотела видеть, наоборот, с русскими нотками. Авторы проекта Пётр Григораш и Дарья Блаженкова предложили использовать мотивы русского авангарда с характерной для 1920-х простотой линий и палитрой. Правда, открытые цвета заменили чуть более припылённой гаммой, которая больше соответствует современной архитектуре.
Houzz тур: Апартаменты в духе русского авангардаPetr Grigorash
О ПРОЕКТЕ
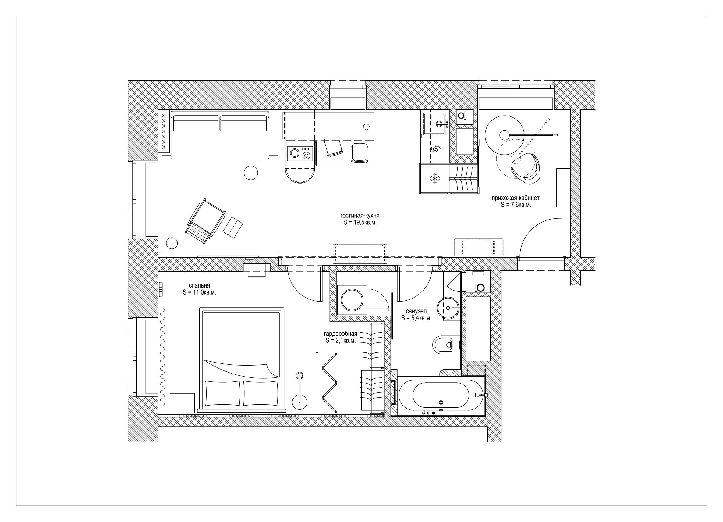
Место: Москва, ЖК «Савеловский Сити»
Размер: 47 кв. м
Кто здесь живёт: молодая девушка
Авторы проекта: Пётр Григораш, Дарья Блаженкова
Фото: Евгений Кулибаба, стиль – Людмила Кришталева
Houzz тур: Апартаменты в духе русского авангардаPetr Grigorash
ПРИХОЖАЯ
В интерьере использовали приёмы, характерные для эпохи авангарда: нейтральную гамму с яркими акцентами и мебель простых геометрических форм. Стены выкрасили в базовый белый цвет, а для отделки пола по всей квартире, включая входную зону, использовали паркет из мелких плашек в индустриальной стилистике. Материал подошёл по толщине под уже установленную застройщиком входную дверь и отлитую стяжку — удалось избежать дополнительных строительных работ и, как следствие, сэкономить.

Банкетка и зеркало Lulu Space
Houzz тур: Апартаменты в духе русского авангардаPetr Grigorash
КАБИНЕТ
Рядом со входной зоной расположили… кабинет с круглым столом. За счёт этого нетрадиционного решения в рабочей зоне удалось создать приватную обстановку. Светильник на потолке – с функцией поворота: даже если двигать стол, свет всегда “догоняет” центральную часть столешницы.

Калошница из ИКЕА расписана по мотивам авангарда Александром Мершиевым; потолочный светильник Wishnya; картина Олега Григораша
Houzz тур: Апартаменты в духе русского авангардаPetr Grigorash
Идея и решение: стену рядом с кабинетом декорировали зеркалом от пола до потолка, которое удваивает количество естественного света и делает помещение просторнее.

Круглый стол Delo Design; винтажный стул из Repeat Story перетянут черной тканью
Houzz тур: Апартаменты в духе русского авангардаPetr Grigorash
Houzz тур: Апартаменты в духе русского авангардаPetr Grigorash
КУХНЯ-ГОСТИНАЯ
Небольшую кухню организовали в две параллельных линии, с островом, и изготовили из фанеры под белым маслом.
Холодильник встроили в колонну: его расположение выдает перфорация плинтуса, которую сделали для вентиляции. Ещё одну перфорированную панель можно увидеть под самым потолком: за добором установлен короб, уходящий в вентиляционный стояк дома.
Houzz тур: Апартаменты в духе русского авангардаPetr Grigorash
Идея и решение: Соединительным элементом между двумя линиями гарнитура стала столешница в отделке шпоном дуба, которая одним краем опирается на остров. Её можно отодвинуть от окна – получится высокий обеденный стол, за которым можно разместить до пяти гостей. Все остальные столешницы на кухне, которые могут быть использованы для приготовления пищи, изготовлены из искусственного камня.

Полубарные стулья Artu
Houzz тур: Апартаменты в духе русского авангардаPetr Grigorash
В гостиной: диван Innovation Living; винтажное кресло и металлическая журнальница L’appartement; керамические столики Ceramum; ковёр Kultura Kovrov; подушки Chiaro Home; картина с лилиями Олега Григораша
Houzz тур: Апартаменты в духе русского авангардаPetr Grigorash
Двери в спальню и санузел важно было сделать незаметными, так как проёмы выходят в гостиную. Для этого авторы проекта использовали двери под покраску, без внешних наличников, и отказались от плинтуса: стык паркета со стеной оформили через пробку. Чтобы белая стена, идущая через всю гостиную, при этом не казалась слишком монотонной, Пётр и Дарья придумали заключить центральную часть в голубой портал.

Комод изготовлен по эскизам архитекторов; ваза L’appartement; графика Елены Сапрыкиной; керамические скульптуры Екатерины Пигановой
Houzz тур: Апартаменты в духе русского авангардаPetr Grigorash
СПАЛЬНЯ
Строгость линий в спальне разбавили полукруглой спинкой кровати и итальянским торшером с изгибом: он поддержал основной акцентный цвет интерьера.

Кровать Vitset; торшер Stip; круглая вышивка Анны Плотниковой; керамический декор L’appartement; декоративные подушки Chiaro Home; плед и покрывало Enere; шторы изготовлены в студии Виктории Малышевой
Houzz тур: Апартаменты в духе русского авангардаPetr Grigorash
Идея и решение: Из-за того, что в гостиной спроектировали портал, в спальне появилась декоративная ниша. Её использовали для постамента с декором. «Благодаря этому необычному и, казалось бы, необязательному элементу спальня стала просторнее и интереснее — теперь она не воспринимается просто как место для сна», — рассказывают авторы проекта.
Houzz тур: Апартаменты в духе русского авангардаPetr Grigorash
ВАННАЯ
В ванной комнате не хотелось использовать традиционную стеклянную шторку, но помещение требовалось защитить от брызг. Тогда часть ванны огородили перегородкой, покрытой ярким микробетоном. Ещё один элемент из микробетона установлен между ванной и стеной: он появился, чтобы вписать ванну типового размера, а также чтобы полотенцесушитель, который расположен над этим элементом, не мешал комфортно лежать в ванне.

Плитка Vogue Confetti; раковина Ideal Standard; смесители Bugnatese


———————————————————
ЭТО БЕСПЛАТНО…
Через Houzz можно нанять дизайнера или архитектора в любом городе. Начать поиск специалиста для вашей задачи
———————————————————

Комментарии 0

Liliya Fatkhutdinova

2 г. назад

Ах какой прекрасный дизайн!

Дина

2 г. назад

хотя, конечно, в кабинете нужно было бы ставить стол гораздо больше - тогда бы за ним было удобно работать, а так маловат)

Дина

2 г. назад

Очень стильно и красиво! цвета подобраны идеально. в кабинете черная (темно-синяя) стена смотрится супер! с порталом тоже здорово получилось - и красиво, и необычно! комод хорош! круглый стол в кабинете смущения не вызвал, сама всегда дома/на даче работаю за круглыми, это удобно. Единственное, тоже вопрос по функционалу - прежде всего, смущает кухня, особенно расположение варочной поверхности - получается, чтобы добежать от раковины до нее и не стукнуться, нужно все стулья убирать? и у плиты не хватает закрытого пространства для хранения специй, масла. если заказчик не готовит, то тогда повыше бы микроволновку сделать. Плюс отсутствие плинтусов, даже скрытых - не будет ли страдать стена, если в нее нечаянно пылесосом врезаться?) И микробетон в ванной - цвет обалденный, у меня у самой в ванной микроцемент, но не в зоне душевой - слышала, разводы от воды на нем сложно убираются, и большинство его именно в мокрой помывочной зоне использовать не рекомендуют.

Похожие статьи

Статьи скоро появятся

Похожие дискуссии

Дискуссии скоро появятся

Лучшие статьи — раз в неделю на почту

Способ подписки скоро появится