logo

Houzz тур: Дача, ставшая семейным загородным домом

Большая часть мебели и декора собраны по антикварным салонам и блошиным рынкам, а из готовых позиций в доме только кухня

Houzz Россия
Houzz Россия

10 авг. 2020

Обновлено 9 сент. 2020

Владельцы дома строили небольшую дачу — дом из клееного бруса только для семьи, где можно уединиться от ежедневной суеты. Но после первых выходных в загородном жилье, хозяева не вернулись в городскую квартиру.
Houzz тур: Дача, ставшая семейным загородным домомОльга Айсина
На постройку дома ушел год и еще год — на ремонт. При работе над планировкой, приоритет отдали красивому виду за окном: чтобы было много зелени. На сам дом заложили 132 кв.м., сделав столовую с маленькой прилегающей кухней на первом этаже, и две спальни на втором.

О проекте
Место: Подмосковье
Размер: 132 кв.м.
Кто здесь живет: Семья из трех человек
Дизайнер проекта: Ольга Айсина
Фото: Михаил Степанов
Стилист: Татьяна Гедике
Планировка первого этажа

Планировка получилась эргономичной за счет отказа от нефункциональных пространств. Так, например, отказались от гостиной, как отдельного помещения, и от просторной кухни. Последняя занимает в доме всего 6 кв.м. — это исключительно утилитарное помещение с рабочей поверхностью, техникой и шкафами под хранение. Холодильник вынесен в подсобное помещение, а обеденный стол в столовую — главное помещение первого этажа.

«Столовая объединена с гостиной, потому что семья и гости чаще собираются за обеденным столом, чем на диване, — говорит Ольга Айсина. — И мы сразу решили, что не будем отдавать ценные квадратные метры под помещение, которое не будет использоваться». Проходное помещение столовой-гостиной хотелось сделать воздушным, без лишней мебели: только диван, антикварный комод, и обеденный стол.
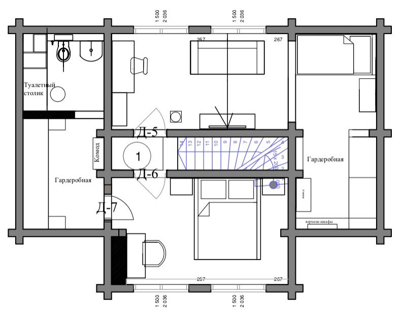
Планировка второго этажа


—————————————
В ВАШЕМ ГОРОДЕ…
Через Houzz можно нанять дизайнера или архитектора в любом городе и стране. Начать поиск специалиста
—————————————
Houzz тур: Дача, ставшая семейным загородным домомОльга Айсина
На второй этаж ведет невесомая ажурная лестница. Она была вдохновлена интерьером Новой сцены Большого театра.

Палитра триптиха «Карелия» авторства Бориса Кельберера висящего над диваном, стала цветовой основой для кухни и гостиной: монотонность серо-зеленых оттенков разбавлена черными элементами мебели и напольной плиткой.
Houzz тур: Дача, ставшая семейным загородным домомОльга Айсина
СТОЛОВАЯ-ГОСТИНАЯ
Первое, что бросается в глаза в этом помещении: близость камина к шторам. Задача мощной финской печи изначально была функциональной — обогревать дом в отсутствии газа. Для этого стену за ней облицевали негорючей отделкой, а на пол положили чугунную плиту. Когда же удалось воплотить проект по газу, печь стала украшением гостиной, и на окнах появились дизайнерские шторы, низ которых выполнен из винтажного велюра, фактурой и цветом перекликающегося с камином.
Houzz тур: Дача, ставшая семейным загородным домомОльга Айсина
Обеденный стол выполнен по эскизам дизайнера — на металлические ножки с отделкой из латуни положена столешница из шлифованного лабрадорита. Такой вариант подойдет щепетильным хозяйкам, так как гранитную поверхность невозможно поцарапать. Единственный нюанс: из-за большого веса столешницы, конструкция не слишком мобильна.

Вокруг стола собраны винтажные стулья 1960-х. Каждый покупался на разном этапе строительства, но все выбраны лично дизайнером: «Я внимательно изучала ассортимент винтажного салона Repeat Story, приезжала, чтобы проверить удобство каждого из стульев, и забирала по одному, — рассказывает Ольга. — Все стулья перетянуты разными тканями — антикварными и из личной коллекции».
Houzz тур: Дача, ставшая семейным загородным домомОльга Айсина
Кухня Scavolini; основание стола — Bionika Wood; гранитная столешница — «Ателье Камня»; стулья Repeat Story; финская печь Tulikivi; шторы сшиты на заказ в мастерской Елены Серватовой; свет из шоурума Lamps_of_50_60_70s

Из готовых позиций в доме только кухня, все остальные вещи — с историей. В том числе декор: серебряный кувшин XIX века, привезенный из Европы, серебряные солонка с перечиницей и набор для смешивания коктейлей, созданный в Италии в 1946 году.
Houzz тур: Дача, ставшая семейным загородным домомОльга Айсина
Антикварный комод в стиле шинуазри вполне функционален: внутри прячется телевизор. Когда дверцы комода открыты, видны ярко-красные внутренние стенки, перекликающиеся с цветом двери на кухне.
Houzz тур: Дача, ставшая семейным загородным домомОльга Айсина
Двери Doors Brothers; римская штора сшита в мастерской Елены Серватовой


ПРИХОЖАЯ
Вторая красная дверь — входная. Цвет для неё Ольга взяла из натюрморта на зонтичнице, которую нашла на блошином рынке в Тель-Авиве. В этом же помещении есть еще одна любопытная находка — люстра. Ее обнаружили в старом сарае во время демонтажа прежних построек, привели в порядок и повесили в прихожей.
Houzz тур: Дача, ставшая семейным загородным домомОльга Айсина
ГОСТЕВОЙ САНУЗЕЛ
На нижнем этаже разместили гостевой санузел с естественным освещением. Самым первым в нем появилось винтажное зеркало, собравшее вокруг себя интерьер в приглушенном зеленом цвете.

Обратите внимание: К водопроводу и электричеству на первом этаже подключена мойка воздуха — компания «Русский Запад», построившая дом, настояла на системе, которая увлажняет и чистит воздух. Благодаря этому в доме особый комфортный микроклимат.
Houzz тур: Дача, ставшая семейным загородным домомОльга Айсина
Чистоту воздуха обеспечивает и централизованная система пылеудаления, или, проще говоря, встроенный пылесос. Для этого на этапе строительства под полом провели трубопровод, а в санузле второго этажа установили силовой блок. Затем на стены в нужных местах вывели розетки, куда вставляется шланг.

«Эта система хороша для аллергиков, так как отработанный воздух выбрасывается на улицу, а не внутрь помещения, как при использовании традиционной техники», — поясняет дизайнер.
Houzz тур: Дача, ставшая семейным загородным домомОльга Айсина
СПАЛЬНЯ СЫНА
На втором этаже расположены жилые комнаты: они схожи по метражу, но спланированы по-разному. Комната сына выстроена буквой «Г» и поделена на три функциональные зоны: для сна, для занятий и хранения вещей (гардеробная).

Большую гардеробную скрыли за углом и установили там деревянные шкафы и комоды, чтобы сделать их незаметными на фоне стен.
Houzz тур: Дача, ставшая семейным загородным домомОльга Айсина
Ковер Troubadour; лампа Repeat Story; декоративные подушки сшиты в ателье Tenssury

Сын хозяев профессионально занимается музыкой, в его комнате совместили спальню и студию звукозаписи. Конструктивную арку, зонирующую эти помещения, дополнили текстилем и металлическим карнизом.
Houzz тур: Дача, ставшая семейным загородным домомОльга Айсина
Консоль сделана по эскизу дизайнера Bionika Wood; шторы сшиты на заказ в мастерской Елены Серватовой

ХОЗЯЙСКАЯ СПАЛЬНЯ
Здесь использовали любимую хозяйкой серо-зеленую гамму. Эти оттенки дополнил голубой бисквитный фарфор Wedgwood: коллекция Jasper была вдохновлена античными находками. Ольга дополнила эту особенность шторами, узор которых напоминает античный растительный барельеф фарфора.

Стену с нишами для фарфора выстроили вокруг трубы от печки. Рядом установили консоль с латунными ножками — её можно использовать как рабочий или косметический столик.
Houzz тур: Дача, ставшая семейным загородным домомОльга Айсина
Проблема и решение:
Деревянные дома выигрывают по атмосфере и климату. Но у них есть свой минус: в ста процентах случаев из ста они дают усадку. И это нужно учитывать при заказе дверей, окон и мебели.

«Нужно оставлять технологические зазоры при установке дверей и окон, а также нельзя возводить мебель под самый потолок, — поясняет Ольга. — Всю внутреннюю отделку, например, плитку, нужно сажать на скользящий независимый каркас, который будет двигаться вместе с домом».
Houzz тур: Дача, ставшая семейным загородным домомОльга Айсина
Частью хозяйского санузла на втором этаже стала дамская зона — под мансардный скос установили небольшой косметический столик, сохранив внизу доступ к коммуникациям. В высоком шкафу справа скрыт силовой блок пылесоса.

Это место напомнило дизайнеру театральную гримерку. Впечатление усилили постером, больше похожим на театральную афишу, и зеркалом в серебряной раме XIX столетия.
Houzz тур: Дача, ставшая семейным загородным домомОльга Айсина
Жёлтые винтажные бра из шоурума Lamps_of_50_60_70s; кресло, столик и торшер Repeat Story; шкаф, письменный стол и стеллаж сделаны на заказ в Bionika Wood; ковер Designcarpets

КАБИНЕТ
На участке стоит отдельная летняя веранда с кухней и гостевой дом, где друзья могут остаться на выходные. Здесь же расположен кабинет хозяйки. Его интерьер, как и многое в проекте, родился из маленькой детали — желтых винтажных бра. «Я не могла от них оторваться, — смеется Ольга. — И сразу купила, потому что вспомнила про обои Morris & Co с растительным орнаментом».
Обоями оклеили только одну стену, дублировав зеленый цвет в покраске остальных. Чтобы добавить к ощущению свежести летнего тепла, платяной шкаф сделали ярко-желтым. Черный цвет использовали, как классическое сочетание к желтому и зеленому. Картину над столом написала сама Ольга — это фрагмент беседки с участка.

___________________________________
ОБ АВТОРЕ ПРОЕКТА…
Перейдите на страницу
Ольги Айсиной, чтобы изучить другие работы из портфолио дизайнера

У ВАС ЕСТЬ ДЛЯ НАС ПРОЕКТ…
Загрузите съёмку в свой профиль на Houzz, отправьте ссылку с кратким описанием на editorial@flatica.ru

Для справки: Какие объекты мы публикуем

Комментарии 22

Т Т

5 л.

супер
Не могу не дополнить: ещё раз попался на глаза план и только обратила внимание - так на 2-этаже и при основном санузле оказывается нет даже душа! Все дружным строем на первый этаж... фейспалм.. это однозначно "дачный домик", не планировавшийся к постоянному проживанию, только провести выходные. Как так строить...
Интерьером можно любоваться бесконечно! но эргономика функционал печи... это, наверное, последнее, о чём подумали, не смотря даже на такое удобство, как встроенный пылесос (а это между прочим отличное решение, мизерный процент, мне кажется, имеют о нём представление и готовы заплатить за такое, в основном все готовы таскать за собой пластмассовую коробку - обычный пылесос, перетыкать шнур в розетках в каждой комнате, чистить его после каждой уборки). Но и тут просто "удивительное" решение по расположению силового блока: на 2-м этаже, в санузле родителей, причём в "будуарной" его части. Чем не понравился для размещения хозблок на первом этаже? От печи, загнанной в угол - недоумение. Пусть лишь на начальном этапе у неё была утилитарная функция обогрева, как потом собирались её использовать? Любоваться живым огнём? С какого ракурса? Сидя на диване невозможно, только за обеденным столом или с табуретки. Ну от шторы рядом вообще сводит скулы.. В каком режиме теперь топится печь - не больше 3 поленьев в час? Это ж как нужно подгадывать температурный режим, чтобы вроде и топилась, но и не грела (в режиме декорации), чтоб штора не вспыхнула. Доступ со второй спальни к туалету - ну такого "квеста" на планировках ещё поискать надо! По лестнице вниз да ещё через 2 помещения пройти! Есть ему равный по "удобству" вариант - когда туалет на улице в углу участка, как на обычных дачах. Как и предыдущий комментатор Светлана (единственная, кто обратила внимание на этот абсурд) полностью поддерживаю, что это крайне неудобно, а уж для постоянного проживания тем более. Дело даже не в ставании по ночам, думаю всё хорошо со здоровьем, но даже помыться вечером, принять душ, и шагать через весь дом в спальню - неудобно. Особенно если гости, например, ещё сидят за столом, как в этой планировке. Мы тоже живём в 2-х этажном доме, и когда был ремонт в санузле на 2-м этаже, месяц пользовались только на 1-м, набегались по уши. Так это за месяц...

Оставьте комментарий

Читать похожие статьи