Houzz тур: Уединённый дом в карельской деревне

Одной стороной дом смотрит на Онежское озеро, другой — в бескрайнее поле. Но комфорт — на уровне европейского отеля

Евгения Назарова
Евгения Назарова

13 мар. 2020

Обновлено 27 мая 2020

Постоянный автор Houzz, интерьерный журналист

Владельцы дома, братья Игорь и Сергей, проводили в карельской деревне Кажма каждое лето: отсюда родом их отец, здесь работала учительницей бабушка… Правда, местную школу давно закрыли, да и деревня наполовину опустела, но братья всё равно продолжали приезжать в родные места теперь уже с палаткой.
Идея построить дом родилась из любви к родным местам. Когда владельцы не занимают дом сами, его сдают — и довольно успешно, несмотря на то, что дорога от Петербурга занимает девять часов. Карелия — популярное у советской интеллигенции направление: многие помнят о собственных каникулах на севере и ностальгируют, другие приезжают впервые и влюбляется в суровую красоту этого края. О проекте Место: Карелия, деревня Кажма Размер: 86 кв. м Кто здесь живёт: дом сдают в аренду Дизайнер проекта: Майя Баклан Фото: Андрей Безуглов
У деревни Кажма узнаваемая северная архитектура: по большей части это характерные избушки — сказочные на вид, с налетом времени. Именно в такое окружение предстояло вписать современный гостевой дом, который сначала планировали строить из трёх морских контейнеров. Идея была в том, чтобы объединить контейнеры в большой дом, и таким образом получить экологичное, бюджетное и экзотичное для этих мест решение. Но проблемы начались сразу после старта проектирования. Контейнерам нужно было добавить скатную кровлю, так как в Карелии по полгода лежит снег; придумать теплоизоляцию; найти подрядчиков, которые имели бы опыт работы с такими объектами, — последнее оказалось просто нереально. В итоге идея радикально трансформировалась: на участке построили деревянный дом, но с сохранением габаритных размеров контейнеров.
Строить дом взялся местный мастер, и владельцам очень повезло его найти: в пустеющих соседних деревнях почти не осталось квалифицированных рабочих. Несмотря на это, проект шел сложно: без контроля со стороны заказчиков строители принимали решения на свой вкус. В итоге один из братьев даже решился переехать в Кажму, чтобы контролировать стройку. Майя Баклан продолжала помогать заказчикам дистанционно, из Киева — это оказалось несложно, так как все отделочные решения и мебель подбирали через интернет. На проекте дизайнер побывала один раз, когда закупала декор и готовила дом к профессиональной съёмке. ——————————————— В ВАШЕМ ГОРОДЕ… ► Через Houzz можно нанять дизайнера или архитектора в любом городе и стране. Начать поиск специалиста ———————————————
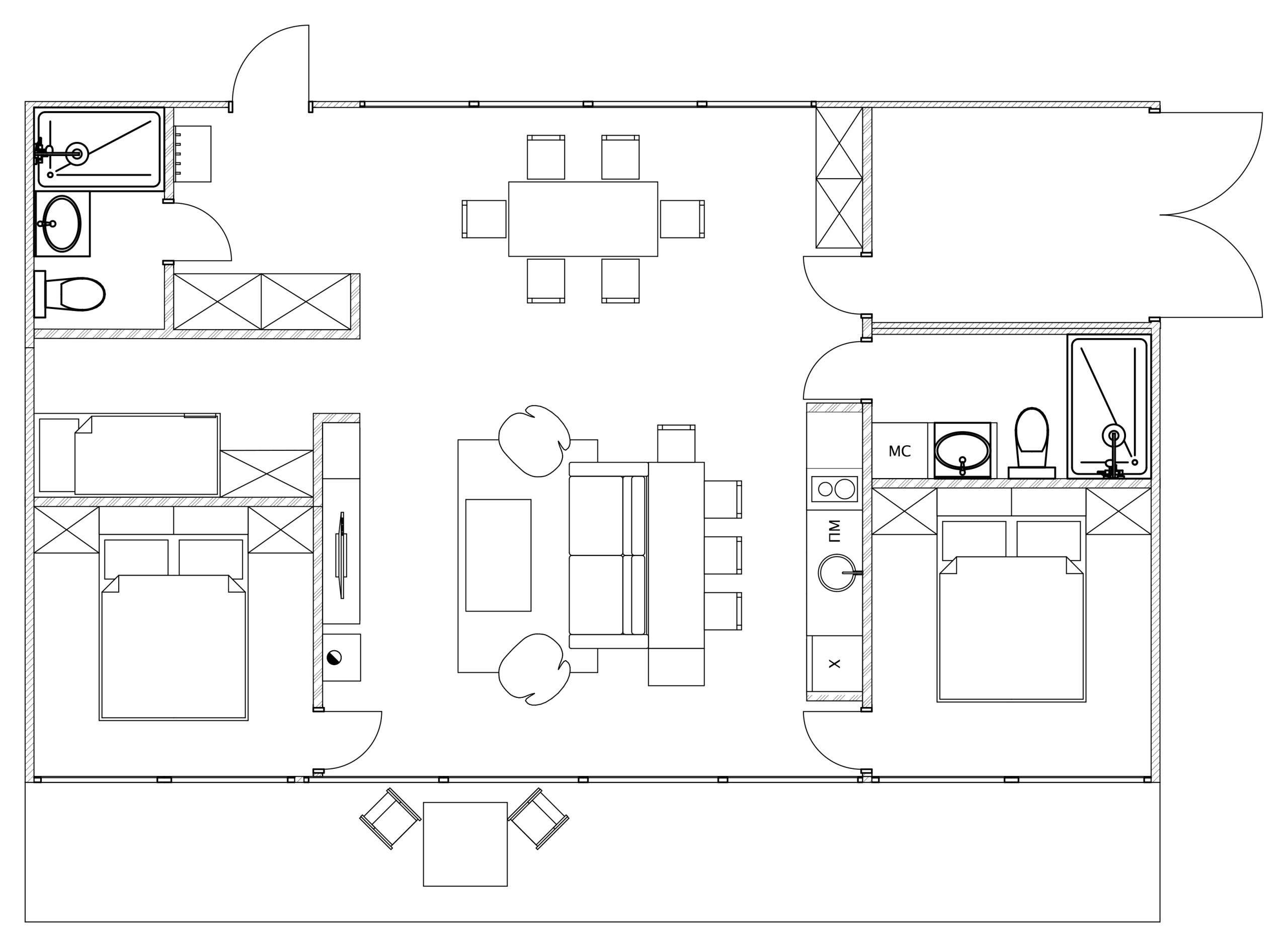
Планировка дома Одна из главных причин, по которой отказались от идеи с контейнерами, — заданная самим участком планировка дома. Здание хотелось повернуть длинной стороной к озеру, сделать просторную кухню-гостиную с большой площадью остекления. Но поставить рядом два контейнера и прорезать широкий проём было невозможно, они лишились бы рёбер жёсткости. Благодаря стандартной конструкции деревянного дома развернуть к озеру удалось не только гостиную, но и обе спальни.
ПРИХОЖАЯ Лейтмотив интерьера — дерево: однотонную местную сосну использовали при отделке стен, потолков и дверей, из неё же сделали встроенную мебель и столы. Двери и многие аксессуары выделили красным: « Я всегда работаю с цветом и никогда не использую, например, бежевый — только натуральные оттенки дерева. Каждый период жизни связан с определенным цветом. В то время мы часто делали в проектах красные акценты. Красный плюс светлое дерево — типичное для скандинавской эстетики сочетание » , — рассказывает Майя Баклан.
ГОСТИНАЯ Пол по всему дому наливной, его выбрали по двум причинам. Во-первых, вариант с деревом не рассматривали, чтобы не превращать интерьер в подобие бани. Во-вторых, в доме нет радиаторов, и весь объём отапливается тёплым полом. Существуют специальные виды паркета, которые можно класть на тёплый пол, но такого интенсивного подогрева не выдержал бы ни один из них. А наливной пол отлично переносит высокие температуры.
Чугунная топка, — скорее, для уюта, чем для тепла, но представить уединенный загородный дом без живого огня было бы сложно. Стену за дымоходом и топкой сначала думали облицевать гипсовым кирпичом, но в итоге использовали природный материал — местную породу камня.
В гостевом доме много развлечений, например, приставка и проектор с экраном. Сам проектор спрятали в подвесной полке на потолке, её сделали из дерева, как и барную стройку. Почти всю мебель купили в ИКЕА: « Важно было подбирать такие предметы, которые можно купить в Петербурге или оформить туда доставку. Потом владельцы сами везли их в Карелию », — рассказывает дизайнер.
СПАЛЬНИ В доме две спальни с идентичным дизайном и необходимым минимумом мебели. « Спальни часто проектируют, чтобы окна выходили на красивый вид, а потом почему-то ставят кровать так, что от вида остаётся одно воспоминание. Для нас было принципиально ориентировать изголовье к окну, чтобы, просыпаясь, гости первым делом видели озеро летом или бескрайнее снежное поле зимой » , — поясняет дизайнер.
ГОСТЕВАЯ В дом обычно приезжают компаниями, поэтому спальных мест требовалось как можно больше. Кроме двух основных спален, удалось выгородить небольшую комнату под двухъярусную кровать. Её можно использовать как детскую, но подходит она и для взрослых: размер каждого спального места — метр на два. « Я больше всего сомневалась насчёт этой комнаты, а в итоге решение оказалось очень удачным. Когда впервые зашла сюда, то сразу почувствовала, как здесь уютно » , — рассказывает Майя Баклан.
Бордовая плитка Geotiles; белая плитка Equipe; напольная плитка Dual Gres САНУЗЛЫ В доме две ванных комнаты, в которых обошлись без « деревенских » отсылок. Помещения выглядят стильно и современно за счёт сложных оттенков отделки и плитки с орнаментом; в каждом скомбинировали несколько видов покрытий, чтобы создать интересный образ.
Во втором санузле: напольная плитка Dual Gres; плитка для стен Roca Ceramica
САУНА Параллельно со строительством основного дома владельцы решили возвести вторую постройку — под сауну. Ещё на стадии проекта она выросла до небольшого гостевого домика с двумя дополнительными спальнями.(на фото). Спа-зону сформировали три помещения: сауна, предбанник и зона для купания.
Весь объём сауны, как и прилегающие к нему помещения, облицевали доской из местной сосны.
ОБ АВТОРЕ ПРОЕКТА… Перейдите на страницу студи и Майи Баклан , чтобы изучить другие работы из портфолио дизайнера __________________________ У ВАС ЕСТЬ ДЛЯ НАС ПРОЕКТ… Загрузите съёмку в свой профиль на Houzz, отправьте ссылку с кратким описанием на RuEditors@houzz.com Для справки: Какие объекты мы публикуем

Похожие статьи

Статьи скоро появятся

Похожие дискуссии

Дискуссии скоро появятся

Лучшие статьи — раз в неделю на почту

Способ подписки скоро появится